NEU - BÜROFLÄCHE in zentraler Lage zu vermieten - Adlerhof - 1070 Wien

Immobilie zur Miete in 1070 Wien / Objektnummer: 16198
Ausstattung: Boden Fahrstuhl Gäste-WC Abstellraum Fernwärme Balkon

Preisinformationen

Gesamtmiete (exkl. USt.):
2.626,16 € / Monat
Betriebskosten netto:
322,01 € / Monat
Umsatzsteuer:
525,23 €
Kaution:
3 Bruttomonatsmieten
Vermittlungsprovision:
Ja
Provision:
3 Bruttomonatsmieten zzgl. 20% USt.

Fakten

Objektnummer:
16198
Balkon:
1
Nutzfläche:
137,12 m²
Zimmer:
5
Stockwerk:
1
Baujahr:
1874
Altbau:
Ja
Zustand:
Gepflegt
Verfügbarkeit:
Verfügbar

Beschreibung

HOCHWERTIGE GEWERBEFLÄCHE MIT 5 ZIMMERN IM TRADITIONSREICHEN ADLERHOF – REPRÄSENTATIVE EINHEIT IN BESTLAGE DES 7. BEZIRKS

Zur Vermietung steht diese besondere Gewerbefläche mit ca. 94 m² Nutzfläche in einer der gefragtesten Lagen des 7. Wiener Gemeindebezirks. Die Einheit befindet sich nur rund fünf Gehminuten von der U3-Station Volkstheater entfernt und liegt ruhig im Innenhof des architektonisch eindrucksvollen Adlerhofs.

Die Fläche befindet sich in der Stiege 1 und ist bequem mit dem Lift erreichbar. Durch die durchdachte Raumaufteilung eignet sich die Einheit ideal für Büro-, Agentur-, Praxis- oder Kanzleinutzung. Ein Balkon mit Ausblick in den Innenhof rundet das Angebot ab.

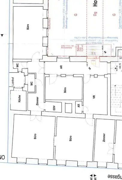
Wichtiger Hinweis: Das im Plan ersichtliche schmale Zimmer unten rechts im Eck ist nicht Bestandteil der angebotenen Gewerbefläche und daher nicht inkludiert.

-------------

RAUMKONZEPT

Die Gewerbeeinheit bietet eine klare, funktionale Gliederung mit vielseitigen Nutzungsmöglichkeiten und insgesamt 5 separat begehbaren Zimmern:

*
Vorraum / Eingangsbereich

*
5 Zimmer – ideal nutzbar als Büro-, Besprechungs-, Behandlungs- oder Arbeitsräume

*
Teeküche / Aufenthaltsbereich (derzeit wird eine neue Einbauküche installiert)

*
Badezimmer (inkl. Badewanne, Waschbecken und Waschmaschinenanschluss)

*
Separates WC

*
Praktische Abstellmöglichkeiten

-------------

ZUSTAND

Die Einheit wird derzeit umfassend überarbeitet:
Eine neue Küche wird eingebaut und sämtliche Räume werden frisch ausgemalt, sodass sich die Fläche in einem modernen, einladenden und sofort nutzbaren Zustand präsentiert.

-------------

LAGE & UMFELD

Die Lage im Adlerhof zählt zu den begehrtesten Adressen des 7. Bezirks und bietet eine ideale Kombination aus urbaner Infrastruktur, historischer Bausubstanz und ruhiger Innenhoflage.

In unmittelbarer Gehdistanz befinden sich:

*
Vielfältige Einkaufsmöglichkeiten und Nahversorgung

*
Zahlreiche Restaurants, Bars und Cafés, darunter das beliebte Café Adlerhof im Haus

*
Apotheken und Banken

*
Die Mariahilfer Straße mit umfassendem Shopping- und Gastronomieangebot

Der 7. Bezirk steht für kulturelle Vielfalt, kreative Szene und wunderschön erhaltene Altbauten – ein Standort, der Professionalität, Sichtbarkeit und Arbeitsqualität ideal verbindet.

 

NEBENKOSTEN

* 6 BMM Kaution
* 240€ Vertragserichtungskosten

 

_Maklervereinbarung: _Wir ersuchen um Verständnis, dass wir bei Anfragen zur Objektadresse, bzw. Besichtigungstermin  aufgrund neuer gesetzlicher Bestimmungen Unterlagen erst dann zusenden können, wenn Sie vorab bestätigen, dass Sie unser sofortiges Tätigwerden wünschen und über Ihre Rücktrittsrechte aufgeklärt wurden. Sie bekommen nach Ihrer schriftlichen Anfrage mit vollständiger Angabe des Namens, Anschrift und Telefonnummer ein Email, in dem Sie diese Punkte bestätigen müssen.

_Haftungsausschluss:  _Wir weisen darauf hin, dass sämtliche Daten im vorliegenden Angebot sowie die von unserem Büro an Sie weitergegebenen Auskünfte, vom Eigentümer der Immobilie zur Verfügung gestellt wurden. Ebenso sind Informationen von Dritten (z.B. behördliche Informationen) eingeholt worden, auch für diese können wir unsererseits keinerlei Haftung für deren uneingeschränkte Richtigkeit übernehmen.

Wir weisen darauf hin, dass zwischen dem Vermittler und dem zu vermittelnden Dritten ein familiäres oder wirtschaftliches Naheverhältnis besteht.

Infrastruktur / Entfernungen

Gesundheit
Arzt <500m
Apotheke <500m
Klinik <500m
Krankenhaus <1.500m

Kinder & Schulen
Schule <500m
Kindergarten <500m
Universität <500m
Höhere Schule <1.000m

Nahversorgung
Supermarkt <500m
Bäckerei <500m
Einkaufszentrum <500m

Sonstige
Geldautomat <500m
Bank <500m
Post <500m
Polizei <500m

Verkehr
Bus <500m
U-Bahn <500m
Straßenbahn <500m
Bahnhof <500m
Autobahnanschluss <4.500m

Angaben Entfernung Luftlinie / Quelle: OpenStreetMap
Beschreibung weiterlesen

Lage und Verkehrsanbindung

Burggasse, 1070 Wien

Energieeffizienz

HWB:
133,9 kWh/(m²*a)
HWB Klasse:
D
fGEE:
1,52
fGEE Klasse:
C
Energieausweisart:
Energiebedarfs-ausweis
Gültig bis:
21.10.2029

Grundriss

Lageplan

1070 Wien | Wien 7., Neubau

Lade...
Angelika Zierler

Angelika Zierler
Immobilienberaterin

Moritz Immobilien

Lade...

Fotomix

Bild 1 Bild 2 Bild 3 Bild 4 Bild 5