Bürogebäude auf großem Grundstück/Lagerplatz in zentraler Lage von Korneuburg

Immobilie zur Miete in 2100 Korneuburg / Objektnummer: 4525
Ausstattung: Möbliert

Preisinformationen

Fakten

Objektnummer:
4525
Keller Fläche:
160 m²
Bürofläche:
320 m²
Grundstücksfläche:
2.200 m²
Baujahr:
1980
Verfügbarkeit:
Verfügbar

Beschreibung

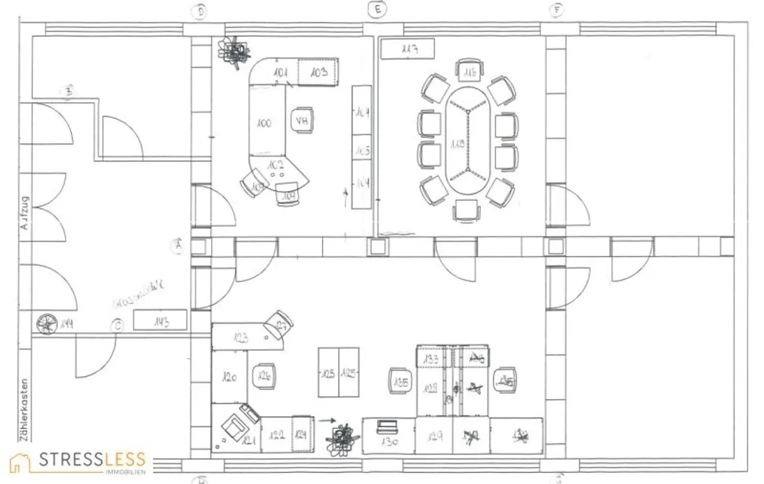
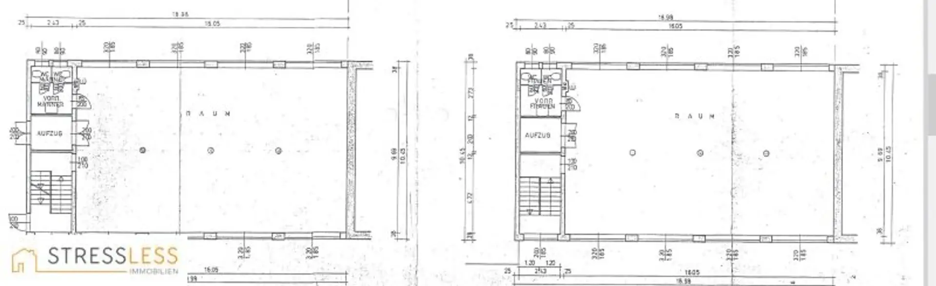
Dieses 2stöckige, voll unterkellerte Bürogebäude befindet sich in zentraler Lage von Korneuburg und bietet Ihnen auf ca. 320 m² vielerlei Möglichkeiten (siehe bitte Pläne).

Zur Vermietung gelangt dieses 2stöckige Bürogebäude nur wenige Gehminuten vom Zentrum bzw. vom Bahnhof Korneuburg entfernt.

Das Bürohaus verfügt über mehrere, veränderbare Zimmer, die für flexible Arbeitsbereiche und Besprechungszimmer genutzt werden können.

In jedem Stockwerk gibt es Sanitäranlagen. 

Im Keller sowie im Dachgeschoß wäre viel Fläche für Lagemöglichkeiten vorhanden.

Das Bürohaus befindet sich auf einem ca. 2.200 m² großen Grundstück und bietet viele Parkplätze für Ihre Mitarbeiter.

Falls Sie ein zentral gelegenes Gebäude mit viel Freifläche suchen, freuen wir uns auf Ihren Anruf!

Frau Beatrice Hammerschmid steht Ihnen unter 0664 - 3998229 (bh@stressless-immobilien.at) für Fragen bzw. einen unverbindlichen Besichtigungstermin zur Verfügung.

 

Der Energieausweis ist in Ausarbeitung!

 

Noch nichts gefunden? Wir informieren Sie über geeignete Immobilienangebote noch vor allen anderen.
Legen Sie jetzt Ihren individuellen Suchagenten unter folgendem Link an. Wir schicken Ihnen passende Immobilien exklusiv vorab zu.
Suchagent anlegen [https://stressless-immobilien.service.immo/registrieren/de] - https://stressless-immobilien.service.immo/registrieren/de

Wir weisen darauf hin, dass zwischen dem Vermittler und dem zu vermittelnden Dritten ein familiäres oder wirtschaftliches Naheverhältnis besteht.

Der Vermittler ist als Doppelmakler tätig.

Bitte haben Sie dafür Verständnis, dass wir seit 13.Juni 2014 aufgrund der EU-Richtlinie (FAGG - Fern- und Auswärtsgeschäfte Gesetz) Detailinformationen, Besichtigungen sowie Zusendung von Exposés zu den angefragten Objekten erst dann umsetzen können, wenn Sie bestätigen, dass Sie unser sofortiges Tätigwerden wünschen und Sie über Ihre Rücktrittsrechte gemäß §11 FAGG von uns aufgeklärt wurden. Nachdem Sie uns Ihre Anfrage gesendet haben, erhalten Sie von uns alle wesentlichen Informationen per e-mail.

Die Angaben über das angebotene Objekt erfolgen mit der Sorgfalt eines ordentlichen Immobilienmaklers. Für die Richtigkeit solcher Angaben, die auf Informationen der über das Objekt Verfügungsberechtigten beruhen, wird keine Gewähr geleistet.

BITTE BEACHTEN SIE, DASS WIR AUFGRUND DER NACHWEISPFLICHT GEGENÜBER DEM EIGENTÜMER NUR ANFRAGEN MIT VOLLSTÄNDIGER ANGABE DER ANSCHRIFT UND ANGABEN ZUR PERSON (NAME, TELEFON, E-MAIL) BEARBEITEN KÖNNEN.

Eine Verrechnung unseres Honorars erfolgt nur dann, wenn es zu einem Vertragsabschluß zwischen VerkäuferIn/VermieterIn und KäuferIn/MieterIn kommt. 

 

Infrastruktur / Entfernungen

Gesundheit
Arzt <2.500m
Apotheke <500m
Krankenhaus <1.000m
Klinik <4.500m

Kinder & Schulen
Schule <500m
Kindergarten <500m
Universität <6.500m
Höhere Schule <10.000m

Nahversorgung
Supermarkt <500m
Bäckerei <500m
Einkaufszentrum <6.500m

Sonstige
Bank <500m
Geldautomat <500m
Post <1.000m
Polizei <500m

Verkehr
Bus <500m
Straßenbahn <7.000m
Autobahnanschluss <1.500m
Bahnhof <500m

Angaben Entfernung Luftlinie / Quelle: OpenStreetMap
Beschreibung weiterlesen

Lage und Verkehrsanbindung

Zentrum

Energieeffizienz

HWB:
150,4 kWh/(m²*a)
HWB Klasse:
D
fGEE:
1,73
fGEE Klasse:
E
Energieausweisart:
Energiebedarfs-ausweis
Gültig bis:
19.10.2032

Grundrisse

Lageplan

2100 Korneuburg | Korneuburg

Lade...
Beatrice Hammerschmid

Beatrice Hammerschmid
Office

STRESSLESS Immobilien GmbH

Lade...

Fotomix

Bild 1 Bild 2 Bild 3 Bild 4 Bild 5 Bild 6