NEU - Büroräumlichkeiten im großartiger Lage von Klosterneuburg!

Immobilie zur Miete in 3400 Klosterneuburg / Objektnummer: 6653/399
Ausstattung: Boden Gäste-WC Abstellraum Etagenheizung
Eingangsbereich
Zimmer
Zimmer
Küche
Vorzimmer
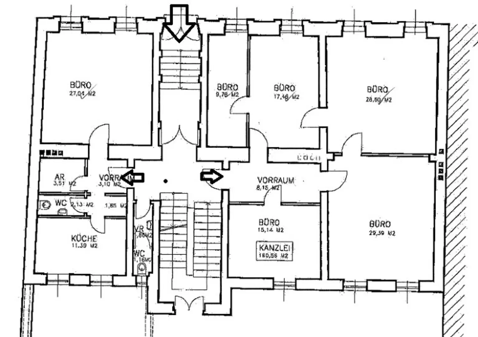
Grundriss

Preisinformationen

Gesamtmiete (exkl. USt.):
2.102,76 € / Monat
Betriebskosten netto:
497,16 € / Monat
Umsatzsteuer:
420,55 €
Kaution:
7.569,93 €
Vermittlungsprovision:
Ja
Provision:
3 Bruttomonatsmieten zzgl. 20% USt.

Fakten

Objektnummer:
6653/399
Nutzfläche:
160,56 m²
Bürofläche:
160,56 m²
Zimmer:
6
Toilette:
2
Altbau:
Ja
Verfügbarkeit:
Verfügbar

Beschreibung

Zur Vermietung gelangt diese rund 160m² große Bürofläche in zentraler, sehr guter Lage von Klosterneuburg. Sie verfügt über 6 Zimmer und eine Küche, 2 separate Toiletten sowie über einen Abstellraum. Die Fläche umfasst das gesamte Erdgeschoß (Parterre) eines sehr gepflegten, 2 geschoßigen Altbaus.  Über eine Treppe gelangt man in das Stiegenhaus, wo sich die 2 Eingänge zu den getrennten Einheiten befinden. Einerseits bilden 5 Räume einen Einheit und auf der anderen Seite bilden ein Büroraum, eine Küche, ein Abstellraum sowie eine separate Toilette eine Einheit.  Die ehemaligen Kanzleiräumlichkeiten befinden sich in einem gebrauchten Zustand.

Ob Mietreduktion während der Umbauten oder eine Investitionskostenbeteiligung seitens des Eigentümers -  Der Vermieter ist an einer fairen Lösung für beide Seiten interessiert und für konstruktive Gespräche bereit!

Aufteilung:
Einheit 1:
- Vorzimmer
- 5 Büroräume
Einheit 2:
- Vorraum
- Küche
- Abstellraum
- Toilette
- Büroraum
 

Hinweis gemäß Energieausweisvorlagegesetz: Ein Energieausweis wurde vom Eigentümer bzw. Verkäufer, nach unserer Aufklärung über die generell geltende Vorlagepflicht, sowie Aufforderung zu seiner Erstellung noch nicht vorgelegt. Daher gilt zumindest eine dem Alter und der Art des Gebäudes entsprechende Gesamtenergieeffizienz als vereinbart. Wir übernehmen keinerlei Gewähr oder Haftung für die tatsächliche Energieeffizienz der angebotenen Immobilie.

Wir weisen darauf hin, dass zwischen dem Vermittler und dem zu vermittelnden Dritten ein familiäres oder wirtschaftliches Naheverhältnis besteht.

Der Vermittler ist als Doppelmakler tätig.

Infrastruktur / Entfernungen

Gesundheit
Arzt <500m
Apotheke <500m
Klinik <4.500m
Krankenhaus <1.000m

Kinder & Schulen
Schule <500m
Kindergarten <500m
Universität <3.500m
Höhere Schule <6.500m

Nahversorgung
Supermarkt <500m
Bäckerei <500m
Einkaufszentrum <4.000m

Sonstige
Bank <500m
Geldautomat <500m
Post <500m
Polizei <500m

Verkehr
Bus <500m
Straßenbahn <4.500m
U-Bahn <7.000m
Bahnhof <500m
Autobahnanschluss <3.000m

Angaben Entfernung Luftlinie / Quelle: OpenStreetMap
Beschreibung weiterlesen

Grundriss

Lageplan

3400 Klosterneuburg | Sankt Pölten (Land)

Lade...
Laurenz Schnitzer

Laurenz Schnitzer
Geschäftsführender Gesellschafter

CONFIDO Immobilien GmbH

Lade...

Fotomix

Eingangsbereich Zimmer Zimmer Küche Vorzimmer