NEU - Büroraum mit Terrassenausgang in Bürogemeinschaft beim Aumannplatz

Immobilie zur Miete in 1180 Wien / Objektnummer: 1619/7909
Ausstattung: Teeküche Möbliert Fußbodenheizung Terrasse
Büroraum ohne Tisch
Büroraum
Büroraum
Büroraum 1 mit Teeküche zur Mitbenützung
Terrasse
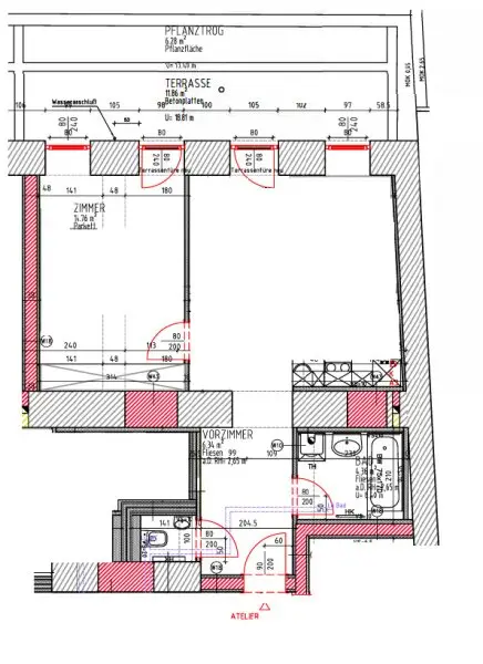
Grundriss Büro f Inserat
Lageplan

Preisinformationen

Gesamtmiete (exkl. USt.):
375,00 € / Monat
Umsatzsteuer:
75,00 €
Kaution:
1.400,00 €
Vermittlungsprovision:
Ja
Provision:
3 Bruttomonatsmieten zzgl. 20% USt.

Fakten

Objektnummer:
1619/7909
Terrasse:
1
Nutzfläche:
15 m²
Zimmer:
1
Toilette:
1
Baujahr:
1920
Zustand:
Neuwertig
Verfügbarkeit:
Verfügbar

Beschreibung

Zur befristeten Untermiete gelangt ein ca. 15 m² großer Büroraum auf der Währinger Straße in unmittelbarerer Nähe vom Aumannplatz und nahe Gersthofer Platz und S-Bahn Gersthof.

- Büroraum mit direktem Zugang auf eine Terrasse auf gleicher Ebene
- Mitbenützung der Nebenräume (Teeküche, Bad, WC)
- Pauschalmiete inkl. BK, Heizung, Warmwasser, Strom

Lage-Highlights
Währinger Einkaufsstraße direkt vor der Haustüre
Straßenbahnstationen der Linien 40 und 41 (Richtung U6 Währinger Straße/Volksoper und Schottentor) ums Eck
S-Bahn Gersthof bzw. Gersthofer Platz in wenigen Gehminuten erreichbar

Infrastruktur / Entfernungen

Gesundheit
Arzt <500m
Apotheke <500m
Klinik <1.000m
Krankenhaus <1.500m

Kinder & Schulen
Schule <500m
Kindergarten <500m
Universität <1.000m
Höhere Schule <500m

Nahversorgung
Supermarkt <500m
Bäckerei <500m
Einkaufszentrum <1.500m

Sonstige
Geldautomat <500m
Bank <1.000m
Post <1.000m
Polizei <500m

Verkehr
Bus <500m
U-Bahn <1.500m
Straßenbahn <500m
Bahnhof <500m
Autobahnanschluss <2.500m

Angaben Entfernung Luftlinie / Quelle: OpenStreetMap
Beschreibung weiterlesen

Lage und Verkehrsanbindung

Aumannplatz, S-Bahn Gersthof

Energieeffizienz

HWB:
103,2 kWh/(m²*a)
HWB Klasse:
D
fGEE Klasse:
D
Energieausweisart:
Energiebedarfs-ausweis

Grundrisse

Lageplan

1180 Wien | Wien 18., Währing

Lade...
Florian Mattersberger (Team Hubert Koller)

Florian Mattersberger (Team Hubert Koller)

RE/MAX Real Experts Immobilien lifetime GmbH

Lade...

Fotomix

Büroraum ohne Tisch Büroraum Büroraum Büroraum 1 mit Teeküche zur Mitbenützung Terrasse