NEU -

Haus zum Kauf in 2493 Lichtenwörth-Nadelburg - Kaufpreis: 279.000 € / Objektnummer: 01593
Ausstattung: Balkon

Preisinformationen

Kaufpreis:
279.000 €

Fakten

Objektnummer:
01593
Objekttyp:
Haus
Balkon:
1
Keller Fläche:
53 m²
Wohnfläche:
291 m²
Zimmer:
3
Schlafzimmer:
2
Badezimmer:
2
Verfügbarkeit:
Verfügbar

Beschreibung

Kleingartenhütte mit Terrasse, Balkon & Pool

Kleingartenanlage „Schneebergblick“ – Lichtenwörth (NÖ)
In der gepflegten Kleingartenanlage Schneebergblick in Lichtenwörth (Niederösterreich) steht eine attraktive Kleingartenhütte mit großzügigem Außenbereich zum Verkauf. Umgeben von viel Grün und einer ruhigen Nachbarschaft bietet diese Liegenschaft den idealen Rückzugsort für Erholung, Entspannung und ungestörte Stunden in der Natur.
Die Kombination aus gemütlichem Wohnbereich, sonniger Terrasse, Balkon und Pool schafft eine angenehme Wohlfühlatmosphäre – perfekt für Wochenenden, Freizeit und gemeinsame Zeit mit Familie und Freunden.

____________________


Eckdaten
•Kleingartenanlage: Schneebergblick
•Lage: 2493 Lichtenwörth, Haderäckerweg, Parzelle 12
•Grundstücksfläche: ca. 291 m²
____________________

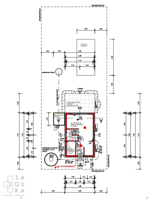
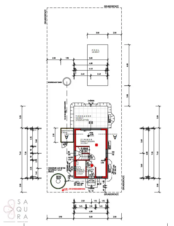
Genehmigtes Bauprojekt
•Kleingartenhütte mit Keller, Erdgeschoss und Obergeschoss
•Bebaute Fläche Erdgeschoss: ca. 37 m²
•Obergeschoss: zusätzliche Wohnräume
•Keller: ca. 53 m² (Nutz- / Abstellflächen)
•Terrasse: ca. 16 m²
•Balkon: ca. 4,3 m²
•Pool laut Einreichplan vorgesehen
•Gerätehütte / Abstellraum
•Privater Zugang über Privatstraße
____________________
Raumaufteilung (geplant)

Erdgeschoss:
•Vorraum
•Bad mit Dusche/WC
•Wohn-/Aufenthaltsraum
•Ausgang auf die Terrasse

Obergeschoss:
•Diele
•Bad mit Dusche/WC
•Zwei Zimmer (je ca. 10,3 m²)
•Balkon

Keller:
•Mehrere Nutzräume (Technik / Lager)
____________________
Ausstattung & Technik
•Heizung: Luftwärmepumpe
•Parkettböden in Wohnräumen
•Fliesen in Bädern und Nebenräumen
•Rauchwarnmelder gemäß OIB-Richtlinien
•Massive Bauweise (Ziegel / Beton / Stahlbeton)
•Ausführung gemäß NÖ Bauordnung und genehmigtem Einreichplan
____________________

Rechtliche Hinweise
•Nutzung ausschließlich zu Erholungs- und Freizeitzwecken
•Keine dauerhafte Wohnnutzung
•Bestandvertrag unterliegt nicht dem MRG
•Weitergabe / Untervermietung nur mit Zustimmung der Bestandgeberin
•Alle Bau- und Nutzungsvorgaben gemäß Kleingartenordnung sind einzuhalten
____________________
Fazit
Eine seltene Gelegenheit für Eigennutzer oder Anleger, die ein langfristiges Bestandsrecht mit bereits genehmigtem Bauprojekt in ruhiger Lage suchen. Ideal als Wochenend- und Freizeitdomizil mit hoher Aufenthaltsqualität.
____________________

Bei Interesse stellen wir Ihnen gerne:
•den Bestandvertrag
•die baubehördliche Bewilligung
•sämtliche Einreichpläne
•sowie eine detaillierte Projektübersicht
zur Verfügung.
____________________
Beschreibung weiterlesen

Lageplan

2493 Lichtenwörth-Nadelburg | Wiener Neustadt (Land)

Lade...
SAQURA Team

SAQURA Team

SAQURA Immobilien GmbH

Lade...

Fotomix

Bild 1 Bild 2 Bild 3 Bild 4 Bild 5 Bild 6 Bild 7 Bild 8 Bild 9 Bild 10 Bild 11 Bild 12 Bild 13 Bild 14 Bild 15 WhatsApp Image 2025-12-15 at 13.11.38 (3) Bild 17 Bild 18 Bild 19 Bild 20 Bild 21 Bild 22 Bild 23 Bild 24 Bild 25 Bild 26 Bild 27 Bild 28 Bild 29 Bild 30 Bild 31 Bild 32 Bild 33