NEU - CANAVESE – Erstbezug 3-Zimmer-Wohnung mit Balkon im grünen Liesing – PROVISIONSFREI

Wohnung zum Kauf in 1230 Wien - Kaufpreis: 451.700 € / Objektnummer: 62478
Ausstattung: Barrierefrei Rollstuhlgerecht Boden Fahrstuhl Bad Tiefgarage Parkplatz Fahrradraum Fernwärme Fußbodenheizung Balkon

Preisinformationen

Kaufpreis:
451.700 €

Fakten

Objektnummer:
62478
Objekttyp:
Wohnung
Balkon:
1
Balkonfläche:
12,53 m²
Keller Fläche:
3,27 m²
Wohnfläche:
72,53 m²
Nutzfläche:
85,06 m²
Zimmer:
3
Badezimmer:
1
Toilette:
1
Stockwerk:
2
Baujahr:
2027
Neubau:
Ja
Zustand:
Erstbezug
Verfügbarkeit:
Verfügbar

Beschreibung

In der Canavesegasse 4, eingebettet in eine ruhige und beliebte Wohngegend des 23. Wiener Gemeindebezirks, entsteht mit CANAVESE ein hochwertiges Neubauprojekt der Chronos Wohnbau Gruppe. Die Lage verbindet angenehme Zurückgezogenheit mit sehr guter urbaner Anbindung und bietet eine Wohnqualität, die Ruhe, Grün und Infrastruktur in ausgewogener Weise vereint.

Atzgersdorf steht für gewachsene Strukturen, Grünräume und ein entspanntes Wohnumfeld – bei gleichzeitig guter Erreichbarkeit des Stadtzentrums. Ein Standort für Menschen, die bewusst wohnen möchten und Wert auf Alltagstauglichkeit legen.

ARCHITEKTUR UND PROJEKTKONZEPT

Zwei architektonisch klar gestaltete Baukörper fügen sich harmonisch in das bestehende Ortsbild ein. Das Projekt umfasst 18 Eigentumswohnungen sowie 4 hochwertig integrierte Gewerbeflächen im Erdgeschoss. Die gewählte Projektgröße trägt zu einem ruhigen Wohngefühl und einer nachhaltigen Nachbarschaftsstruktur bei.

Die Wohnungen reichen von Gartenwohnungen über großzügige Familienwohnungen bis hin zu durchdacht geplanten Dachgeschosswohnungen. Ein Großteil der Einheiten verfügt über private Freiflächen – Eigengärten, Terrassen oder Balkone – und schafft damit wertvolle Außenräume für den Alltag.

INDIVIDUELLE GESTALTUNGSMÖGLICHKEITEN

Sie können Ihr zukünftiges Zuhause in vielen Bereichen persönlich mitgestalten.
Dazu zählen – sofern gewünscht –

* die Auswahl von Bodenbelägen und Fliesen 
* die Festlegung von Sanitärausstattung und Armaturen,
* die Abstimmung von Details des Innenausbaus wie Türen und Schalterprogramme,
* sowie die Anpassung von Grundriss und Raumaufteilung an individuelle Wohnbedürfnisse

Die Wohnungsbilder im Inserat beziehen sich auf Top 2, Top 8 sowie Top 11 und geben einen wundervollen ersten Eindruck in die Lebensqualität des Projekts.

AUSSTATTUNG UND WOHNQUALITÄT

Klare Linien, großzügige Fensterflächen und eine durchdachte Raumorganisation prägen das Wohngefühl. Fußbodenheizung, moderne Haustechnik, hochwertige Sanitärausstattung und langlebige Materialien bilden die Grundlage für zeitlosen Wohnkomfort und nachhaltige Wertbeständigkeit.

Die Grundrisse sind vielseitig nutzbar und eignen sich für unterschiedliche Lebenssituationen – vom ersten Eigenheim über die Familienzeit bis hin zur langfristigen Vorsorge.

LAGE UND UMGEBUNG

Die Umgebung bietet einen hohen Freizeit- und Erholungswert. Die Liesing, der Lainzer Tiergarten sowie die Perchtoldsdorfer Heide befinden sich in unmittelbarer Nähe. Nahversorgung, Schulen, Kindergärten und öffentliche Verkehrsmittel sind gut erreichbar. Die Wiener Innenstadt erreichen Sie in rund 25 Minuten.

ZEITPLAN

Der Baustart ist für Sommer 2026 vorgesehen, die Fertigstellung für Herbst 2027. Die klare Projektstruktur, die hochwertige Planung und die Möglichkeit zur individuellen Abstimmung bieten eine verlässliche Grundlage für Eigennutzer wie auch für Anleger.

CANAVESE STEHT FÜR

Ruhiges Wohnen. Durchdachte Planung. Individuelle Gestaltung. Langfristige Nutzbarkeit.

Ein Neubauprojekt für Menschen, die bewusst wählen –
und Wert auf Qualität, Ruhe und Substanz legen.

Gerne übermitteln wir Ihnen auf Anfrage auch die Preisliste für Anleger.

 

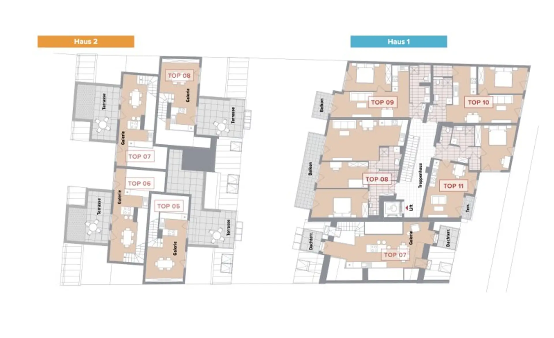
OBJEKTBESCHREIBUNG

Top 8 in Haus 1 befindet sich im 2. Obergeschoss und überzeugt durch eine ausgewogene Raumaufteilung sowie einer großzügigen Freifläche.

Mit ca. 72,53 m² Wohnnutzfläche bietet die Wohnung eine komfortable 3-Zimmer-Struktur, die sich ideal für Paare, kleine Familien oder Eigennutzer mit Platzbedarf eignet.

Der offen gestaltete Wohn-/Ess-/Kochbereich bildet den zentralen Wohnraum der Wohnung und bietet direkten Zugang zum großzügigen Balkon, der zusätzlichen Wohnraum im Freien schafft und für eine helle, freundliche Atmosphäre sorgt.

Zwei separat begehbare Schlafzimmer bieten angenehme Rückzugsmöglichkeiten und flexible Nutzung, etwa als Schlaf-, Kinder- oder Arbeitszimmer.

Ein Badezimmer, ein separates WC, ein praktischer Abstellraum sowie ein gut nutzbarer Vorraum sind funktional in den klar gegliederten Grundriss integriert und runden das Raumangebot stimmig ab.

HIGHLIGHTS AUF EINEN BLICK

* ca. 72,53 m² Wohnnutzfläche
* 3-Zimmer-Wohnung mit durchdachtem Grundriss
* Wohn-/Ess-/Kochbereich
* großzügiger Balkon
* 2 separat begehbare Schlafzimmer
* Bad & separates WC
* Abstellraum
* helle Wohnatmosphäre & ruhige Lage

 

Der Vermittler ist als Doppelmakler tätig.

Infrastruktur / Entfernungen

Gesundheit
Arzt <1.000m
Apotheke <500m
Klinik <500m
Krankenhaus <2.000m

Kinder & Schulen
Schule <500m
Kindergarten <500m
Universität <5.000m
Höhere Schule <4.500m

Nahversorgung
Supermarkt <500m
Bäckerei <500m
Einkaufszentrum <2.000m

Sonstige
Geldautomat <500m
Bank <500m
Post <2.000m
Polizei <2.000m

Verkehr
Bus <500m
U-Bahn <2.000m
Straßenbahn <2.000m
Bahnhof <500m
Autobahnanschluss <2.500m

Angaben Entfernung Luftlinie / Quelle: OpenStreetMap
Beschreibung weiterlesen

Lage und Verkehrsanbindung

Die Liegenschaft Canavesegasse 4, 1230 Wien liegt im beliebten Stadtteil Atzgersdorf und vereint ruhiges, grünes Wohnen mit einer sehr guten infrastrukturellen Anbindung und bietet damit eine ausgewogene Kombination aus höchster Wohnqualität, Erreichbarkeit und langfristiger Attraktivität.

Der Standort ist sowohl öffentlich als auch individuell sehr gut erreichbar. Der Bahnhof Wien Atzgersdorf (S-Bahn S2, S3, S4) sowie mehrere Buslinien gewährleisten eine direkte Anbindung an die U-Bahn-Linien U4 (Hietzing) und U6 (Alterlaa) sowie eine zügige Verbindung in die Wiener Innenstadt.

Die Nahversorgung ist umfassend und im unmittelbaren Umfeld gegeben. Supermärkte, Apotheken, Schulen, Kindergärten sowie medizinische Einrichtungen befinden sich in kurzer Distanz. Ergänzt wird das Angebot durch das Riverside Shopping Center sowie die Westfield Shopping City Süd. Grün- und Erholungsräume wie der Stadtpark Atzgersdorf und Spazierwege entlang der Liesing unterstreichen die Attraktivität und nachhaltige Wohnqualität des Standorts.

Atzgersdorf

Energieeffizienz

HWB:
31 kWh/(m²*a)
HWB Klasse:
B
fGEE:
0,75
fGEE Klasse:
B
Energieausweisart:
Energiebedarfs-ausweis
Gültig bis:
02.01.2036

Grundrisse

Lageplan

1230 Wien | Wien 23., Liesing

Lade...
Lia Seidel

Lia Seidel

AKKADIA Immobilienvermittlung GmbH

Lade...

Fotomix

Bild 1 Bild 2 Bild 3 Bild 4 Bild 5 Bild 6