NEU - Charakteristisches Haus in Untersiebenbrunn - Eckgrundstück, Gepflegt, TOP Garten!

Haus zum Kauf in 2284 Untersiebenbrunn - Kaufpreis: 439.000 € / Objektnummer: 6547/4156
Ausstattung: Boden Wohnküche / offene Küche Bad Klimaanlage Garage Parkplatz Zentralheizung Heizofen Terrasse
Hausfront
Drohnenfoto
Hausfront
Garten
Grillplatz
Seitenansicht
Garten / seitlicher Weg
Rückseite Haus
Doppelgarage, Rückseite Haus
Doppelgarage
Werkstatt Doppelgarage
Garten
Zufahrt zum Haus
Hausecke / Zufahrt
Zufahrt zur Garage
Hausfront
Terrasse Hausfront
Wintergarten / Eingangsbereich
Wintergarten / Eingangsbereich
Wintergarten / Eingangsbereich
Vorraum
WC
Vorraum zu den Zimmern
Zimmer 1
Zimmer 2
Badezimmer
Badezimmer
Badezimmer
Zimmer 3
Wohn - Essbereich
Wohn - Essbereich
Kachelofen Wohn - Essbereich
Wohn - Essbereich
Wohn - Essbereich
Terrasse Wohn - Essbereich
Abstellraum Wohn - Essbereich
Keller Technik / Abstellraum
Keller Vorraum
Keller Stüberl
Keller WC
Keller HWR
Drohnenfoto
Drohnenfoto
Drohnenfoto

Preisinformationen

Kaufpreis:
439.000 €
Betriebskosten netto:
207,00 € / Monat
Vermittlungsprovision:
Ja
Provision:
3% des Kaufpreises zzgl. 20% USt.

Fakten

Objektnummer:
6547/4156
Objekttyp:
Haus
Terrasse:
2
Keller Fläche:
77 m²
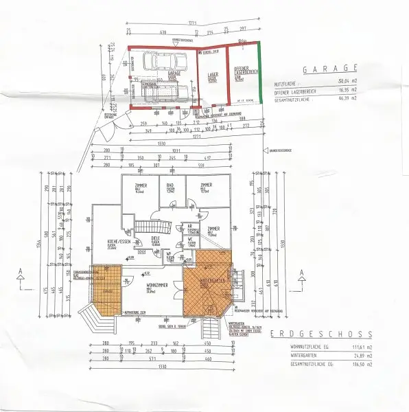
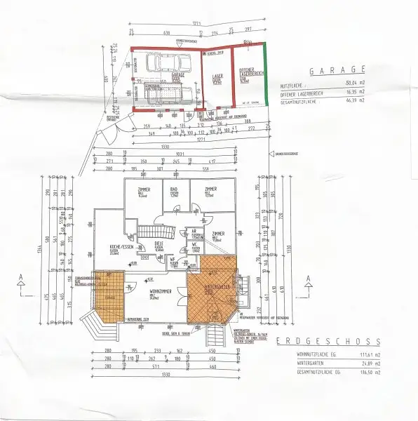
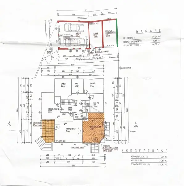
Wohnfläche:
137 m²
Grundstücksfläche:
839 m²
Zimmer:
4
Badezimmer:
1
Toilette:
2
Baujahr:
1984
Zustand:
Gepflegt
Verfügbarkeit:
Verfügbar

Beschreibung

KURZINFORMATION FÜR EILIGE LESER

*
Einfamilienhaus mit ca. 137 m² Wohnnutzfläche

*
Erdgeschoss: Eingangsbereich/Wintergarten, zentrales Vorzimmer, großzügiger und heller Wohn-Essbereich, 3 Schlafzimmer, 1 Badezimmer, separates WC, 2 Abstellräume

*
Keller: ca. 77 m²

*
Garage: ca. 35 m²

*
2 Lagerbereiche

*
Sehr gepflegte, außergewöhnliche Gartenanlage

*
Grundstücksfläche: ca. 839 m² (lt. Grundbuch)

*
Großzügiges Eckgrundstück mit nur einem direkten Nachbarn

*
Absolute Ruhelage

*
Beheizung & Warmwasser: Gas-Brennwertgerät, Wärmeabgabe über Radiatoren

*
Bauweise: Holzblockhaus

*
2 Kachelöfen (Wohnzimmer & Wintergarten)

*
Brunnen vorhanden

*
Video in den Anhängen

 

-------------

 

AUSFÜHRLICHE OBJEKTBESCHREIBUNG

DAS WOHNHAUS

Die Liegenschaft wurde 1984 errichtet, die Endbeschau erfolgte 1988.
Im Jahr 2000 wurde die Terrasse, der Wintergarten und die Doppelgarage zugebaut, diese wurden 2009 fertiggestellt.

Das Wohnhaus liegt in einer ruhigen Gasse. Über eine seitliche Zufahrt gelangt man zur freistehenden Doppelgarage, die Platz für zwei PKW, Werkzeug sowie zusätzlichen Stauraum bietet. Direkt bei der Garage befindet sich ein großzügiger Lagerbereich und eine Werkstatt. Von hier aus erreicht man in wenigen Schritten den Kellerabgang des Hauses.

Ein besonderes Highlight ist der wunderschöne Eingangsbereich in Form eines Wintergartens, ausgestattet mit einem Kachelofen, der bereits beim Betreten eine äußerst angenehme Atmosphäre schafft. Über wenige Stufen gelangt man in den zentralen Vorraum, von dem aus alle Räume, der Keller sowie der offene Wohn-Essbereich erschlossen werden.

Der helle Wohn-Essbereich mit direktem Ausgang auf die Terrasse bildet das Herzstück des Hauses. Ein Kachelofen sorgt für wohlige Wärme, ein Abstellraum im Küchenbereich bietet zusätzlichen Stauraum.
Vom Vorraum aus sind außerdem ein separates WC sowie ein weiterer Abstellraum erreichbar.
Ein kleiner Gang führt zu den drei Schlafzimmern sowie zum vor rund 2-3 Jahren renovierten Badezimmer, das sowohl mit Badewanne als auch Dusche ausgestattet ist.

Der Abgang in den Keller führt direkt in den Heizraum. Von hier gelangt man über eine Außentreppe wieder in den Garten und in wenigen Schritten zur Garage.
Im Keller befinden sich außerdem ein Kellergang, ein kleiner Raum, ein WC, ein Hauswirtschaftsraum mit Dusche sowie ein großzügiger Studioraum mit Festbrennstoffofen.

 

-------------

 

GARTEN UND AUSSENBEREICH

Ein echtes Highlight ist der liebevoll angelegte Garten, der von allen Seiten des Hauses zugänglich ist.
Die überdachte Terrasse, direkt vom Essbereich begehbar, bietet den perfekten Rahmen für gemütliche Familienfeiern. Ein Grillplatz sowie mehrere geschmackvoll angelegte Beete machen den Außenbereich besonders attraktiv für Gartenliebhaber.

Zwei praktische Lagerbereiche bieten zusätzlichen Stauraum für Garten- und Werkzeuggeräte.
Eine Doppelgarage rundet das Angebot ab und unterstreicht den hohen Nutzwert der Liegenschaft.

Der Garten ist mit einer vollautomatischen Bewässerungsanlage ausgestattet.

 

-------------

 

TECHNIK, HEIZUNG & BETRIEBSKOSTEN

*
Beheizung: Gas

*
Warmwasser: Gas

*
Wärmeverteilung: Heizkörper

*
Kachelöfen im Wohnzimmer und im Wintergarten – ideale Zusatzheizung

BETRIEBSKOSTEN

*
Strom: ca. 6.000 kWh Jahr (dies ist natürlich abhängig davon, wie viel Strom verbraucht wird) - bei 30 Cent pro kWh wären rund 150€ / Monat fällig.

*
Gas: 11.000 kWh Jahr (dies ist natürlich abhängig davon, wie viel geheizt wird) - bei 14 Cent pro kWh wären rund 130€ / Monat fällig

*
Gemeindekosten: (Grundsteuer, Wasser, Kanal): ca. € 207 / Quartal

*
GVU-Kosten: € 145 / Quartal

 

-------------

 

🏫 Bildungseinrichtungen

* Kindergärten: Untersiebenbrunn verfügt über einen modernen Kindergarten, der eine liebevolle Betreuung und frühkindliche Bildung für die jüngsten Einwohner sicherstellt.
* Volksschule: Die örtliche Volksschule bietet eine umfassende Grundschulausbildung und legt Wert auf individuelle Förderung der Schüler.
* Mittelschule: Die nächsten Mittelschulen befinden sich in Leopoldsdorf im Marchfeld und Lassee.

 

-------------

 

🏥 Gesundheitsversorgung

* Allgemeinmedizin: In der Gemeinde praktiziert eine Allgemeinmedizinerin, die die medizinische Grundversorgung der Bevölkerung gewährleistet.
* Fachärzte: Eine Zahnärztin ist direkt in Untersiebenbrunn, weitere Fachärzte haben ihre Ordinationen in den umliegenden Gemeinden.

 

-------------

 

🛍️ Nahversorgung

In Untersiebenbrunn selbst gibt es derzeit keine Filialen von großen Supermarktketten wie BILLA, BIPA oder PENNY. Die nächstgelegenen Einkaufsmöglichkeiten befinden sich in den angrenzenden Gemeinden.

* BILLA: Filiale in der Josef Slavik-Straße 1, Obersiebenbrunn. 
* HOFER: Filiale in der Hauptstraße 47, Leopoldsdorf im Marchfeld. 
* Spar: Filiale in der Hauptstraße 19, Leopoldsdorf im Marchfeld. 

Diese Geschäfte bieten eine umfassende Nahversorgung und sind mit dem Auto als auch mit dem Fahrrad gut erreichbar.

 

-------------

 

🚍 Öffentlicher Verkehr

Busverbindungen:

* Linie 540: Verbindet Untersiebenbrunn mit Wien Hausfeldstraße (U2) und Schlosshof sowie weiteren Haltestellen in der Umgebung.
* Linie 546: Bedient die Strecke zwischen Gänserndorf und Stopfenreuth.

Aktuelle Fahrpläne und Verbindungen sind über den Verkehrsverbund Ost-Region (VOR) abrufbar: www.vor.at [https://www.vor.at/]

Bahnverbindungen:

Der Bahnhof Untersiebenbrunn bietet regelmäßige Zugverbindungen nach Wien, sowie Marchegg und weiter nach Bratislava. Ein Parkplatz steht zum einfacheren Umstieg in die Bahn zur Verfügung.

 

-------------

 

🚗 Auto-Anbindung:

*
Straßenanbindung: Untersiebenbrunn ist über die Landesstraßen gut an das regionale Straßennetz angebunden.

*
Fahrzeit nach Wien: Die Fahrzeit mit dem Auto nach Wien beträgt je nach Verkehrslage etwa 25-30 Minuten, was die Gemeinde besonders für Pendler interessant macht.

 

-------------

 

🌳 Besonderheiten & Freizeit

Untersiebenbrunn legt großen Wert auf eine nachhaltige Entwicklung und den Erhalt des ländlichen Charakters. Projekte zur Verbesserung der Infrastruktur werden moderat und mit Bedacht umgesetzt, um die Lebensqualität der Einwohner zu steigern, ohne den dörflichen Charme zu verlieren. 

 

Wichtig

Unter bestimmten Voraussetzungen (Anmeldung als Hauptwohnsitz, dringendes Wohnbedürfnis), kommen Sie jetzt in den Genuss der Gebührenbefreiung von der Grundbucheintragungsgebühr (1,1%) und der Eintragungsgebühr des Pfandrechts (1,2%)!

 

SIE SIND NOCH UNSCHLÜSSIG, OB IHRE FINANZIERUNG GESICHERT IST?

Ihre Hausbank benötigt im Normalfall 4-6 Wochen, um Ihnen mitzuteilen, ob Ihr Kredit bewilligt wird, oder nicht. Unser Finanzierungspartner sagt Ihnen nicht nur anhand Ihrer Unterlagen in kürzester Zeit, ob die Finanzierung klappen wird, er sorgt auch für den besten und günstigsten Wohnkredit, da er Zugang zu den besten Angeboten aller relevanten Banken hat.

Wir weisen darauf hin, dass zwischen dem Vermittler und dem zu vermittelnden Dritten ein familiäres oder wirtschaftliches Naheverhältnis besteht.

Der Vermittler ist als Doppelmakler tätig.

Infrastruktur / Entfernungen

Gesundheit
Arzt <8.500m
Apotheke <5.000m
Klinik <9.500m

Kinder & Schulen
Kindergarten <1.000m
Schule <3.000m

Nahversorgung
Supermarkt <2.500m
Bäckerei <7.500m

Sonstige
Geldautomat <6.000m
Bank <6.000m
Post <1.000m
Polizei <6.000m

Verkehr
Bus <1.000m
Bahnhof <2.000m

Angaben Entfernung Luftlinie / Quelle: OpenStreetMap
Beschreibung weiterlesen

Lage und Verkehrsanbindung

Dieses charmante Einfamilienhaus befindet sich in der Gemeinde Untersiebenbrunn, welche etwa 20 Kilometer nordöstlich von Wien liegt und bietet eine ideale Lage, auch für Familien. Ein Schnellbahnanschluss mit einer Verbindung nach Bratislava bzw. zum Hauptbahnhof Wien ist in Untersiebenbrunn vorhanden. Die ruhige Lage genießt sowohl ländlichen Charme als auch eine gute Anbindung an die A4 Autobahn und die Nähe zu Gänserndorf und dem Marchfeld. Die nächstgelegenen Nahversorger befinden sich in Obersiebenbrunn, Lassee und Leopoldsdorf, welche bequem mit dem Auto erreichbar sind. Bratislava ist ca. 40 Minuten entfernt.

Energieeffizienz

HWB:
96,4 kWh/(m²*a)
HWB Klasse:
C
fGEE:
1,22
fGEE Klasse:
C
Energieausweisart:
Energiebedarfs-ausweis
Gültig bis:
18.12.2035

Dokumente

Grundrisse

Lageplan

2284 Untersiebenbrunn | Gänserndorf

Lade...
Markus Dassler

Markus Dassler
Staatlich konzessionierter Immobilienmakler

TRUE Immobilien GmbH & Co KG

Lade...

Fotomix

Hausfront Drohnenfoto Hausfront Garten Grillplatz Seitenansicht Garten / seitlicher Weg Rückseite Haus Doppelgarage, Rückseite Haus Doppelgarage Werkstatt Doppelgarage Garten Zufahrt zum Haus Hausecke / Zufahrt Zufahrt zur Garage Hausfront Terrasse Hausfront Wintergarten / Eingangsbereich Wintergarten / Eingangsbereich Wintergarten / Eingangsbereich Vorraum WC Vorraum zu den Zimmern Zimmer 1 Zimmer 2 Badezimmer Badezimmer Badezimmer Zimmer 3 Wohn - Essbereich Wohn - Essbereich Kachelofen Wohn - Essbereich Wohn - Essbereich Wohn - Essbereich Terrasse Wohn - Essbereich Abstellraum Wohn - Essbereich Keller Technik / Abstellraum Keller Vorraum Keller Stüberl Keller WC Keller HWR Drohnenfoto Drohnenfoto Drohnenfoto