NEU - Charmante 2-Zimmer Wohnung im Altbau mit Lift - Zentrale Lage im 16. Bezirk Nähe U3 Ottakring!

Wohnung zum Kauf in 1160 Wien - Kaufpreis: 149.000 € / Objektnummer: 3221
Ausstattung: Boden Fahrstuhl Abstellraum Etagenheizung

Preisinformationen

Kaufpreis:
149.000 €
Kaufpreis/m²
3.631,49 €
Betriebskosten netto:
82,12 € / Monat
Vermittlungsprovision:
Ja
Provision:
3% des Kaufpreises zzgl. 20% USt.

Fakten

Objektnummer:
3221
Objekttyp:
Wohnung
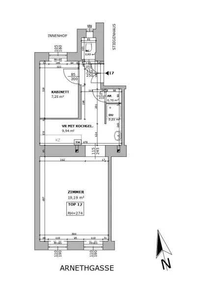
Wohnfläche:
41,03 m²
Nutzfläche:
41,03 m²
Zimmer:
2
Toilette:
1
Stockwerk:
2
Baujahr:
1913
Altbau:
Ja
Zustand:
Sanierungsbedürftig
Verfügbarkeit:
Verfügbar

Beschreibung

FAST FACTS WOHNUNG | KAUF | 1160 | 2. Stock mit Lift | Wohnfläche rund 41,03 | 2 Zimmer | Toilette separat | Sanierungsbedürftig | Nähe U3 Ottakring |

Diese charmante Wohnung mit einer Wohnfläche von rund 41,03 m² befindet sich in einer gepflegten Altbauliegenschaft aus dem Jahr 1913 und überzeugt durch ihren klassischen Charakter sowie eine praktische Raumaufteilung.

Die Wohnung gliedert sich in einen Vorraum, der zugleich Platz für eine Küchennische sowie einen Bereich für die Dusche bietet. Von hier aus gelangen Sie in das Wohnzimmer, das mit einem entspannten Ausblick und modernen Fenstern mit Doppelverglasung überzeugt. Ein separates Schlafzimmer sorgt für eine angenehme Rückzugsmöglichkeit und bietet hier eine Ausrichtung in den Innenhof. 

Ergänzt wird das Raumangebot durch eine separat begehbare Toilette, sowie einen praktischen Abstellraum, der zusätzlichen Stauraum für Haushaltsgeräte und persönliche Gegenstände schafft.

Die Wohnung eignet sich ideal für Singles, Pendler oder Anleger, die eine kompakte und funktional geschnittene Wohnung in einem klassischen Wiener Altbau suchen. Die Kombination aus historischer Bausubstanz, effizienter Raumaufteilung und zentraler Lage macht diese Einheit zu einer attraktiven Gelegenheit.

Ein Kellerabteil steht zur Verfügung!

Die Wohnung wird im sanierungsbedürftigem Zustand angeboten!

Raumaufteilung:

* Vorraum
* Toilette
* Abstellraum
* Schlafzimmer
* Wohnzimmer

Infrastruktur & Verkehrsanbindung:

*
U-Bahn: Linie U3 – Station Ottakring (fußläufig erreichbar)

*
Straßenbahn: Linien 44 und 46

*
Bus: Linie 10A

*
S-Bahn: S45 – Bahnhof Ottakring

Die Liegenschaft bietet Ihnen eine ideale Anbindung an die öffentlichen Verkehrsnetze. Die U-Bahnlinien U3 Ottakring ist fußläufig in kürzester Zeit zu erreichen. Schnellbahn, Straßenbahn und diverse Buslinien erweitern das Angebot. Eine perfekte Nahversorgung ist dank einem reichhaltigen Angebot an Gastronomie und Einzelhandel in direkter Nachbarschaft garantiert. Sämtliche Geschäfte des alltäglichen Lebens befinden sich in unmittelbarer Umgebung und eine Vielzahl an Restaurants wartet darauf von Ihnen entdeckt zu werden. 

Für einen Besichtigungstermin oder Fragen stehe ich Ihnen sehr gerne zur Verfügung.

Wir möchten darauf hinweisen, dass zwischen ViennaEstate Makler GmbH und dem Auftraggeber ein wirtschaftliches Naheverhältnis besteht. Die ViennaEstate Makler GmbH ist als Doppelmakler tätig.

Wir weisen darauf hin, dass zwischen dem Vermittler und dem zu vermittelnden Dritten ein familiäres oder wirtschaftliches Naheverhältnis besteht.

Der Vermittler ist als Doppelmakler tätig.

Infrastruktur / Entfernungen

Gesundheit
Arzt <500m
Apotheke <500m
Klinik <1.000m
Krankenhaus <500m

Kinder & Schulen
Schule <500m
Kindergarten <500m
Universität <1.500m
Höhere Schule <1.500m

Nahversorgung
Supermarkt <500m
Bäckerei <500m
Einkaufszentrum <1.000m

Sonstige
Geldautomat <500m
Bank <500m
Post <500m
Polizei <500m

Verkehr
Bus <500m
U-Bahn <500m
Straßenbahn <500m
Bahnhof <500m
Autobahnanschluss <5.000m

Angaben Entfernung Luftlinie / Quelle: OpenStreetMap
Beschreibung weiterlesen

Lage und Verkehrsanbindung

Ottakring ist ein vielfältiger Bezirk im Westen Wiens, der für seine lebendige Atmosphäre und kulturelle Vielfalt bekannt ist. Er zeichnet sich durch eine Mischung aus historischen Gebäuden, modernen Wohnanlagen und zahlreichen Geschäften aus. Besonders beliebt ist der Wilhelminenberg mit seinem Schloss und den schönen Ausblicken über die Stadt. Ottakring hat auch eine reiche Biertradition, die in der berühmten Ottakringer Brauerei ihren Ausdruck findet. Der Bezirk ist gut an das öffentliche Verkehrsnetz angebunden und bietet eine Vielzahl von Freizeitmöglichkeiten, darunter Parks, Restaurants und kulturelle Veranstaltungen.

Öffentliche Verkehrsmittel:
- U-Bahn Station U3 Ottakring
- S-Bahn S45 Bahnhof Ottakring
- Straßenbahnlinie 44, 46
- Buslinie N46

U3 Ottakring

Energieeffizienz

HWB:
148,8 kWh/(m²*a)
HWB Klasse:
D
fGEE:
2,56
fGEE Klasse:
E
Energieausweisart:
Energiebedarfs-ausweis
Gültig bis:
24.06.2033

Grundriss

Lageplan

1160 Wien | Wien 16., Ottakring

Lade...
Markus Damej

Markus Damej

ViennaEstate Makler GmbH

Lade...

Fotomix

Bild 1 Bild 2 Bild 3 Bild 4 Bild 5 Bild 6 Bild 7 Bild 8