NEU - Charmante 2-Zimmer-Wohnung mit Terrasse in 1100 Wien

Wohnung zur Miete in 1100 Wien - Gesamtmiete: 949,00 € / Objektnummer: 95347
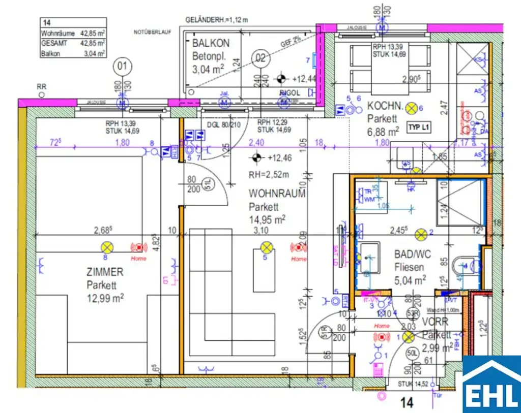
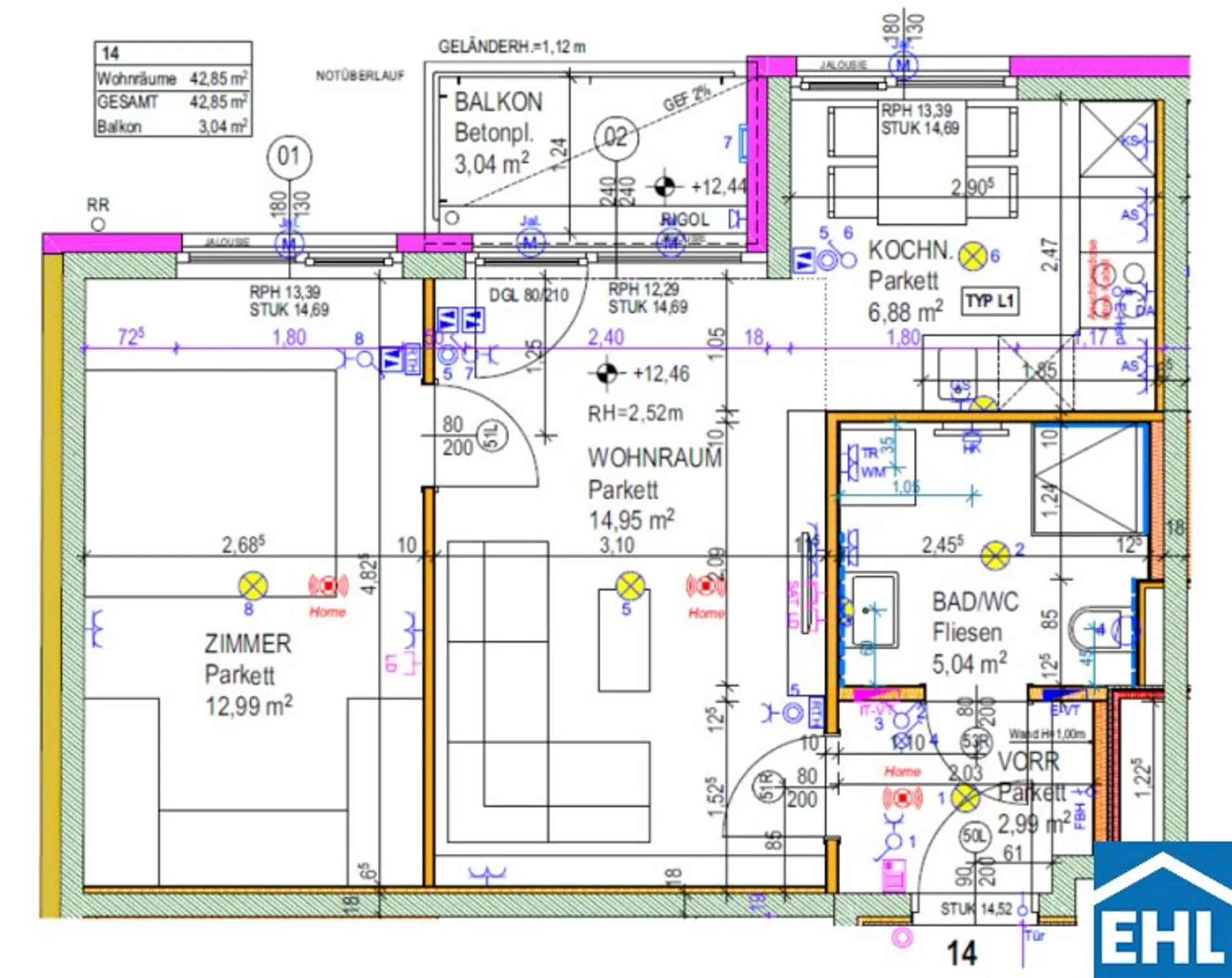
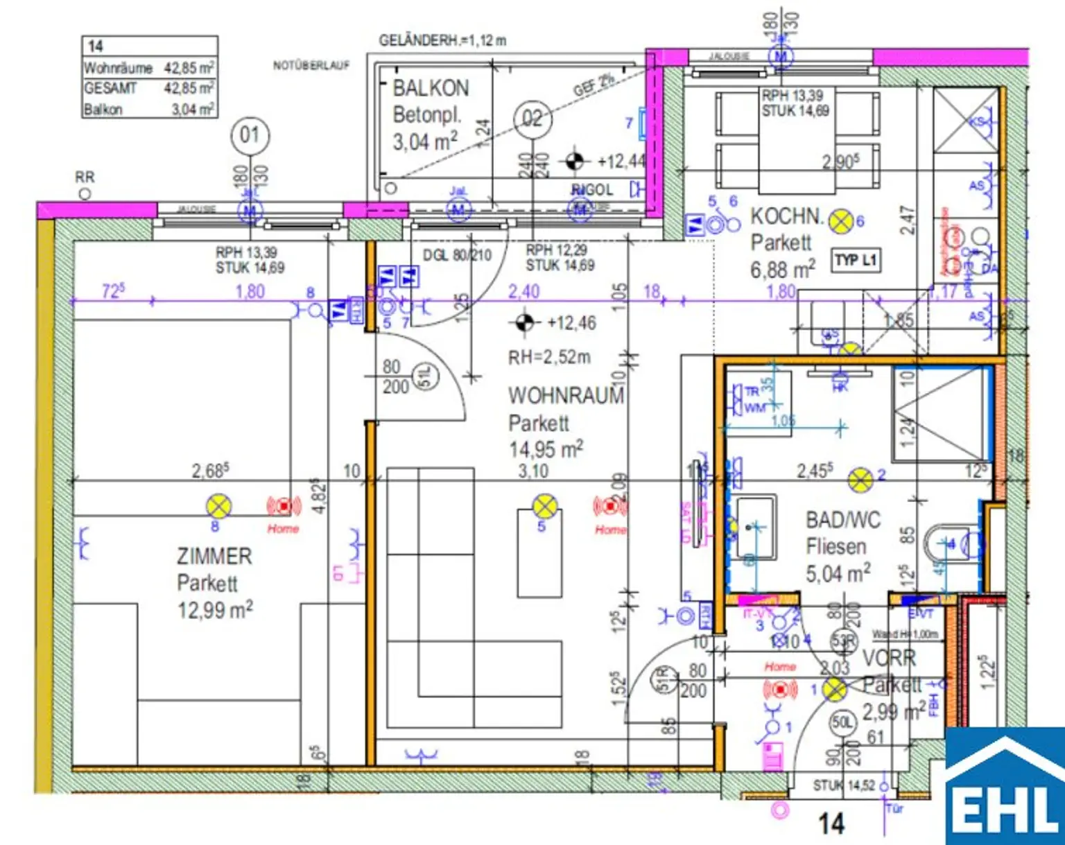
Ausstattung: Boden Wohnküche / offene Küche Bad Abstellraum Fernwärme Balkon

Preisinformationen

Gesamtmiete:
949,00 € / Monat
Betriebskosten netto:
108,42 € / Monat
Umsatzsteuer:
86,27 €
Kaution:
2.847,00 €
Provision:
Gemäß Erstauftraggeberprinzip bezahlt der Abgeber die Provision.

Fakten

Objektnummer:
95347
Objekttyp:
Wohnung
Balkon:
1
Balkonfläche:
3,04 m²
Wohnfläche:
42,85 m²
Zimmer:
2
Badezimmer:
1
Toilette:
1
Stockwerk:
4
Neubau:
Ja
Verfügbarkeit:
Verfügbar

Beschreibung

Charmante 2-Zimmer-Wohnung mit Terrasse in 1100 Wien

_Willkommen in der Lebgasse!_

Die Wohnung befindet sich in der Leebgasse 60/14, in einem gepflegten Wohnhaus im 10. Wiener Gemeindebezirk. Die Lage überzeugt durch ihre hervorragende Infrastruktur und eine angenehme Wohnumgebung. In wenigen Gehminuten erreichen Sie die Favoritenstraße mit zahlreichen Einkaufsmöglichkeiten, Cafés, Restaurants und Dienstleistungsbetrieben des täglichen Bedarfs.

Wunderschöne Wohnung in praktischer Lage

Die öffentliche Anbindung ist ideal: Die U1 Station Reumannplatz sowie mehrere Straßenbahn- und Buslinien befinden sich in unmittelbarer Nähe und ermöglichen eine schnelle Verbindung ins Stadtzentrum. Auch der Hauptbahnhof ist mit dem Auto nur zehn Minuten entfernt – perfekt für Pendler und Vielreisende.

Die Wohnung

Diese gut geschnittene 2-Zimmer-Wohnung überzeugt durch eine durchdachte Raumaufteilung und eine gemütliche Terrasse, die zum Entspannen im Freien einlädt. Der Wohnbereich umfasst eine moderne, vollausgestattete Wohnküche, ein getrennt begehbares Schlafzimmer, ein Badezimmer mit Dusche, WC und Waschmaschinenanschluss, sowie einen einladenden Vorraum. Der Balkon rundet das Wohnerlebnis perfekt ab. 

Bei den Fotos handelt es sich um Musterfotos! 

Ausstattung

* Parkettböden in den Wohnräumen und
* Fliesen in den Nassräumen 
* Fußbodenheizung mittels Fernwärme
* modernes Bad mit WC und Dusche

Heizung und Warmwasser wird nach Verbrauch berechnet

Beziehbar ab: 01.04.2026

Befristung: 5 Jahre, 1 Jahr Kündigungsverzicht 

Hinweis gemäß Energieausweisvorlagegesetz: Ein Energieausweis wurde vom Eigentümer bzw. Verkäufer, nach unserer Aufklärung über die generell geltende Vorlagepflicht, sowie Aufforderung zu seiner Erstellung noch nicht vorgelegt. Daher gilt zumindest eine dem Alter und der Art des Gebäudes entsprechende Gesamtenergieeffizienz als vereinbart. Wir übernehmen keinerlei Gewähr oder Haftung für die tatsächliche Energieeffizienz der angebotenen Immobilie.

Wir weisen darauf hin, dass zwischen dem Vermittler und dem zu vermittelnden Dritten ein familiäres oder wirtschaftliches Naheverhältnis besteht.

Der Immobilienmakler erklärt, dass er – entgegen dem in der Immobilienwirtschaft üblichen Geschäftsgebrauch des Doppelmaklers – einseitig nur für den Vermieter tätig ist.

Infrastruktur / Entfernungen

Gesundheit
Arzt <50m
Apotheke <250m
Klinik <450m
Krankenhaus <1.375m

Kinder & Schulen
Schule <125m
Kindergarten <350m
Universität <825m
Höhere Schule <2.175m

Nahversorgung
Supermarkt <175m
Bäckerei <275m
Einkaufszentrum <1.125m

Sonstige
Geldautomat <450m
Bank <375m
Post <350m
Polizei <600m

Verkehr
Bus <225m
U-Bahn <675m
Straßenbahn <250m
Bahnhof <675m
Autobahnanschluss <1.575m

Angaben Entfernung Luftlinie / Quelle: OpenStreetMap
Beschreibung weiterlesen

Lage und Verkehrsanbindung

Arthaberplatz, Reumannplatz

Grundriss

Lageplan

1100 Wien | Wien 10., Favoriten

Lade...
Andreas Minarik

Andreas Minarik
Immobilienberater

EHL Wohnen GmbH

Lade...

Fotomix

Bild 1 Bild 2 Bild 3 Bild 4 Bild 5 Bild 6 Bild 7 Bild 8