NEU - Charmante Dachgeschosswohnung mit hofseitiger Terrasse in 1220 Wien

Wohnung zur Miete in 1220 Wien - Gesamtmiete: 821,43 € / Objektnummer: 7464/286
Ausstattung: Terrasse

Preisinformationen

Gesamtmiete:
821,43 € / Monat
Kaution:
3 Bruttomonatsmieten
Provision:
Gemäß Erstauftraggeberprinzip bezahlt der Abgeber die Provision.

Fakten

Objektnummer:
7464/286
Objekttyp:
Wohnung
Terrasse:
1
Wohnfläche:
39,42 m²
Badezimmer:
1
Toilette:
1
Baujahr:
2023
Neubau:
Ja
Letzte Sanierung:
2026
Zustand:
Neuwertig
Verfügbarkeit:
Verfügbar

Beschreibung

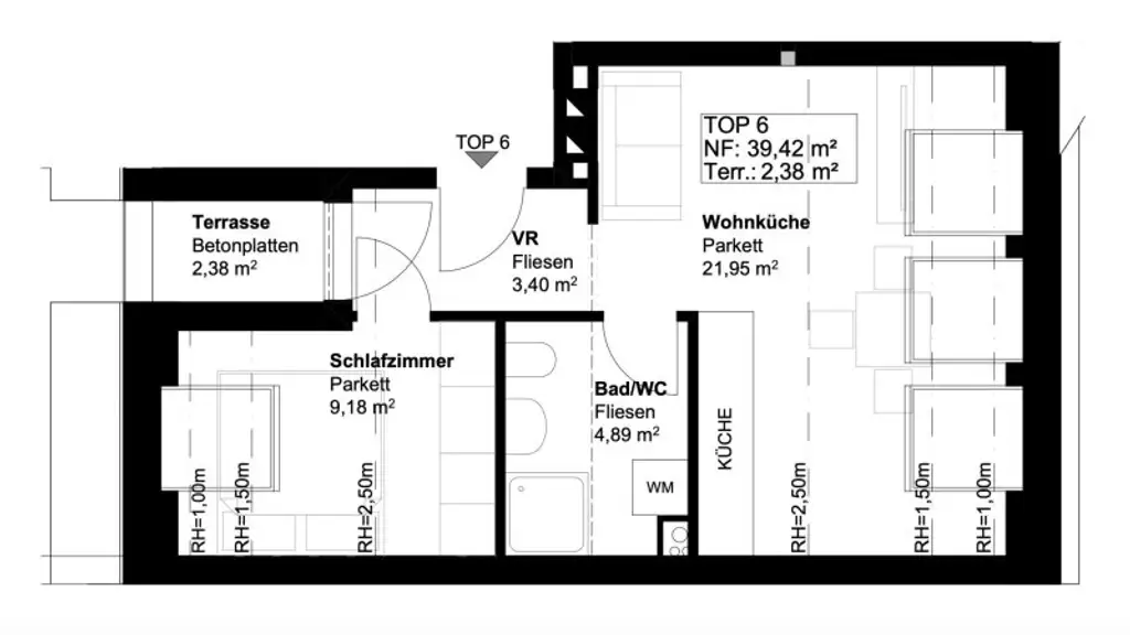
TOP 6 | DACHGESCHOSS | 2 ZIMMER | CA. 39,42 M² | TERRASSE 

In zentraler Lage entlang der Esslinger Hauptstraße präsentiert sich dieses im Jahr 2023 umfassend sanierte Bestandsobjekt als modernes Wohnprojekt mit insgesamt sechs stilvollen Wohneinheiten sowie einem Geschäftslokal. Besonderes Augenmerk wurde dabei auf eine hochwertige Ausstattung, durchdachte Grundrisse sowie helle, freundliche Wohnräume mit großzügigen Glasflächen gelegt.

Die gegenständliche Wohnung Top 6 befindet sich im Dachgeschoss (2. Obergeschoss, kein Lift) und überzeugt durch ihre effiziente Raumaufteilung auf ca. 39,42 m². Sie verfügt über einen einladenden Wohnbereich mit moderner Wohnküche, ein separates Schlafzimmer sowie ein geschmackvoll ausgestattetes Badezimmer mit WC. Ergänzt wird das Angebot durch eine rund 2 m² große, hofseitig ausgerichtete Terrasse, die einen ruhigen Rückzugsort im Freien bietet.

Für ein angenehmes Wohnklima sorgt eine zeitgemäße Haustechnik: Beheizt wird die Wohnung mittels energieeffizienter Luft-Wärmepumpe in Kombination mit einer zusätzlichen Gastherme. Die Wärmeverteilung erfolgt komfortabel über eine Fußbodenheizung in allen Wohnräumen. Hochwertige, dreifach verglaste Fenster und Terrassentüren der Marke Schüco gewährleisten beste Wärmedämmung und ein ruhiges Wohngefühl. Edle Eichenparkettböden sowie stilvolle Sanitärausstattungen runden das hochwertige Gesamtbild ab.

HIGHLIGHTS DER WOHNUNG:

*
Energieeffiziente Luft-Wärmepumpe (Vaillant) & zusätzliche Gastherme

*
Fußbodenheizung in allen Räumen

*
3-fach verglaste Markenfenster (Schüco)

*
Hochwertige Eichenparkettböden

*
Moderne Wohnküche

*
Ruhige, hofseitige Terrasse

*
Achtung! Haustierhaltung nicht gestattet!

*
Die Wohnung ist ab sofort bezugsfertig

*
Kaution: 3 Bruttomonatsmieten

*
Mietdauer: befristet auf 3 Jahre

*
Monatliche Miete inkl. Betriebskosten und USt: € 821,43
 

 

Gerne stehen wir Ihnen für weitere Informationen oder zur Vereinbarung eines Besichtigungstermins jederzeit zur Verfügung. 

Wir weisen darauf hin, dass zwischen dem Vermittler und dem zu vermittelnden Dritten ein familiäres oder wirtschaftliches Naheverhältnis besteht.

Der Immobilienmakler erklärt, dass er – entgegen dem in der Immobilienwirtschaft üblichen Geschäftsgebrauch des Doppelmaklers – einseitig nur für den Vermieter tätig ist.

Infrastruktur / Entfernungen

Gesundheit
Arzt <500m
Apotheke <500m
Klinik <2.500m
Krankenhaus <5.000m

Kinder & Schulen
Schule <500m
Kindergarten <500m
Universität <500m
Höhere Schule <2.000m

Nahversorgung
Supermarkt <500m
Bäckerei <1.500m
Einkaufszentrum <2.000m

Sonstige
Geldautomat <2.500m
Bank <500m
Post <500m
Polizei <2.000m

Verkehr
Bus <500m
U-Bahn <2.500m
Straßenbahn <3.000m
Bahnhof <2.500m
Autobahnanschluss <6.000m

Angaben Entfernung Luftlinie / Quelle: OpenStreetMap
Beschreibung weiterlesen

Lage und Verkehrsanbindung

Die Liegenschaft befindet sich in attraktiver Lage im 22. Wiener Gemeindebezirk Donaustadt, entlang der Esslinger Hauptstraße – einer der zentralen Verkehrsadern im aufstrebenden Stadtteil Essling. Die Umgebung ist geprägt von einer ausgewogenen Mischung aus gepflegten Wohnhäusern, moderner Neubautätigkeit sowie gewerblichen Nutzungen und bietet eine hohe Lebens- und Standortqualität.

Die Nahversorgung ist hervorragend: Zahlreiche Einkaufsmöglichkeiten, Supermärkte, Bäckereien sowie Gastronomiebetriebe befinden sich in unmittelbarer Umgebung und sind bequem erreichbar. Ergänzt wird die Infrastruktur durch Schulen, Kindergärten, Ärzte und diverse Dienstleistungsangebote, die den Alltag komfortabel gestalten.

Die Verkehrsanbindung ist als sehr gut zu bewerten. Mehrere Buslinien gewährleisten eine rasche Anbindung an die U-Bahn-Linie U2 (z. B. Station Aspernstraße oder Seestadt), wodurch eine schnelle Verbindung in die Wiener Innenstadt gegeben ist. Auch mit dem Individualverkehr profitiert die Lage von einer guten Erreichbarkeit über die Esslinger Hauptstraße sowie die nahegelegene Anbindung an das übergeordnete Straßennetz.

Ein besonderes Merkmal dieser Lage ist die Nähe zu weitläufigen Grün- und Erholungsflächen. Die Lobau als Teil des Nationalparks Donau-Auen sowie zahlreiche Felder und Radwege bieten vielfältige Freizeit- und Erholungsmöglichkeiten in unmittelbarer Umgebung.

Insgesamt überzeugt die Lage durch ihre Kombination aus urbaner Infrastruktur, naturnahem Umfeld und hervorragender Anbindung – ideal sowohl für Wohn- als auch für gewerbliche Nutzungskonzepte.







.

Energieeffizienz

HWB:
38,8 kWh/(m²*a)
HWB Klasse:
B
fGEE:
0,68
fGEE Klasse:
A+
Energieausweisart:
Energiebedarfs-ausweis
Gültig bis:
10.05.2032

Grundriss

Lageplan

1220 Wien | Wien 22., Donaustadt

Lade...
Clarissa Izzo

Clarissa Izzo
Vertrieb

Estoria Real Estate GmbH

Lade...

Fotomix

Bild 1 Bild 2 Bild 3 Bild 4 Bild 5 Bild 6 Bild 7 Bild 8 Bild 9 Bild 10 Bild 11 Bild 12