Stadtrand trifft City: Helle 2-Zimmer-Wohnung mit Loggia nahe Wienerberg

Wohnung zum Kauf in 1100 Wien - Kaufpreis: 299.000 € / Objektnummer: 247/22036
Ausstattung: Fahrstuhl Abstellraum Fernwärme

Preisinformationen

Kaufpreis:
299.000 €
Kaufpreis/m²
4.152,78 €
Betriebskosten netto:
198,36 € / Monat
Preisinfos:
GrESt 3,5% + Grundbucheintragung 1,1% des Gesamtkaufpreises / Vertragserrichtung 1,5% + Barauslagen, Beglaubigungs-, ggf. Treuhandkosten bei Finanzierung +USt. (WeiKes RA) / WE-Begründungsbeitrag € 500 +USt. / Provisio…
Vermittlungsprovision:
Ja
Provision:
3%

Fakten

Objektnummer:
247/22036
Objekttyp:
Wohnung
Wohnfläche:
72 m²
Zimmer:
2
Badezimmer:
1
Toilette:
1
Baujahr:
1900
Altbau:
Ja
Verfügbarkeit:
Verfügbar

Beschreibung

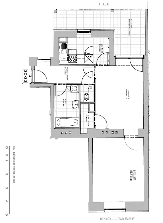
Sie leben gerne am Stadtrand und schätzen die Vorteile: kurze Wege ins Grüne, aber gleichzeitig schnell in die City? Dann ist diese lichtdurchflutete 2-Zimmer-Wohnung mit Loggia genau das Richtige für Sie! Genießen Sie funktionale Räume, eine helle Atmosphäre und eine Top-Lage zwischen Wienerberg und Matzleinsdorfer Platz. DIE DETAILS: * 2. Obergeschoss in einem sanierten Altbau * Vorraum, separate Toilette, Badezimmer mit Badewanne, Küche, zwei Zimmer, Abstellraum, Loggia * Heizsystem bereits auf Fernwärmeheizung modernisiert * Aufzug im Haus vorhanden vorhanden * 2006 wurde dem heutigen Gebäude entsprechend, ein Ausbau abgeschlossen und das Zinshaus umfassend saniert DIE LAGE HIGHLIGHTS: *Nähe Matzleinsdorfer Platz mit hervorragender Anbindung (S-Bahn, Straßenbahn, Bus) *Schnelle Erreichbarkeit der Wiener Innenstadt *Gute Anbindung an die Südosttangente (A23) *Nahversorgung durch zahlreiche Supermärkte und Geschäfte des täglichen Bedarfs *Erholungsgebiete wie Wienerberg und Grünflächen in der Umgebung Der Kaufpreis für diese Eigentumswohnung mit hervorragender Infrastruktur beträgt Euro 299.000,- Tipp: Die gesamte Anlage wird gerade abverkauft, fragen Sie uns nach weiteren Objekten bzw. Paketangeboten! Wir möchten darauf hinweisen, dass unsere Antwort möglicherweise in Ihrem Spamordner landen könnte. Bitte kontrollieren Sie diesen, wenn Sie keine Rückmeldung auf Ihre Anfrage erhalten haben.
Beschreibung weiterlesen

Lage und Verkehrsanbindung

Matzleinsdorfer Platz

Energieeffizienz

HWB:
59 kWh/(m²*a)
HWB Klasse:
C
fGEE:
1,41
fGEE Klasse:
C

Grundrisse

Melanie Eiblthauer

Melanie Eiblthauer

IMV Immobilienmakler

Lade...

Fotomix

Wohnraum I Wohnraum II Schlafzimmer I Schlafzimmer II Küche Badezimmer Vorraum Freifläche I Freifläche II Aussenansicht Hausansicht III Eingang_Postfächer Stiegenhaus I Hausansicht I Hausansicht II Hausansicht IV Hausansicht V Hausansicht VII Gegensprechanlage Stiegenhaus II Stiegenhaus IV