NEU - Charmante Wohnung in Dornbirn mit Loggia und Parkplatz –Dein Wohlfühlen-Daheim!

Wohnung zum Kauf in 6850 Dornbirn - Kaufpreis: 240.000 € / Objektnummer: 5360/759
Ausstattung: Boden Bad Kabel/Satelliten-TV Tiefgarage Parkplatz Außenparkplatz Fahrradraum Loggia
Gang
Außen
Plan

Preisinformationen

Kaufpreis:
240.000 €
Kaufpreis/m²
4.736,53 €
Betriebskosten netto:
121,90 € / Monat
Parkplatz Kosten brutto:
17,00 €
Vermittlungsprovision:
Ja
Provision:
3% des Kaufpreises zzgl. 20% USt.

Fakten

Objektnummer:
5360/759
Objekttyp:
Wohnung
Loggia:
1
Keller Fläche:
4,5 m²
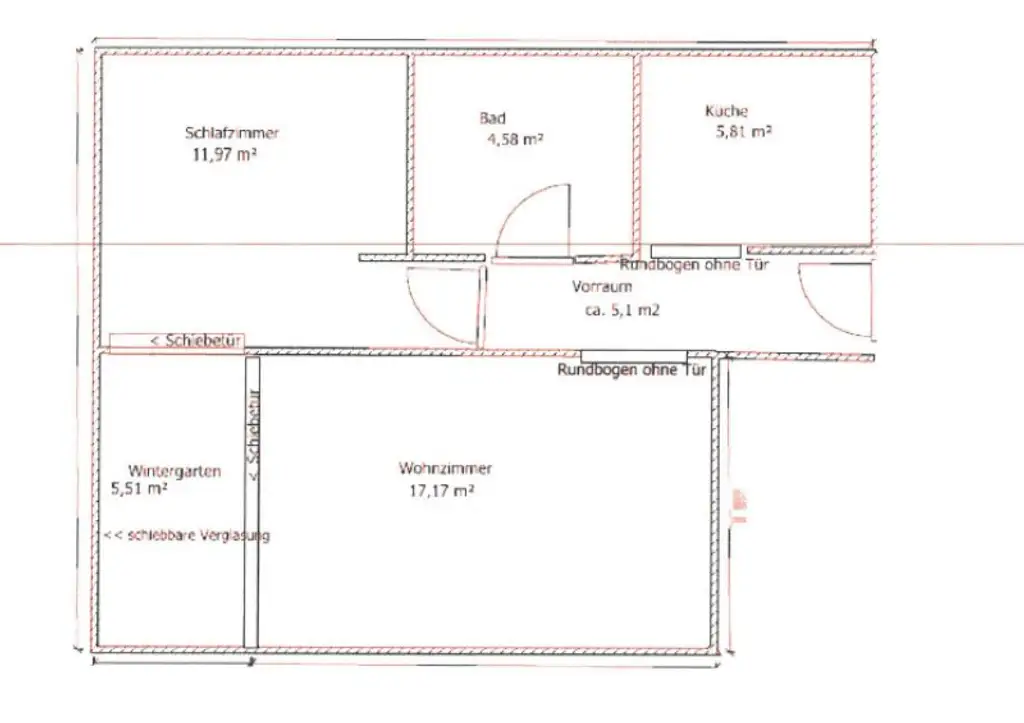
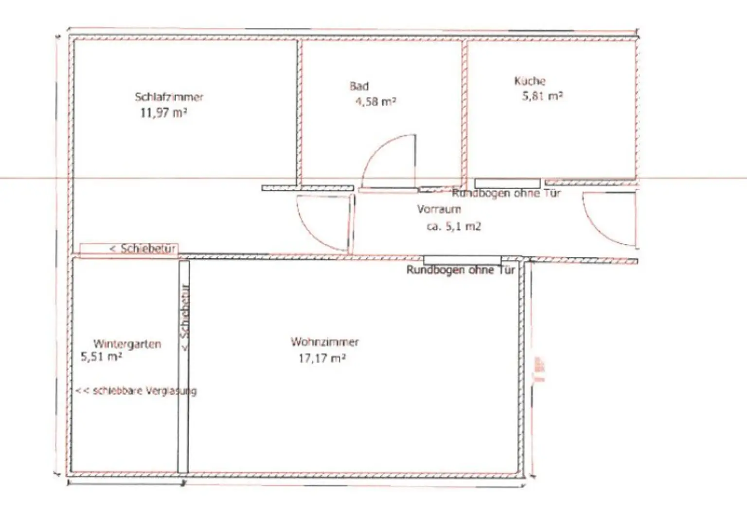
Wohnfläche:
50,67 m²
Loggia Fläche:
5,51 m²
Zimmer:
2
Badezimmer:
1
Toilette:
1
Stockwerk:
1
Baujahr:
1990
Letzte Sanierung:
2021
Zustand:
Teilsaniert
Verfügbarkeit:
Verfügbar

Beschreibung

WILLKOMMEN IN IHREM NEUEN ZUHAUSE IN DORNBIRN, VORARLBERG

Diese charmante, sanierte Wohnung mit einer Wohnfläche von 50,67 m² vereint modernen Wohnkomfort mit dem besonderen Flair des Vorarlberger Lebensstils. Für € 240.000,– haben Sie die Möglichkeit, sich Ihr eigenes Stück Lebensqualität in einer der begehrtesten Städte des Landes zu sichern.

Die Wohnung überzeugt durch eine durchdachte Raumaufteilung und den Einsatz hochwertiger Materialien. Der einladende Wohnbereich ist mit edlem Parkettboden ausgestattet, der für eine warme und behagliche Atmosphäre sorgt.

Ein besonderes Highlight ist die großzügige Loggia, die Ihnen einen traumhaften Ausblick auf die Berge und die umliegende Natur bietet. Hier genießen Sie entspannte Stunden in der Abendsonne – ideal, um den Tag bei einem Glas Wein ausklingen zu lassen.

Die Lage überzeugt auf den ersten Blick:
DIe Lage in Dornbirn besticht durch ihre Vielfältigkeit. Ausgehend von Ihrer ruhigen Wohngegend, erreichen Sie Einkaufsmöglichkeiten, Schulen, Kindergärten und die Bushaltestellen in wenigen Gehminuten. 

Diese Immobilie ist sowohl als Eigentumswohnung für  Singles oder Paare als auch als attraktives Anlageobjekt bestens geeignet.

Extras

* Beschattung (Markise elektrisch sowie Innenjalousien bei der Verglasung) komplett erneuert (2019)
* Schlafzimmer 2018 komplett Saniert
* Boiler 2019 erneuert
* Armaturen im Badezimmer Badewanne und Waschbecken 2024 getauscht
* Fußbodenheizung im Bad
* Gästeparkplätze teils sogar überdacht

2021 wurde eine umfassende Sanierung gemacht (Attika, Terrassendichtungenm Verkleidungen, Markisen etc.) Hier wurde der ganze Reperaturfonds mit Ende 2022 aufgebraucht

 

Nutzen Sie diese Gelegenheit und vereinbaren Sie noch heute einen Besichtigungstermin. Lassen Sie sich von der Lage, dem Ausblick und dem besonderen Charme dieser Wohnung begeistern – und starten Sie Ihr neues Kapitel in Dornbirn!

Der Vermittler ist als Doppelmakler tätig.

Infrastruktur / Entfernungen

Gesundheit
Arzt 1.500m
Apotheke 500m
Krankenhaus 2.500m
Klinik 9.000m

Kinder & Schulen
Schule 500m
Kindergarten 500m
Universität 2.500m
Höhere Schule 10.000m

Nahversorgung
Supermarkt 500m
Bäckerei 500m
Einkaufszentrum 2.000m

Sonstige
Bank 500m
Geldautomat 500m
Post 500m
Polizei 2.000m

Verkehr
Bus 500m
Bahnhof 1.000m
Autobahnanschluss 3.000m
Flughafen 6.500m

Angaben Entfernung Luftlinie / Quelle: OpenStreetMap
Beschreibung weiterlesen

Lage und Verkehrsanbindung

Die Wohnung in 6850 Dornbirn überzeugt durch ihre zentrale Lage und hervorragende Anbindung. In unmittelbarer Nähe finden Sie alles für den täglichen Bedarf: eine Apotheke, Schule und Kindergarten sind nur einen kurzen Fußweg entfernt. Supermarkt, Bäckerei und Bank sorgen für zusätzlichen Komfort. Auch öffentliche Verkehrsmittel wie Bus und Bahnhof sind bequem erreichbar.

Energieeffizienz

HWB:
103 kWh/(m²*a)
HWB Klasse:
D
fGEE:
1,77
fGEE Klasse:
D
Energieausweisart:
Energiebedarfs-ausweis
Gültig bis:
06.06.2034

Grundriss

Lageplan

6850 Dornbirn | Dornbirn

Lade...
Michael Helm

Michael Helm
Immobilien-Investment

Breuss & Partner GmbH

Anrufen
Lade...

Fotomix

Bild 1 Bild 2 Bild 3 Bild 4 Bild 5 Bild 6 Bild 7 Bild 8 Bild 9 Bild 10 Gang Bild 12 Außen Bild 14