NEU - Charmante Wohnung mit Garten am Kirchplatz 7 in Oberndorf bei Salzburg

Wohnung zum Kauf in 5110 Oberndorf bei Salzburg / Objektnummer: oO-2025-00279
Ausstattung: Boden Abstellraum Fußbodenheizung Garten
Wohnen Kochen Essen
Terrasse Garten
Edelrohbau
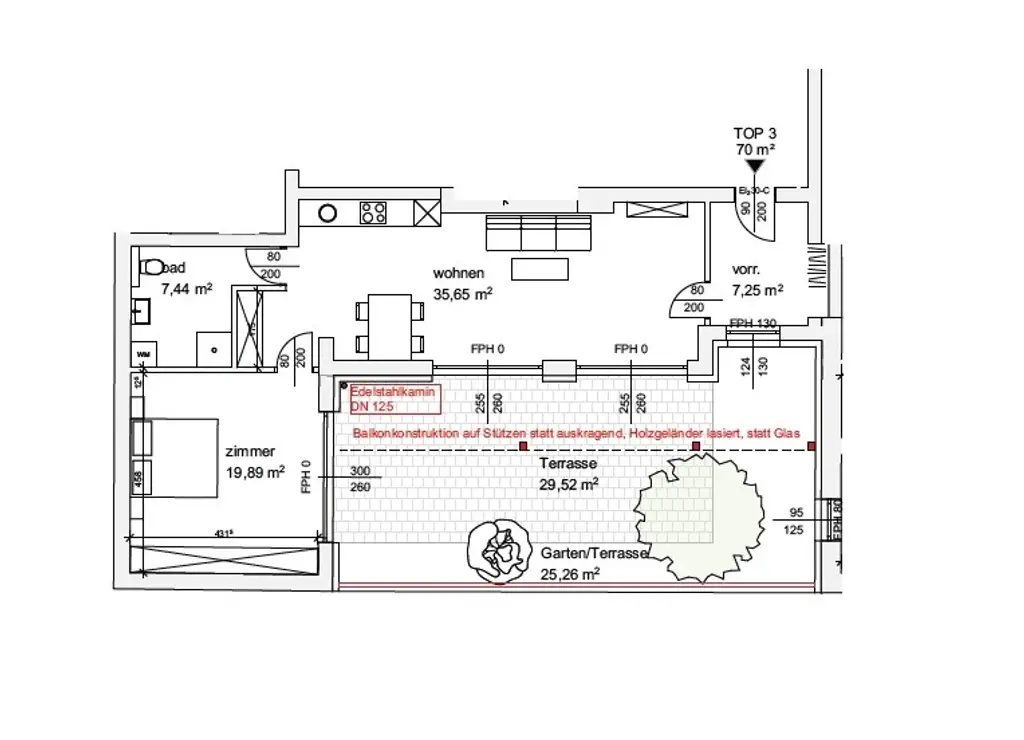
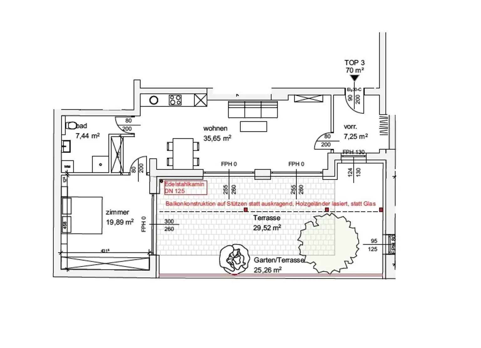
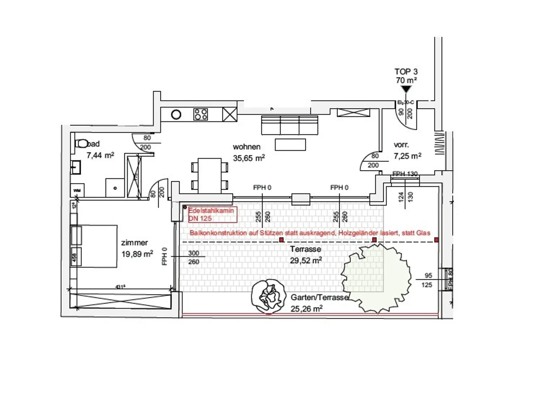
TOP 3 Grundriss

Preisinformationen

Provision:
3 % zzgl. 20% USt.

Fakten

Objektnummer:
oO-2025-00279
Objekttyp:
Wohnung
Wohnfläche:
70 m²
Gartenfläche:
25,2 m²
Zimmer:
2
Schlafzimmer:
1
Badezimmer:
1
Stockwerk:
4
Baujahr:
1975
Letzte Sanierung:
2025
Zustand:
Teilsaniert
Verfügbarkeit:
Verfügbar

Beschreibung

Diese charmante 2-Zimmer-Wohnung im Erdgeschoss bietet auf rund 70 Quadratmetern Wohnfläche ein komfortables und modernes Wohnambiente in Edelrohbau-Qualität, ideal für Paare, Singles oder kleine Familien, die ruhiges Wohnen in Stadtnähe schätzen. Das großzügige Wohnzimmer und das gemütliche Schlafzimmer schaffen ein angenehmes Raumgefühl.

Zur Wohnung gehört eine private Terrasse zur alleinigen Nutzung, die perfekt ist, um entspannt draußen zu sitzen, den Tag mit einem Frühstück im Freien zu beginnen oder den Feierabend gemütlich ausklingen zu lassen. Das Badezimmer mit Dusche und WC ist in der Planung enthalten.

Die Wohnung wird im Edelrohbau angeboten, was Ihnen die Möglichkeit gibt, den Ausbau und die Gestaltung ganz nach Ihren persönlichen Vorstellungen vorzunehmen. Alternativ kann der Verkäufer den Ausbau auch für Sie übernehmen – ganz nach Absprache. Ein praktischer Abstellraum beziehungsweise Kellerbereich bietet zusätzlichen Stauraum. Öffentliche Parkplätze befinden sich in unmittelbarer Nähe und sorgen für komfortables Parken.
Beschreibung weiterlesen

Lage und Verkehrsanbindung

Das Objekt direkt am Kirchplatz bietet eine zentrale und gut erreichbare Lage. In unmittelbarer Nähe befinden sich diverse Geschäfte und Dienstleister. Die Nähe zu Salzburg- sowohl mit dem Auto, als auch mit naheliegenden öffentlichen Verkehrsmitteln erreichbar (Lokalbahn, Bus) -macht diesen Standort besonders attraktiv

Energieeffizienz

HWB:
45 kWh/(m²*a)
HWB Klasse:
B
fGEE:
1,01
fGEE Klasse:
C
Gebäudeart:
listing.status.epcBuildingType_wohn
Ausstellung:
ab dem 1.5.2014
Gültig bis:
13.12.2025

Grundriss

Lageplan

5110 Oberndorf bei Salzburg | Salzburg-Umgebung

Lade...
Nina Krämer

Nina Krämer

Lade...

Fotomix

Wohnen Kochen Essen Terrasse Garten Edelrohbau