NEU - Clevere 3 Zimmer Wohnung mit kompakter Fläche und maximalem Nutzen! Erstbezug

Wohnung zum Kauf in 2301 Groß-Enzersdorf - Kaufpreis: 419.000 € / Objektnummer: 296762
Ausstattung: Barrierefrei Boden Fahrstuhl Wohnküche / offene Küche Bad Gäste-WC Kabel/Satelliten-TV Tiefgarage Parkplatz Fahrradraum Abstellraum Fußbodenheizung Balkon WG geeignet

Preisinformationen

Kaufpreis:
419.000 €
Kaufpreis/m²
5.270,44 €
Vermittlungsprovision:
Ja
Provision:
3% des Kaufpreises zzgl. 20% USt.

Fakten

Objektnummer:
296762
Objekttyp:
Wohnung
Balkon:
1
Balkonfläche:
4,03 m²
Wohnfläche:
77,48 m²
Nutzfläche:
79,5 m²
Zimmer:
3
Badezimmer:
1
Toilette:
1
Stockwerk:
1
Baujahr:
2026
Neubau:
Ja
Zustand:
Erstbezug
Verfügbarkeit:
Verfügbar

Beschreibung

Ankommen, durchatmen, zuhause sein.

Nur wenige Minuten von Wien entfernt entsteht in Groß-Enzersdorf ein Wohnprojekt, das genau den Zeitgeist trifft: mehr Ruhe, mehr Freiraum und gleichzeitig volle Anbindung an die Stadt.

Hier beginnt der Tag mit Blick ins Grüne und endet entspannt auf der eigenen Terrasse oder dem Balkon. Die Nähe zur Lobau, weitläufige Naturflächen und ein angenehm gewachsenes Umfeld schaffen ein Wohngefühl, das in dieser Form selten geworden ist.

Die Wohnungen selbst sind so geplant, wie man heute leben möchte: offen, hell und effizient. 2 bis 4 Zimmer, Wohnflächen von ca. 45 m² bis 114 m² und durchdachte Grundrisse bieten Raum für unterschiedlichste Lebenssituationen – vom kompakten Investment bis zum Familienzuhause. Jede Einheit verfügt über eine eigene Freifläche und erweitert den Wohnraum ins Freie.

Die Ausstattung folgt einem klaren Anspruch: langlebig, hochwertig und komfortabel. Eichenparkett, moderne Fliesen, dreifach verglaste Fenster, elektrische Beschattung und Fußbodenheizung über Fernwärme sorgen für ein angenehmes Wohnklima. In den Dachgeschosswohnungen bietet eine Klimaanlage zusätzlichen Komfort. Lift, Videogegensprechanlage sowie vorbereitete E-Ladeinfrastruktur runden das Gesamtbild ab. Die Kombination aus Qualität, Funktionalität und zeitlosem Design sorgt für ein angenehmes Wohnklima und langfristige Wertbeständigkeit.

Auch aus Investorensicht überzeugt das Projekt: Die Kombination aus Stadtnähe, Grünlage und funktionalen Grundrissen sorgt für nachhaltige Nachfrage und sehr gute Vermietbarkeit.

Kurz gesagt: ein Projekt, das nicht nur heute passt, sondern auch morgen noch Sinn macht.

 

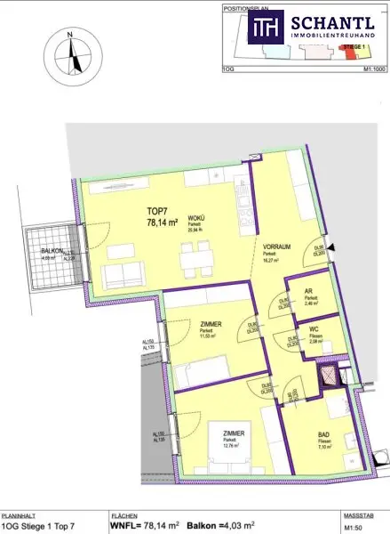
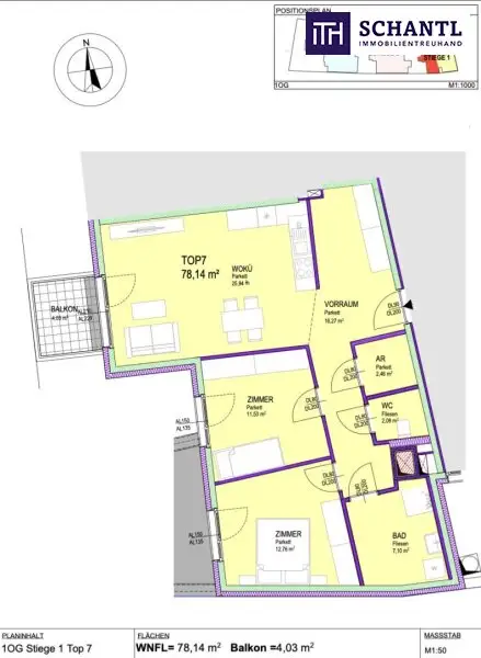
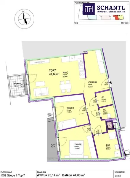
Wohnung Top 7 - Stiege 1

3 Zimmer Wohnung mit Balkon im Innenhof. Westliche Ausrichtung!

Diese attraktive 3-Zimmer-Wohnung überzeugt mit einer effizienten Raumplanung und einem angenehmen Wohngefühl. Ruhig gelegen und optimal geschnitten, bietet sie den idealen Rückzugsort für Paare, kleine Familien oder anspruchsvolle Singles.

Auf rund 77,5 m² Wohnfläche erwartet Sie ein großzügiger Wohn- und Essbereich mit ca. 26 m², der als zentraler Lebensmittelpunkt dient. Große Fensterflächen sorgen für viel Tageslicht und schaffen eine freundliche, offene Atmosphäre. Vom Wohnbereich aus gelangen Sie auf den ca. 4 m² großen Balkon – perfekt für entspannte Stunden im Freien.

Die Wohnung verfügt über zwei gut geschnittene Zimmer mit je ca. 11,5 und 13 m², die sich ideal als Schlafzimmer, Kinderzimmer oder Homeoffice nutzen lassen. Ein praktischer Abstellraum bietet zusätzlichen Stauraum und erhöht den Wohnkomfort im Alltag.

Das Badezimmer ist modern ausgestattet und verfügt über eine Dusche sowie einen Anschluss für die Waschmaschine. Ergänzend steht ein separates WC zur Verfügung.

Eine ideale Wohnung für alle, die kompaktes Wohnen mit durchdachter Raumaufteilung und hoher Lebensqualität kombinieren möchten.

Wohnfläche: ca. 77,48 m² + Balkon: ca. 4,03 m² + Kellerabteil 

Kaufpreis Endverbraucher: € 419.000,-

KP Garage (optional): € 17.000,-

Kalkulierte Betriebskosten: € 2,-/m² zzgl. Ust. 

Provision: 3% zzgl. 20% Ust.

 

Vereinbaren Sie heute noch einen Termin - wir beraten Sie gerne und zeigen Ihnen alle verfügbaren Einheiten!

www.schantl-ith.at

Bei konkretem Interesse senden wir Ihnen sehr gerne weiterführende Dokumente zu, wie:

o Grundbuchauszug

o Wohnungseigentumsvertrag

o Nutzwertgutachten

o Eigentümerversammlungsprotokoll (Falls vorhanden) etc...

 

Unser Service für Sie: Wenn Sie sich für diese Immobilie entschieden haben, begleiten wir Sie gerne vom Kaufanbot weg inkl. Klärung von Sonderwünschen und der Vertragsunterzeichnung über die Wohnungsübergabe bis hin zu diversen Ummeldungen wie Strom und Gas. Entsprechende Formulare oder auch Meldezettel stellen wir Ihnen sehr gerne zur Verfügung.

Gerne unterstützen wir Sie auch bei der Finanzierung Ihres Traumobjekts und finden mit unseren langjährigen Partnern die besten Konditionen für Sie.

www.schantl-ith.at

Wir weisen darauf hin, dass zwischen dem Vermittler und dem zu vermittelnden Dritten ein familiäres oder wirtschaftliches Naheverhältnis besteht.

Der Vermittler ist als Doppelmakler tätig.

Infrastruktur / Entfernungen

Gesundheit
Arzt <500m
Apotheke <250m
Klinik <4.500m
Krankenhaus <6.750m

Kinder & Schulen
Schule <500m
Kindergarten <500m
Universität <1.000m
Höhere Schule <4.000m

Nahversorgung
Supermarkt <500m
Bäckerei <500m
Einkaufszentrum <500m

Sonstige
Bank <250m
Geldautomat <500m
Post <250m
Polizei <500m

Verkehr
Bus <250m
U-Bahn <4.000m
Straßenbahn <5.000m
Bahnhof <4.000m
Autobahnanschluss <7.250m

Angaben Entfernung Luftlinie / Quelle: OpenStreetMap
Beschreibung weiterlesen

Lage und Verkehrsanbindung

Alles da. Alles nah. Alles entspannt.
Nur wenige Minuten entfernt befindet sich mit dem Marchfeld Center das zentrale Einkaufsziel der Umgebung – mit rund 15 Shops von BILLA Plus über Hofer und dm bis hin zu Mode, Drogerie und mehr. Praktisch: 500 Gratis-Parkplätze und eine direkte Anbindung per City-Bus.
Auch die öffentliche Verbindung nach Wien ist unkompliziert und schnell: Die Buslinie 550 bringt Sie direkt zur U2 Aspernstraße, während die Linie 26A Richtung U1 Kagran führt – perfekt für alle, die flexibel zwischen Stadt und Ruhe pendeln möchten.
Für Familien besonders attraktiv: Schulen, Kindergärten und Betreuungseinrichtungen sind bequem fußläufig erreichbar. Ebenso finden sich Ärzte, ein Kinderarzt sowie ein Ärztezentrum direkt im Ort – ergänzt durch eine Apotheke in unmittelbarer Nähe.
Kurz gesagt: Eine Lage, die den Alltag einfach macht.

Marchfeld Center

Energieeffizienz

HWB:
36,78 kWh/(m²*a)
HWB Klasse:
B
fGEE:
0,81
fGEE Klasse:
A
Energieausweisart:
Energiebedarfs-ausweis
Gültig bis:
29.03.2023

Grundriss

Lageplan

2301 Groß-Enzersdorf | Wien 22., Donaustadt

Lade...
Mark Prettenthaler

Mark Prettenthaler
Projektmanagement und Immobilienvermittlung

Schantl ITH Immobilientreuhand GmbH

Lade...

Fotomix

Bild 1 Bild 2 Bild 3 Bild 4 Bild 5 Bild 6 Bild 7 Bild 8 Bild 9 Bild 10 Bild 11 Bild 12