NEU - DACHGESCHOSS, INNSTRASSE, sonnige 76 m2 Neubau, 2 Zimmer, Wohnküche, Wannenbad, Parketten, WG-geeignet

Wohnung zur Miete in 1200 Wien - Gesamtmiete: 1.370,38 € / Objektnummer: 2342
Ausstattung: Boden Fahrstuhl Wohnküche / offene Küche Bad Kabel/Satelliten-TV Fahrradraum Zentralheizung WG geeignet

Preisinformationen

Gesamtmiete:
1.370,38 € / Monat
Betriebskosten netto:
197,63 € / Monat
Umsatzsteuer:
124,58 €
Kaution:
4.120,00 €
Provision:
Gemäß Erstauftraggeberprinzip bezahlt der Abgeber die Provision.

Fakten

Objektnummer:
2342
Objekttyp:
Wohnung
Nutzfläche:
76,14 m²
Zimmer:
3
Badezimmer:
1
Toilette:
1
Neubau:
Ja
Verfügbarkeit:
Verfügbar

Beschreibung

IN DER INNSTRASSE GELANGT DIESE 76,14 M2 NEUBAUWOHNUNG IM DACHGESCHOSS ZUR BEFRISTETEN VERMIETUNG

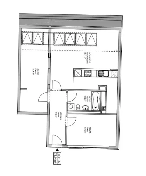
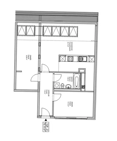
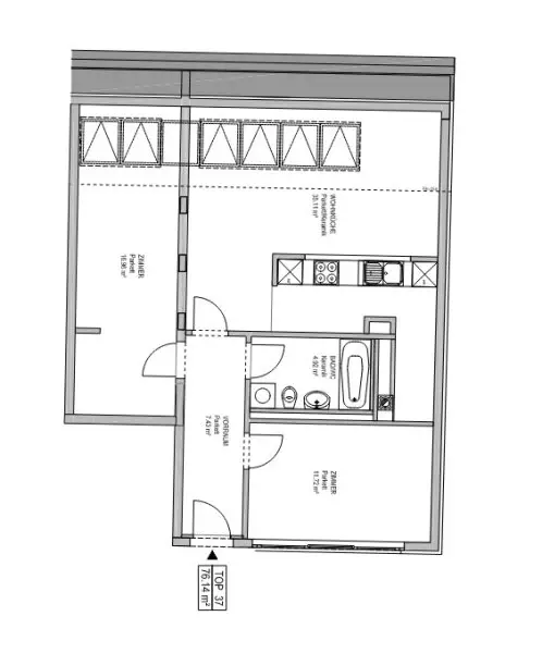
VORZIMMER, WOHNRAUM MIT OFFENER KÜCHE, 2 ZIMMER, BADEZIMMER MIT WC, UND KELLERABTEIL

AUSSTATTUNG:

+ KÜCHE MIT EINBAUGERÄTE
+ BADEZIMMER MIT BADEWANNE, WASCHTISCH, WC UND WASCHMASCHINENANSCHLUSS
+ PARKETTBÖDEN, FLIESEN IN DEN NASSRÄUMEN
+ TELEKABELFERNSEHANSCHLUSS, GEGENSPRECHANLAGE
+ FERNWÄRMEHEIZUNG
+ KELLERABTEIL
+ LIFT, FAHRRAD-/KINDERWAGENABSTELLRAUM
+ TERRASSE ZUR ALLGEMEINNUTZUNG SOWIE GEMEINSCHAFTSRAUM MIT BAD UND WC
+ HWB 37,40 KWH/M2A

LAGE

INNSTRASSE MIT BESTER INFRASTRUKTUR DES 20. BEZIRKS (VORGARTENSTRASSE, TRAISENGASSE, HANDELSKAI, DRESDNER STRASSE, DONAUINSEL, MILLENIUM CITY, LORENZ-BÖHLER UNFALLKRANKENHAUS, ENGERTHGASSE, AUGARTEN) SOWIE GUTEN VERKEHRSANBINDUNGEN WIE DIE U1-STATION VORGARTENSTRASSE, U6-STATION DRESDNER STRASSE, S-BAHN-STATION TRAISENGASSE MIT S1, S2, S3, S4, S7 SOWIE DIE LINIEN 5A, 11A, 37A UND O, 2, 5, 12 SIND IN REICHWEITE. WEITERS ERLANGEN SIE VIA A22 DOANUUFERAUTOBAHN DIE ANBINDUNGEN AN DIE AUTOBAHNEN A21, A4 SOWIE A2 IN KÜRZESTER ZEIT. NAHERHOLUNGSGEBIETE, WIE DER NAHEGELEGENE AUGARTEN, DER DONAUKANAL, DIE DONAUINSEL ODER DER LEICHT ERREICHBARE DONAUPARK SIND GUT UND SCHNELL ZU ERREICHEN.

SONSTIGES

GESAMTMIETE: € 1.370,38 INKLUSIVE BETRIEBSKOSTEN, AUFZUG, 10 % MWST.
FERNWÄRME UND STROM WERDEN VOM ANBIETER VORGESCHRIEBEN.

KAUTION: € 4.120,00 PER ÜBERWEISUNG
GEBÜHR FÜR DIE ERRICHTUNG UND DURCHFÜHRUNG DES MIETVERTRAGS: € 349,00 INKL. MWST. (HV IMV GMBH)
AUF 5 JAHRE BEFRISTETE HAUPTMIETE, ABLÖSEFREI, SOFORTBEZUG MÖGLICH!
1 JAHR KÜNDIUNGSVERZICHT, 3 MONATE KÜNDIGUNGSFRIST

ANBINDUNG ÖFFENTLICHER VERKEHR

U1-STATION VORGARTENSTRASSE, U6-STATION DRESDNER STRASSE, S-BAHN-STATION TRAISENGASSE MIT S1, S2, S3, S4, S7 SOWIE DIE LINIEN 5A, 11A, 37A UND O, 2, 5, 12 SIND IN REICHWEITE

ANSPRECHPARTNER: ALEXANDER ROS
MOB.-TEL. +43-664-466 52 02
E-MAIL: ALEXANDER.ROS@ROS-REAL.AT 

Der Immobilienmakler erklärt, dass er – entgegen dem in der Immobilienwirtschaft üblichen Geschäftsgebrauch des Doppelmaklers – einseitig nur für den Vermieter tätig ist.

Infrastruktur / Entfernungen

Gesundheit
Arzt <250m
Apotheke <500m
Klinik <750m
Krankenhaus <750m

Kinder & Schulen
Schule <250m
Kindergarten <250m
Universität <1.250m
Höhere Schule <1.750m

Nahversorgung
Supermarkt <250m
Bäckerei <500m
Einkaufszentrum <1.000m

Sonstige
Geldautomat <500m
Bank <500m
Post <500m
Polizei <750m

Verkehr
Bus <250m
U-Bahn <1.000m
Straßenbahn <250m
Bahnhof <750m
Autobahnanschluss <1.250m

Angaben Entfernung Luftlinie / Quelle: OpenStreetMap
Beschreibung weiterlesen

Lage und Verkehrsanbindung

INNSTRASSE mit bester Infrastruktur des 20. Bezirks (Vorgartenstraße, Traisengasse, Handelskai, Dresdner Straße, Donauinsel, Millenium City, Lorenz-Böhler Unfallkrankenhaus, Engerthgasse, Augarten) sowie guten Verkehrsanbindungen wie die U1-Station Vorgartenstraße, U6-Station Dresdner Straße, S-Bahn-Station Traisengasse mit S1, S2, S3, S4, S7 sowie die Linien 5A, 11A, 37A und O, 2, 5, 12 sind in Reichweite. Weiters erlangen Sie via A22 Doanuuferautobahn die Anbindungen an die Autobahnen A21, A4 sowie A2 in kürzester Zeit. Naherholungsgebiete, wie der nahegelegene Augarten, der Donaukanal, die Donauinsel oder der leicht erreichbare Donaupark sind gut und schnell zu erreichen.

Vorgartenstraße, Traisengasse, Handelskai, Dresdner Straße, Donauinsel, Millenium City, Lorenz-Böhler Unfallkrankenhaus, Engerthgasse, Augarten

Energieeffizienz

HWB:
37,4 kWh/(m²*a)
HWB Klasse:
B
fGEE:
1,06
fGEE Klasse:
C
Energieausweisart:
Energiebedarfs-ausweis

Grundriss

Lageplan

1200 Wien | Wien 20., Brigittenau

Lade...
Martin Ros

Martin Ros
Geschäftsführer

ROS REALITÄTEN OG

Lade...

Fotomix

Bild 1 Bild 2 Bild 3 Bild 4 Bild 5 Bild 6 Bild 7 Bild 8 Bild 9 Bild 10 Bild 11 Bild 12 Bild 13 Bild 14 Bild 15 Bild 16 Bild 17 Bild 18 Bild 19 Bild 20 Bild 21 Bild 22 Bild 23 Bild 24 Bild 25 Bild 26 Bild 27