NEU - Dachgeschoss - zentral & modern (Angerweg 2 - Top 9)

Wohnung zum Kauf in 4694 Ohlsdorf - Kaufpreis: 543.320 € / Objektnummer: 1068/4964
Ausstattung: Fahrstuhl Balkon
Ausblick
zentral
Visualisierung Innenansicht
Visualisierung Innenansicht
Visualisierung Badezimmer Top 9
Visualisierung Badezimmer Top 9
Visualisierung Badezimmer Top 9
Visualisierung Aussenansicht
Visualisierung Aussenansicht
Visualisierung Aussenansicht
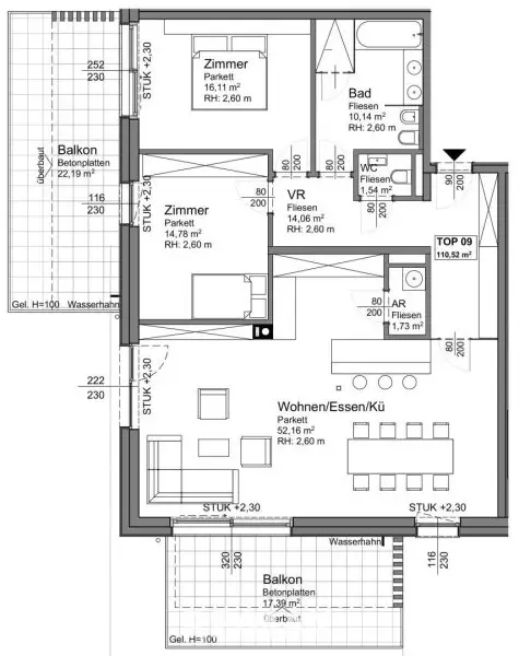
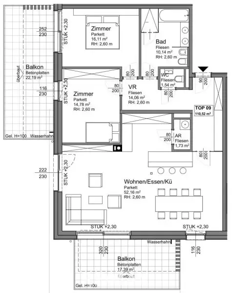
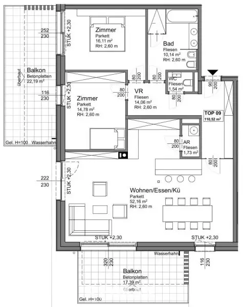
Grundrissplan Top 9
Grundriss Top 9

Preisinformationen

Kaufpreis:
543.320 €

Fakten

Objektnummer:
1068/4964
Objekttyp:
Wohnung
Balkon:
2
Balkonfläche:
39,58 m²
Keller Fläche:
7,23 m²
Wohnfläche:
110,52 m²
Zimmer:
3
Badezimmer:
1
Toilette:
1
Stockwerk:
1
Baujahr:
2025
Zustand:
Erstbezug
Verfügbarkeit:
Verfügbar

Beschreibung

Zentral. Zeitgemäß. Zuhause. – 13 Neubauwohnungen in Ohlsdorf, Angerweg 2

Wer das Zentrale liebt und auf moderne Wohnqualität nicht verzichten möchte, findet am Angerweg in Ohlsdorf sein neues Zuhause. Nur wenige Schritte vom Ortszentrum entfernt entstehen 13 hochwertige Eigentumswohnungen mit durchdachten Grundrissen und zeitgemäßer Ausstattung – ideal für alle, die urbane Nähe mit ruhiger Wohnlage verbinden möchten.

Was Sie erwartet:
• Zentrale Lage: In wenigen Gehminuten mitten im Ortskern – Einkauf, Schule, Nahversorger direkt ums Eck
• Moderne Ausstattung: Edle Parkettböden, stilvolle Fliesen, Fußbodenheizung & energieeffiziente Luftwärmepumpe
• Wohnkomfort für jeden Anspruch: Von 42 m² bis 110 m² – ideal für Singles, Paare oder Familien
• Draußen zuhause: Großzügige Terrassen oder Eigengärten für entspannte Stunden im Grünen
• Komfortabel & barrierefrei: Lift in alle Etagen, Tiefgarage für stressfreies Parken
• Gestaltungsfreiraum: Jetzt noch mitplanen und Ihre Wünsche einbringen

Aktueller Verkaufsstand:
✔ Bereits 5 Wohnungen vergeben – nur noch 8 verfügbar!
✔ Baustart bei 50 % Verkaufsquote – jetzt vor Baustart sichern und noch mitgestalten!

Lebenswert wohnen – mitten in Ohlsdorf

Wohnen Sie naturnah und dennoch bestens angebunden: Die Autobahn erreichen Sie in wenigen Minuten, Erholung bieten Traunsee, Traunstein und zahlreiche Freizeitangebote der Region.

Direkt vom Bauträger – provisionsfrei für Käufer

Jetzt informieren und Wohntraum sichern:
📞 Persönlich berät Sie Sabine Wenzel (0676 300 40 62) und Christian Sammer (0650 31 71 003)
🌐 Alle Details unter: www.angerweg-zwei.at

Zuhause ankommen. Im Herzen von Ohlsdorf.

Neubauprojekt Ohlsdorf, Angerweg 2

Top 9 bietet eine großzügige 3-Zimmer-Wohnung im 1. Obergeschoss mit einem großen eleganten Wohnbereich und großzügigen Schlafzimmern. Mit der attraktiven Südwest-Ausrichtung genießen Sie viel Sonne und eine angenehme Atmosphäre. Das Badezimmer ist mit einer Dusche, Badewanne und Doppelwaschbecken ausgestattet, während das WC sowohl im Bad als auch zusätzlich separat vorhanden ist. Zwei Tiefgaragenplätze sind für je 27.000 € optional zu erwerben.

Infrastruktur / Entfernungen

Gesundheit
Arzt <500m
Apotheke <2.500m
Krankenhaus <5.500m
Klinik <3.000m

Kinder & Schulen
Schule <500m
Kindergarten <500m

Nahversorgung
Supermarkt <500m
Bäckerei <500m
Einkaufszentrum <4.500m

Sonstige
Bank <500m
Geldautomat <500m
Post <500m
Polizei <3.000m

Verkehr
Bus <500m
Straßenbahn <4.500m
Bahnhof <4.000m
Autobahnanschluss <4.000m
Flughafen <5.500m

Angaben Entfernung Luftlinie / Quelle: OpenStreetMap
Beschreibung weiterlesen

Lage und Verkehrsanbindung

Angerweg

Energieeffizienz

HWB:
40 kWh/(m²*a)
Energieausweisart:
Energiebedarfs-ausweis

Grundrisse

Lageplan

4694 Ohlsdorf | Gmunden

Lade...
Christian Sammer

Christian Sammer
staatl. geprüfter Immobilientreuhänder - Makler

RE/MAX Traunsee

Lade...

Fotomix

Ausblick zentral Visualisierung Innenansicht Visualisierung Innenansicht Visualisierung Badezimmer Top 9 Visualisierung Badezimmer Top 9 Visualisierung Badezimmer Top 9 Visualisierung Aussenansicht Visualisierung Aussenansicht Visualisierung Aussenansicht