NEU - DachgeschossTRAUM mit atemberaubendem Blick

Wohnung zum Kauf in 1020 Wien - Kaufpreis: 1.422.120 € / Objektnummer: 7235
Ausstattung: Fahrstuhl Wohnküche / offene Küche Bad Klimaanlage Fußbodenheizung Terrasse

Preisinformationen

Kaufpreis:
1.422.120 €
Vermittlungsprovision:
Ja
Provision:
3% des Kaufpreises zzgl. 20% USt.

Fakten

Objektnummer:
7235
Objekttyp:
Wohnung
Terrasse:
2
Wohnfläche:
119 m²
Nutzfläche:
140 m²
Zimmer:
4
Badezimmer:
2
Toilette:
2
Stockwerk:
6
Baujahr:
2026
Neubau:
Ja
Verfügbarkeit:
Verfügbar

Beschreibung

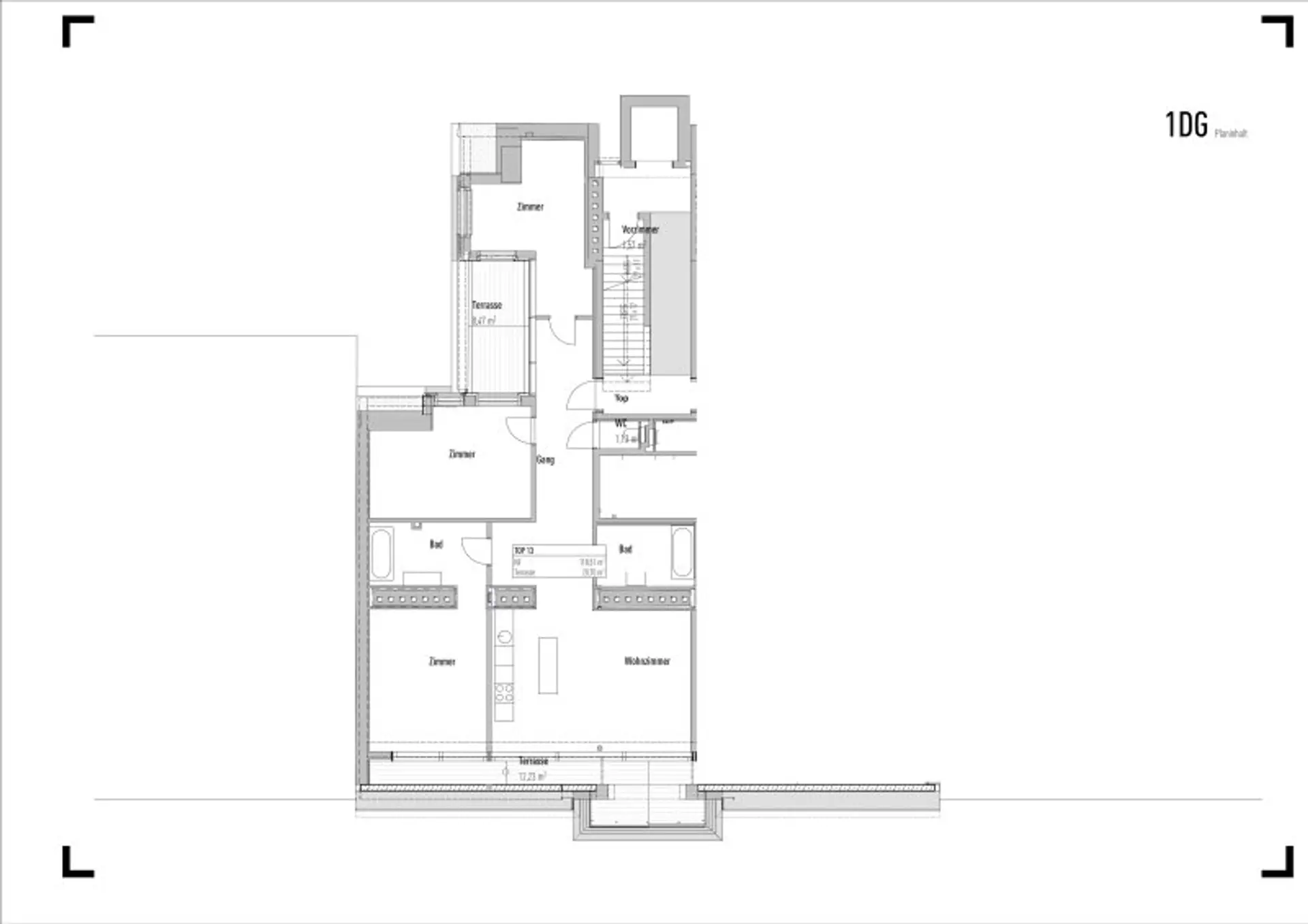
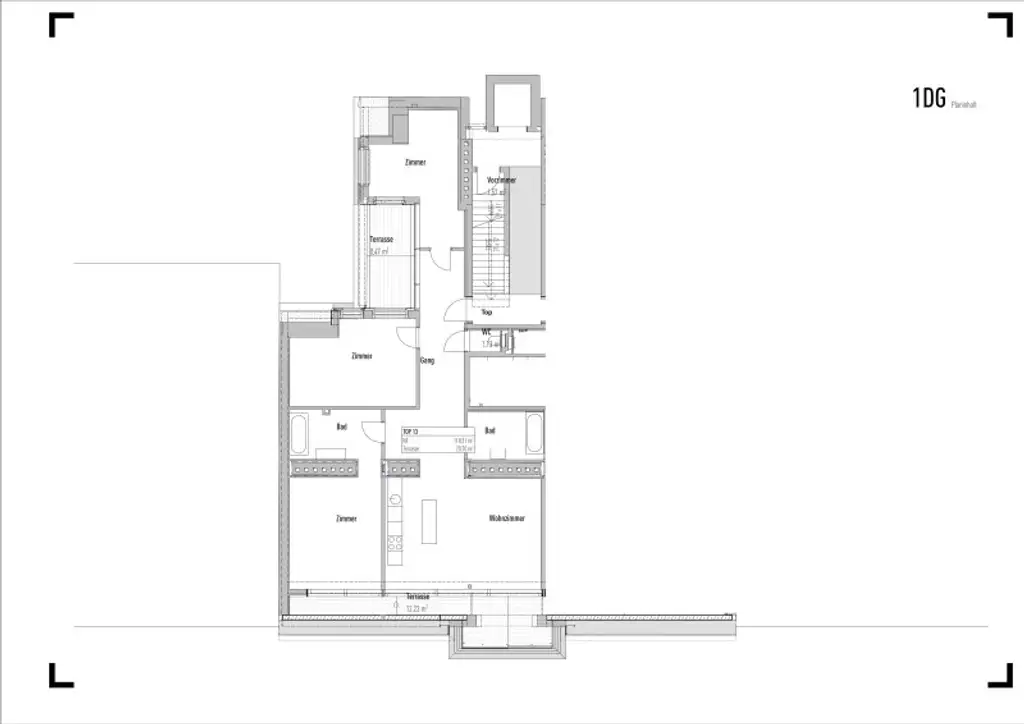
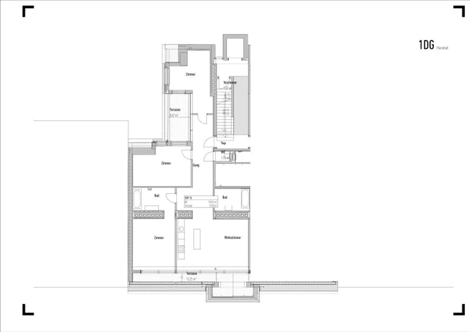
_Eckdaten und Raumaufteilung:_

- Wohnfläche ca. 119 m2

- Terrassenfläche gesamt ca. 20 m2

- Dachgeschossausbau

- Wohnung wird belagsfertig übergeben (schlüsselfertig ebenfalls möglich)

- traumhafter Blick auf die Jesuitenwiese, Arenawiese

- Stahl/Holz/Ziegel Bauweise

- Fertigstellung Ende 2026

- Lift wird eingebaut

- gesamt 3 Wohnungen im DG

- Luftwärmepumpe

- Fußbodenheizung

- Klimaanlage

- Fassade und Stiegenhaus werden nach Abschluss der Arbeiten gestrichen

 

- 3 Schlaf-/Kinder-/Arbeitszimmer

- Wohnküche mit Anschlüssen für Ihre Küche

- 2x Badezimmer 

- Toilette separat

- 2 Terrassen (1x hofseitig und 1x direkt Blick ins Grüne)

- Grundriss kann noch geändert werden

- Ausrichtung Nord/Osten und Süd/Westen

- wunderschönes Haus 

 

 

_Infrastruktur:_

- ruhige Wohnlage mit guter Erreichbarkeit

- Erholungsgebiete in der Nähe Prater, Augarten, Donaukanal

- U3 und U1 sind zu Fuß erreichbar, jedoch nicht in unmittelbarer Nähe

- gute Anbindung zur Autobahn und Flughafen

- Geschäfte des täglichen Bedarfs in der Umgebung 

- Gastronomie finden Sie entlang des Donaukanals

 

 

_Konditionen:_

- Kaufpreis € 1.422.120,00

- Grunderwerbssteuer 3,5 %

- grundbücherliche Eintragung 1,1 %

- Kosten für Anwalt, Notar etc.

- Provision 3 % (von KP) zzgl. 20 % Umsatzsteuer

 

 

WICHTIG: es werden NUR Anfragen mit vollständig ausgefüllten KontaktDaten bearbeitet

Für weitere Fragen stehen wir Ihnen jeder Zeit gerne zur Verfügung. Wir möchten Sie darauf hinweisen, dass die Firma Mirela Kristo Immobilientreuhand GmbH in einem wirtschaftlichen/familiären Naheverhältnis zum Vermieter/Eigentümer steht und gegebenenfalls auch als Doppelmakler tätig ist.

Auf unserer Website finden Sie weitere ImmobilienAngebote – http://www.mirela-kristo.at [http://www.mirela-kristo.at/]

Bei Interesse kontaktieren Sie bitte

 

Frau WÖHNHART-KRISTO

+43 (0) 664 306 79 [tel:43066430679] 79

office@mirela-kristo.at

 

Maklervereinbarung: Wir ersuchen um Verständnis, dass wir bei Anfragen zur Objektadresse, bzw. Besichtigungstermin aufgrund neuer gesetzlicher Bestimmungen Unterlagen erst dann zusenden können, wenn Sie vorab bestätigen, dass Sie unser sofortiges Tätigwerden wünschen und über Ihre Rücktrittsrechte aufgeklärt wurden. Sie bekommen nach Ihrer schriftlichen Anfrage mit vollständiger Angabe des Namens, Anschrift und Telefonnummer ein Email, in dem Sie diese Punkte bestätigen müssen.

Konditionen: Da es sich um ein Maklerangebot handelt, gelten die Bedingungen der Landesinnung für Immobilien- und Vermögenstreuhänder. Ein entsprechendes Informationsblatt wird dem Exposé beigelegt. Nebenkosten/Kauf: Grunderwerbssteuer 3,5 %, Grundbuchseintrag 1,1 %, Maklergebühren:3 % +20 % MwSt.

Nebenkosten/Miete: 2Bruttomonatsmieten bei Wohnimmobilien (Bestellerprinzip), 3 Bruttomonatsmieten bei Gewerbeimmobilien, jeweils + 20 % MwSt.

Haftungsausschluss: Wir weisen darauf hin, dass sämtliche Daten im vorliegenden Angebot sowie die von unserem Büro an Sie weitergegebenen Auskünfte, vom Verkäufer der zu vermittelnden Liegenschaft zur Verfügung gestellt wurden. Ebenso sind Informationen von Dritten (z.B. behördliche Informationen) eingeholt worden, auch für diese können wir unsererseits keinerlei Haftung für deren uneingeschränkte Richtigkeit übernehmen.

 

 

 

 

Infrastruktur / Entfernungen

Gesundheit
Arzt <500m
Apotheke <500m
Klinik <1.000m
Krankenhaus <1.000m

Kinder & Schulen
Schule <500m
Kindergarten <500m
Universität <1.000m
Höhere Schule <1.000m

Nahversorgung
Supermarkt <500m
Bäckerei <1.000m
Einkaufszentrum <1.000m

Sonstige
Geldautomat <500m
Bank <500m
Post <1.000m
Polizei <500m

Verkehr
Bus <500m
U-Bahn <1.000m
Straßenbahn <500m
Bahnhof <1.000m
Autobahnanschluss <1.500m

Angaben Entfernung Luftlinie / Quelle: OpenStreetMap
Beschreibung weiterlesen

Lage und Verkehrsanbindung

Jesuitenwiese
Arenawiese

Jesuitenwiese

Grundriss

Lageplan

1020 Wien | Wien 2., Leopoldstadt

Lade...
Mirela WÖHNHART-KRISTO

Mirela WÖHNHART-KRISTO
Akad. Immobilienberaterin und Liegenschaftsmanagerin, SV-Anwärterin (allgemein beeideter Sachverständiger Österreich)

Mirela Kristo Immobilientreuhand GmbH

Lade...

Fotomix

Bild 1 Bild 2 Bild 3 Bild 4 Bild 5 Bild 6 Bild 7