NEU - Dachgeschoßwohnung nähe Rudolf Sallinger Platz

Wohnung zur Miete in 1050 Wien - Gesamtmiete: 1.579,99 € / Objektnummer: 1649/4752
Ausstattung: Fahrstuhl Zentralheizung

Preisinformationen

Gesamtmiete:
1.579,99 € / Monat
Nettomiete:
1.196,18 € / Monat
Betriebskosten netto:
167,45 € / Monat
Heizkosten netto:
68,63 €
Umsatzsteuer:
147,73 €
Kaution:
4.740,00 €
Provision:
provisionsfrei

Fakten

Objektnummer:
1649/4752
Objekttyp:
Wohnung
Wohnfläche:
74,42 m²
Gesamtfläche:
74,42 m²
Zimmer:
3
Schlafzimmer:
2
Badezimmer:
1
Toilette:
1
Baujahr:
2004
Verfügbarkeit:
Verfügbar

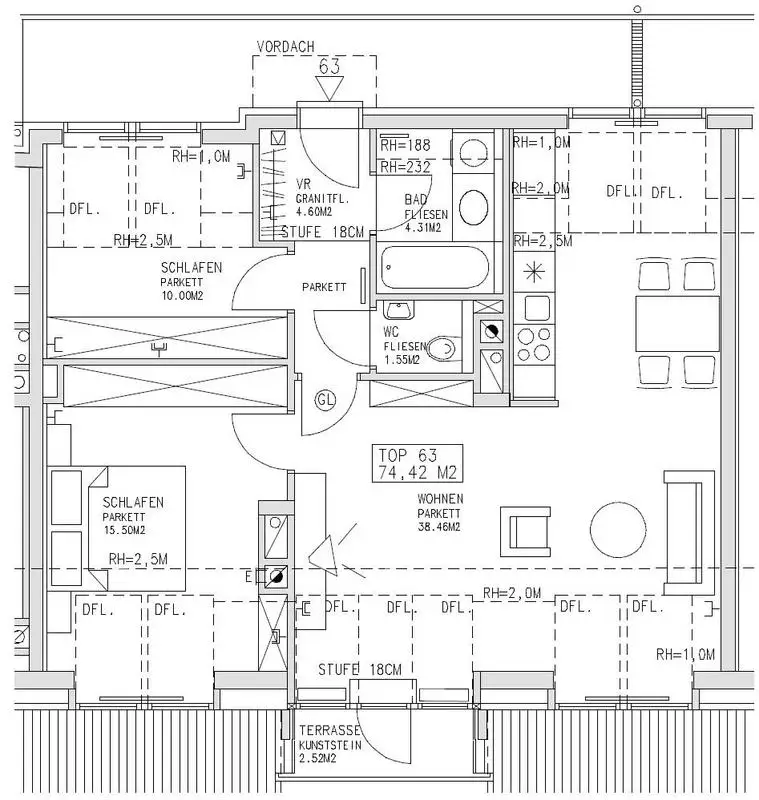
Beschreibung

Dachgeschoß-Wohnung!

In einem gepflegten Neubau in der Siebenbrunnengasse gelangt eine Dachgeschoß-Wohnung zur befristeten Vermietung.

Raumaufteilung:
Vorraum, Küche, 3 Zimmer, Bad, separates WC

Ausstattung:
Einbauküche mit Geräten, Parketten in den Wohnräumen, Nassräume verfliest.

Infrastruktur:
Straßenbahn 1, 62, Badner Bahn, Autobus 12A, 14A, 13A, Gastronomiebetriebe und Einkaufsmöglichkeiten in unmittelbarer Umgebung

Beschreibung weiterlesen

Lage und Verkehrsanbindung

Rudolf Sallinger Park, Siebenbrunnengasse

Energieeffizienz

Endenergiebedarf:
44,7 kWh/(m²*a)
HWB:
44,7 kWh/(m²*a)
HWB Klasse:
B
fGEE:
1,2
fGEE Klasse:
C
Energieausweisart:
Energiebedarfs-ausweis

Grundriss

Martin Mantler MA

Martin Mantler MA

Altenburg Realitäten GmbH & Co KG

Lade...