NEU - Dachgeschoßwohnung nähe Rudolf Sallinger Platz

Wohnung zur Miete in 1050 Wien - Gesamtmiete: 966,01 € / Objektnummer: 1649/4748
Ausstattung: Fahrstuhl Zentralheizung

Preisinformationen

Gesamtmiete:
966,01 € / Monat
Nettomiete:
740,00 € / Monat
Betriebskosten netto:
96,35 € / Monat
Heizkosten netto:
39,49 €
Umsatzsteuer:
90,17 €
Kaution:
2.898,00 €
Provision:
provisionsfrei

Fakten

Objektnummer:
1649/4748
Objekttyp:
Wohnung
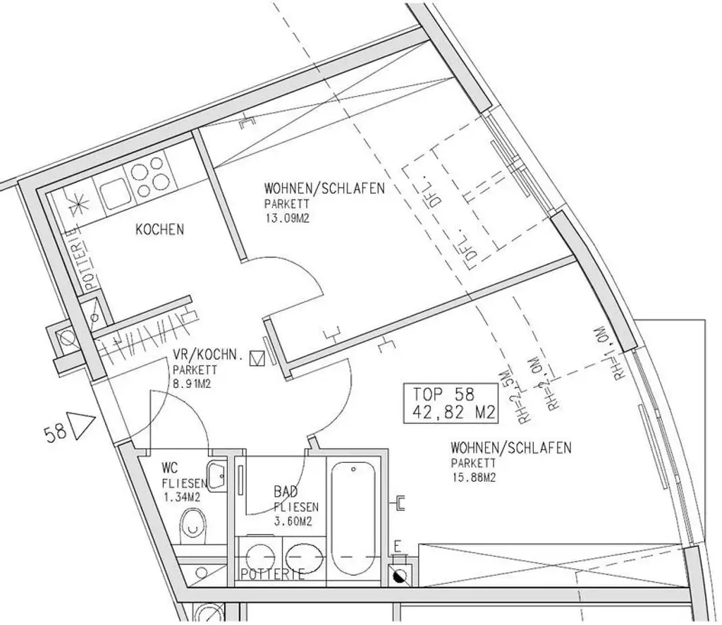
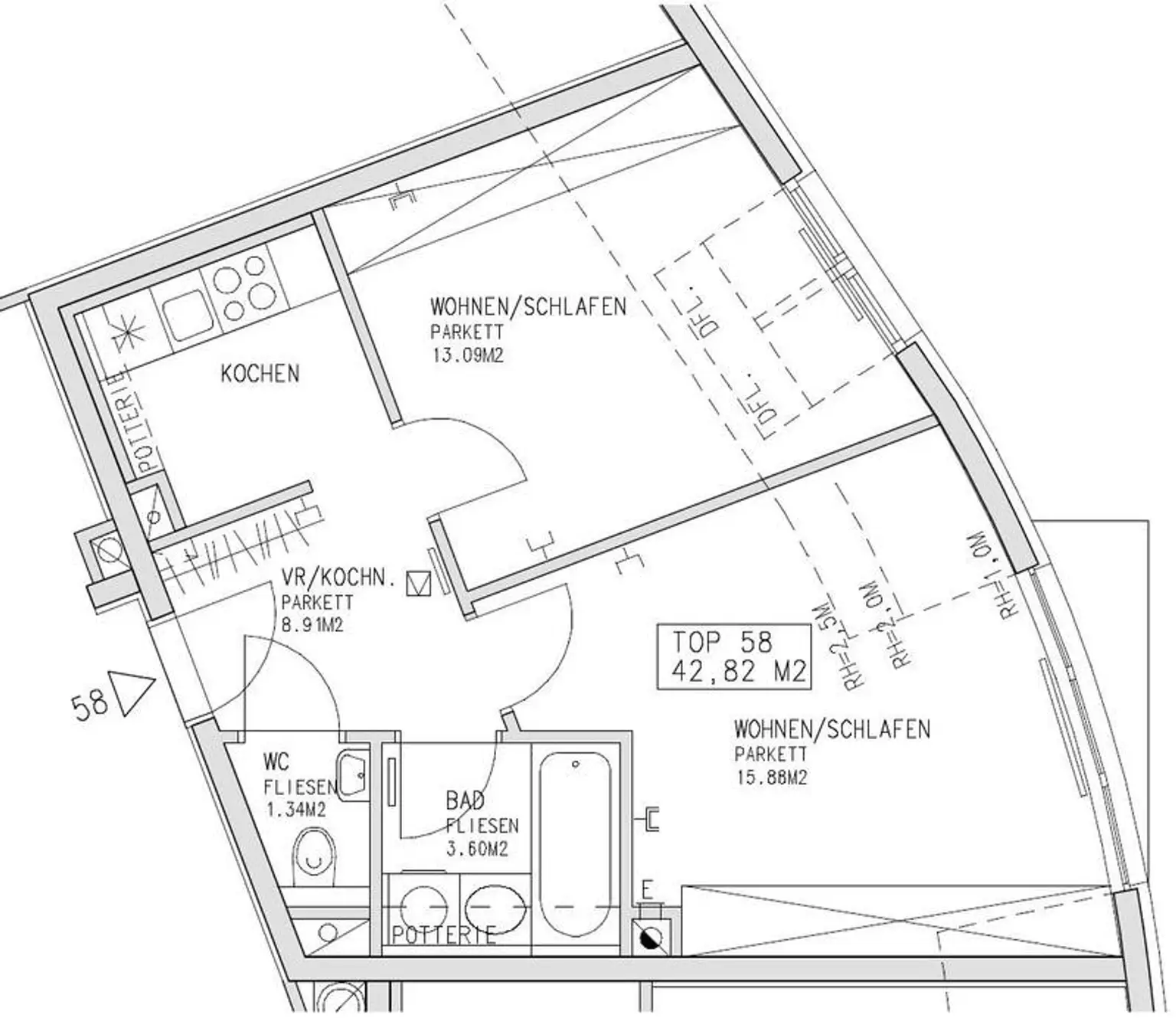
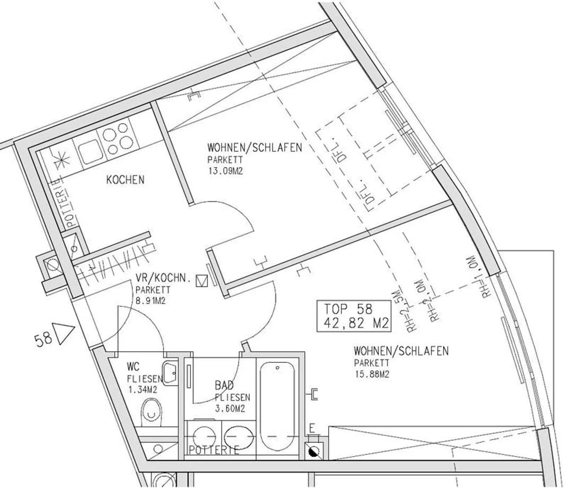
Wohnfläche:
42,82 m²
Gesamtfläche:
42,82 m²
Zimmer:
2
Schlafzimmer:
1
Badezimmer:
1
Toilette:
1
Baujahr:
2004
Verfügbarkeit:
Verfügbar

Beschreibung

Dachgeschoß-Wohnung!

In einem gepflegten Neubau in der Siebenbrunnengasse gelangt eine Dachgeschoß-Wohnung zur befristeten Vermietung.

Raumaufteilung:
Vorraum, Küche, 2 Zimmer, Bad, separates WC

Ausstattung:
Einbauküche mit Geräten, Parketten in den Wohnräumen, Nassräume verfliest.

Infrastruktur:
Straßenbahn 1, 62, Badner Bahn, Autobus 12A, 14A, 13A, Gastronomiebetriebe und Einkaufsmöglichkeiten in unmittelbarer Umgebung

Beschreibung weiterlesen

Lage und Verkehrsanbindung

Rudolf Sallinger Park, Siebenbrunnengasse

Energieeffizienz

Endenergiebedarf:
44,7 kWh/(m²*a)
HWB:
44,7 kWh/(m²*a)
HWB Klasse:
B
fGEE:
1,2
fGEE Klasse:
C
Energieausweisart:
Energiebedarfs-ausweis

Grundriss

Gerhard Wagner

Gerhard Wagner

Altenburg Realitäten GmbH & Co KG

Lade...