NEU - "Das Glück der Erde liegt auf dem Rücken der Pferde" - Studio/NeubauWohnung mit unverbaubarem Blick auf die Trabrennbahn Krieau

Wohnung zum Kauf in 1020 Wien - Kaufpreis: 348.690 € / Objektnummer: 7124
Ausstattung: Boden Fahrstuhl Möbliert Kabel/Satelliten-TV Fahrradraum Zentralheizung Balkon

Preisinformationen

Kaufpreis:
348.690 €

Fakten

Objektnummer:
7124
Objekttyp:
Wohnung
Balkon:
1
Balkonfläche:
7 m²
Keller Fläche:
3 m²
Wohnfläche:
32 m²
Nutzfläche:
38 m²
Zimmer:
1
Badezimmer:
1
Toilette:
1
Stockwerk:
5
Baujahr:
2017
Neubau:
Ja
Zustand:
Neuwertig
Verfügbarkeit:
Verfügbar

Beschreibung

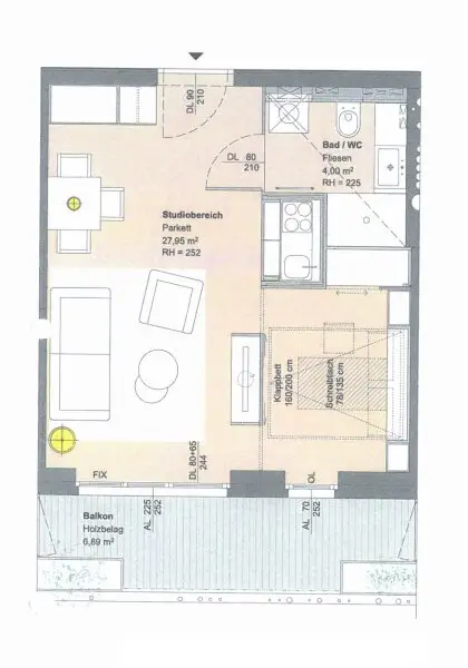
_Eckdaten und Raumaufteilung:_

- Wohnfläche ca. 32 m2

- Baujahr 2017

- Balkon ca. 7 m2

- Wohnung wird vollmöbliert verkauft

- Parkettboden

- Wohn-/Schlaf-/Küchenbereich

- Badezimmer mit Dusche, Waschbecken und Toilette

- Einbauküchennische

- Einbauschrank im Wohnbereich und im Badezimmer

- ATEMBERAUBENDER Blick auf die Trabrennbahn Krieau

- Glasfaser in der Wohnung

- Bodensteckdosen

- Glasfensterfront

- automatische Bewässerung auf dem Balkon 

- Nassräume sind verfliest

- Balkon Holzbelag

 

- 5. Stock

- Lift ist vorhanden

- Gemeinschaftswaschkücke

- Kellerabteil

- Fahrradabstellraum

- Garagenplatz kann angemietet werden

- GEMEINSCHAFTSDACHTERRASSE mit atemberaubendem Blick

- Grillplatz auf der Terrasse

 

 

_Infrastruktur:_

- U2 und Autobus in unmittelbarer Nähe

- Messe Prater direkt ums Eck

- zahlreiche nationale und internationale Unternehmen in der Umgebung

- Wirtschaftsuniversität Wien in Gehweite

- Ernst Happel Stadion (bei jedem Konzert und Fußballspiel "fast" live dabei)

- Arenawiese, Prater Hauptallee, Park Prater direkt nebenan

 

 

_Konditionen:_

- Kaufpreis € 348.690,00

- Grunderwerbssteuer 3,5 %

- grundbücherliche Eintragung 1,1 %

- Vertragserrichtung durch Mag. Tobias Rieß MSc.

- Provision 3 % (von KP) zzgl. 20 % Steuer

 

 

WICHTIG: es werden NUR Anfragen mit vollständig ausgefüllten KontaktDaten bearbeitet

Für weitere Fragen stehen wir Ihnen jeder Zeit gerne zur Verfügung. Wir möchten Sie darauf hinweisen, dass die Firma Mirela Kristo Immobilientreuhand GmbH in einem wirtschaftlichen/familiären Naheverhältnis zum Vermieter/Eigentümer steht und gegebenenfalls auch als Doppelmakler tätig ist.

Auf unserer Website finden Sie weitere ImmobilienAngebote – http://www.mirela-kristo.at [http://www.mirela-kristo.at/]

Bei Interesse kontaktieren Sie bitte

 

Frau WÖHNHART-KRISTO

+43 (0) 664 306 79 [tel:43066430679] 79

office@mirela-kristo.at

 

Maklervereinbarung: Wir ersuchen um Verständnis, dass wir bei Anfragen zur Objektadresse, bzw. Besichtigungstermin aufgrund neuer gesetzlicher Bestimmungen Unterlagen erst dann zusenden können, wenn Sie vorab bestätigen, dass Sie unser sofortiges Tätigwerden wünschen und über Ihre Rücktrittsrechte aufgeklärt wurden. Sie bekommen nach Ihrer schriftlichen Anfrage mit vollständiger Angabe des Namens, Anschrift und Telefonnummer ein Email, in dem Sie diese Punkte bestätigen müssen.

Konditionen: Da es sich um ein Maklerangebot handelt, gelten die Bedingungen der Landesinnung für Immobilien- und Vermögenstreuhänder. Ein entsprechendes Informationsblatt wird dem Exposé beigelegt. Nebenkosten/Kauf: Grunderwerbssteuer 3,5 %, Grundbuchseintrag 1,1 %, Maklergebühren:3 % +20 % MwSt.

Nebenkosten/Miete: 2Bruttomonatsmieten bei Wohnimmobilien (Bestellerprinzip), 3 Bruttomonatsmieten bei Gewerbeimmobilien, jeweils + 20 % MwSt.

Haftungsausschluss: Wir weisen darauf hin, dass sämtliche Daten im vorliegenden Angebot sowie die von unserem Büro an Sie weitergegebenen Auskünfte, vom Verkäufer der zu vermittelnden Liegenschaft zur Verfügung gestellt wurden. Ebenso sind Informationen von Dritten (z.B. behördliche Informationen) eingeholt worden, auch für diese können wir unsererseits keinerlei Haftung für deren uneingeschränkte Richtigkeit übernehmen.

 

Infrastruktur / Entfernungen

Gesundheit
Arzt 1.000m
Apotheke 500m
Klinik 250m
Krankenhaus 2.250m

Kinder & Schulen
Schule 500m
Kindergarten 250m
Universität 500m
Höhere Schule 2.000m

Nahversorgung
Supermarkt 250m
Bäckerei 250m
Einkaufszentrum 1.000m

Sonstige
Geldautomat 500m
Bank 500m
Post 750m
Polizei 1.000m

Verkehr
Bus 250m
U-Bahn 250m
Straßenbahn 750m
Bahnhof 500m
Autobahnanschluss 1.500m

Angaben Entfernung Luftlinie / Quelle: OpenStreetMap
Beschreibung weiterlesen

Lage und Verkehrsanbindung

Trabrennpark Krieau

Messe Wien

Energieeffizienz

HWB:
31,9 kWh/(m²*a)
HWB Klasse:
B
Energieausweisart:
Energiebedarfs-ausweis

Grundriss

Lageplan

1020 Wien | Wien 2., Leopoldstadt

Lade...
Mirela WÖHNHART-KRISTO

Mirela WÖHNHART-KRISTO
Akad. Immobilienberaterin und Liegenschaftsmanagerin, SV-Anwärterin (allgemein beeideter Sachverständiger Österreich)

Mirela Kristo Immobilientreuhand GmbH

Anrufen
Lade...

Fotomix

Bild 1 Bild 2 Bild 3 Bild 4 Bild 5 Bild 6 Bild 7 Bild 8 Bild 9 Bild 10 Bild 11 Bild 12 Bild 13 Bild 14 Bild 15 Bild 16 Bild 17 Bild 18 Bild 19 Bild 20 Bild 21 Bild 22 Bild 23 Bild 24 Bild 25