NEU - Das perfekte Starter-Home - 1 Zimmer Wohntraum in Bestlage des 3. Bezirks

Wohnung zum Kauf in 1030 Wien - Kaufpreis: 250.000 € / Objektnummer: 247/21958
Ausstattung: Fahrstuhl
Wohnraum
Küche
Wohnraum I
Waschmaschine
Küche I
Badezimmer
Badezimmer I
Vorraum
Gem.Terrasse
Hausansicht
Stiegenhaus
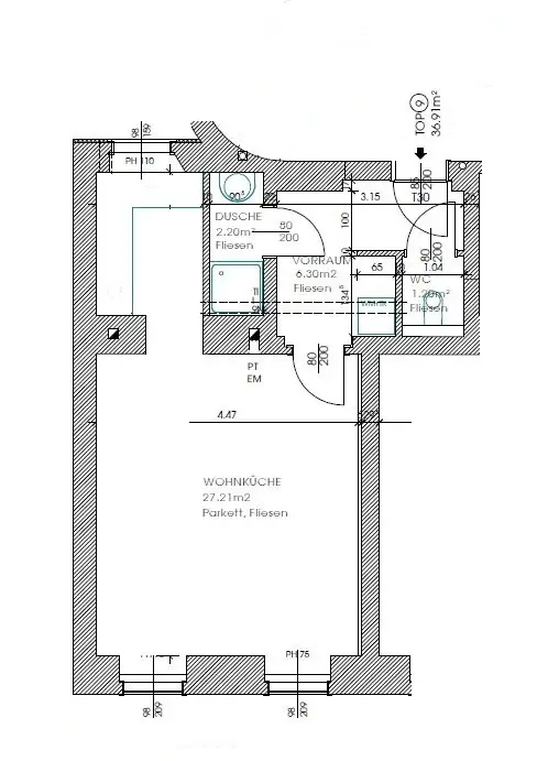
Plan
Lageplan

Preisinformationen

Kaufpreis:
250.000 €
Kaufpreis/m²
6.773,23 €
Betriebskosten netto:
108,88 € / Monat
Preisinfos:
GrESt 3,5% + Grundbucheintragung 1,1% des Gesamtkaufpreises /Vertragserrichtung 1,5% + Barauslagen, Beglaubigungs-, ggf. Treuhandkosten bei Fremdfinanzierung 1,8% + USt. (WeiKes RA) / Provision 3% + USt. des Kaufpreises
Vermittlungsprovision:
Ja
Provision:
3%

Fakten

Objektnummer:
247/21958
Objekttyp:
Wohnung
Wohnfläche:
36,91 m²
Zimmer:
1
Badezimmer:
1
Toilette:
1
Baujahr:
1900
Altbau:
Ja
Verfügbarkeit:
Verfügbar

Beschreibung

Ruhige Citylage im 3. Bezirk, nur wenige Schritte von Landstraße, Rochusmarkt und weitläufigen Grünflächen. Beste Infrastruktur, schnelle Öffi-Anbindung und vielfältige Einkaufs- und Freizeitmöglichkeiten machen die Umgebung besonders attraktiv. Diese ca. 37 m² große 1 Zimmer Wohnung in der Hetzgasse bietet alles, was man sich zum Wohlfühlen wünscht - in einem charmanten Gründerzeithaus, das 2005 hochwertig saniert wurde. DIE HIGHLIGHTS: - Single/Studenten Hit - separate, ausgestattete Küche - Sehr gute öffentliche Anbindungen (u.a. BH Landstraße) - Badezimmer mit Dusche u. Handtuchheizkörper - angenehme Raumaufteilung - Sanierung im Jahr 2005 - beheizt mittels Gaszentralheizung - Aufzug vorhanden - Kellerabteil DIE LAGE HIGHLIGHTS: - U3 Landstraße (8 Gehminuten) - Straßenbahnlinien 1, O (2 Gehminuten) - Supermarkt Billa (6 Gehminute) - Sophien-Apotheke (8 Gehminuten) - Stadtpark, Donaukanal - Zahlreiche Gastronomieangebote PREISINFORMATION: Der Kaufpreis für diese in ausgezeichneter Lage und Infrastruktur befindliche Eigentumswohnung beträgt Euro 250.000,-. Vereinbaren Sie noch heute einen Besichtigungstermin und lassen Sie sich von dieser besonderen Immobilie verzaubern. Diesbezüglich freuen wir uns über Ihre geschätzte Anfrage per Mail. Tipp: Die gesamte Anlage wird gerade parifiziert und abverkauft. Fragen Sie uns nach weiteren Objekten bzw. Paketangeboten! Wir möchten darauf hinweisen, dass unsere Antwort möglicherweise in Ihrem Spamordner landen könnte. Bitte kontrollieren Sie diesen, wenn Sie keine Rückmeldung auf Ihre Anfrage erhalten haben. Wir freuen uns auf Ihre Anfrage und einen gemeinsamen Besichtigungstermin!
Beschreibung weiterlesen

Lage und Verkehrsanbindung

Landstraße, Donaukanal

Energieeffizienz

HWB:
55,22 kWh/(m²*a)
HWB Klasse:
C
fGEE:
1,24
fGEE Klasse:
C

Grundrisse

Ruschitzka-Schilhorn Marion

Ruschitzka-Schilhorn Marion

IMV Immobilienmakler

Lade...

Fotomix

Wohnraum Küche Wohnraum I Waschmaschine Küche I Badezimmer Badezimmer I Vorraum Gem.Terrasse Hausansicht Stiegenhaus