NEU - Den Grünen Prater vor der Tür und in wenigen Gehminuten zur U3 I Südbalkon I Außenjalousien an allen Fenstern

Wohnung zum Kauf in 1030 Wien - Kaufpreis: 599.000 € / Objektnummer: 89936
Ausstattung: Barrierefrei Boden Fahrstuhl Wohnküche / offene Küche Bad Tiefgarage Parkplatz Zentralheizung Balkon WG geeignet
IMG_5646.jpeg
IMG_5658.jpeg
IMG_5675.jpeg
IMG_5679.jpeg
IMG_5653.jpeg
IMG_5690.jpeg
Finanzierung.png
IMG_5349 (1).jpeg

Preisinformationen

Kaufpreis:
599.000 €
Vermittlungsprovision:
Ja
Provision:
3,00 % des Kaufpreises zzgl. 20 % USt.

Fakten

Objektnummer:
89936
Objekttyp:
Wohnung
Balkon:
1
Balkonfläche:
7 m²
Wohnfläche:
70,1 m²
Zimmer:
3
Badezimmer:
1
Toilette:
1
Baujahr:
2018
Neubau:
Ja
Verfügbarkeit:
Verfügbar

Beschreibung

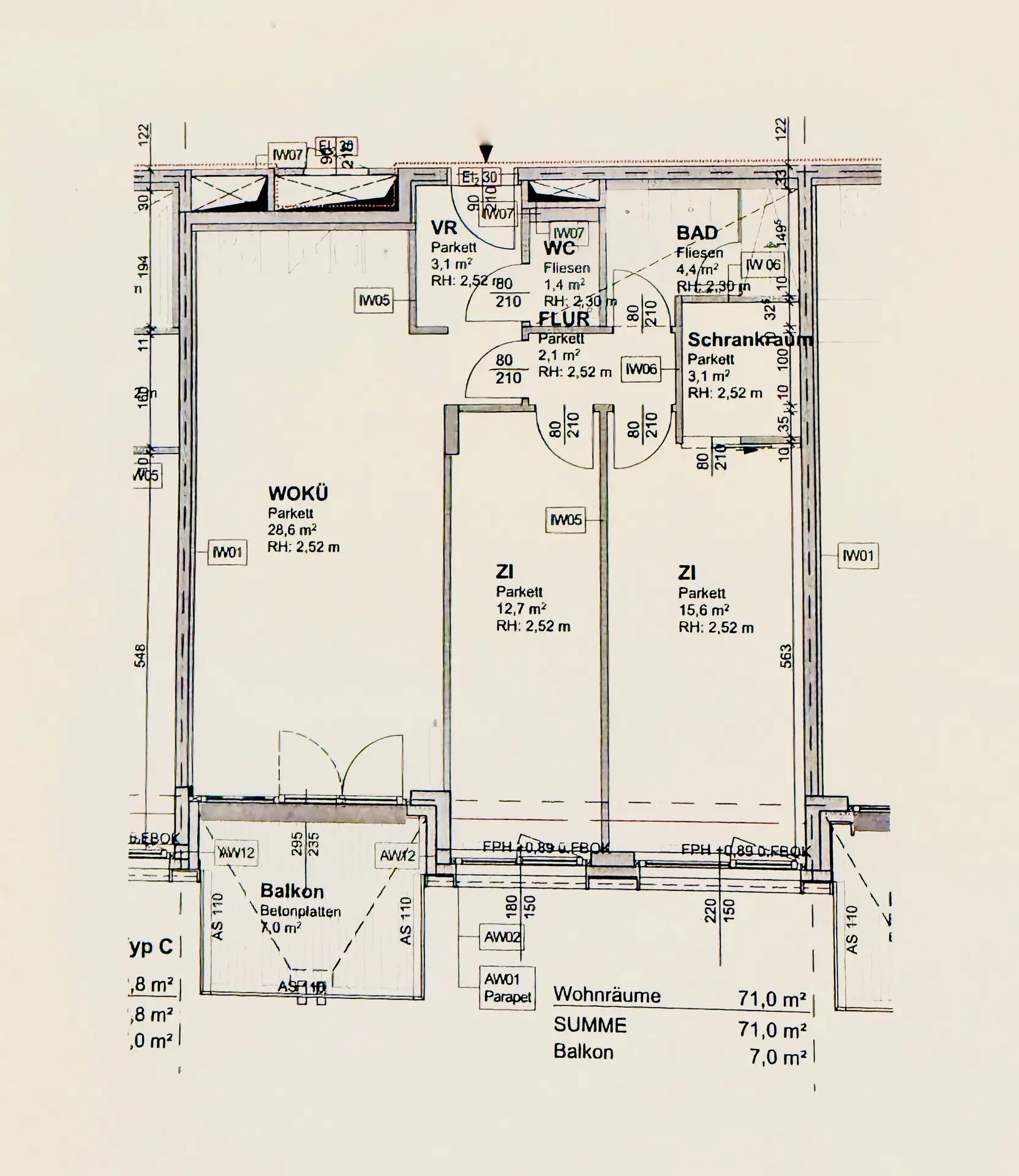
Mit einem durchdachten Grundriss und einem hochwertigen Eichenparkettboden in den Wohnräumen vermittelt die ca. 71m² große 3 Zimmerwohnung direkt ein Gefühl von Behaglichkeit und Wärme beim Betreten. 

Das Herzstück bildet die großzügige, ca. 28,6 m² große Wohnküche. Mit einer voll ausgestatteten und sehr geräumigen Küche, sowie dem angrenzenden ca. 7m² Südbalkon bietet dieser Raum jede Menge Platz für einen Sonntagsbrunch in der Sonne oder Dinner-Dates mit Freunden, aber vorallem den perfekten gemütlichen Rückzugsort vom Alltag.  Für optimalen Sonnenschutz und Privatsphäre sind an allen Fenstern Außenjalousien angebracht.

Das Hauptschlafzimmer bietet mit ca. 15,6 m² nicht nur viel Platz, sondern verfügt auch über einen eigenen praktischen begehbaren Kleiderschrank . Das angrenzende Badezimmer ist zeitlos mit Natursteinfliesen gestaltet und mit einer großen, bodentiefen Dusche ausgestattet. Ein zweites separates Zimmer mit ca. 12,7 m² lässt sich flexibel als Kinderzimmer, Homeoffice oder Gästezimmer nutzen und macht die Wohnung zudem WG-tauglich

Abgerundet wird das Angebot durch eine hohe Barrierefreiheit: Ein großer Fahrradraum im Gebäude ist bequem zugänglich.

Raumaufteilung (ca. 71 m² Wohnfläche)

  • Großzügige Wohnküche (ca. 28,6 m²)

  • Schlafzimmer (ca. 15,6 m²) +   begehbaren Kleiderschranks

  • Zweites Zimmer (ca. 12,7 m²)

  • Süd-Balkon (ca. 7,0 m²)

  • Badezimmer mit Dusche (ca. 4,4 m²)

  • Separates WC (ca. 1,4 m²)

  • Vorraum & Flur (ca. 5,2 m²)

Highlights der Wohnung

  • Hochwertige Ausstattung: Edle Parkettböden in allen Wohnräumen sorgen für ein behagliches Wohngefühl.

  • Moderne Küche: Eine voll ausgestattete, hochwertige Einbauküche ist bereits vorhanden.

  • Sonnige Ruhelage: Die gesamte Wohnung ist nach Süden zum ruhigen, begrünten Innenhof ausgerichtet.

  • Optimaler Sonnenschutz: Alle Fenster verfügen über Außenjalousien
  • Energieeffizienz: Mit einem HWB von 16,99 kWh/m²a (Klasse A) bietet das Gebäude einen erstklassigen energetischen Standard .
  • Zusätzlicher Stauraum: Ein eigener Einlagerungsraum (Kellerabteil) ist der Wohnung fest zugeordnet

Zudem verfügt die Anlage über eine hauseigene Tiefgarage. Ein Stellplatz kann für 25.000€ dazu erworben werden.

Kaufpreis: 599.000€

monatliche Kosten:

Betriebskosten: 136,90€ zzgl. USt

Reparaturrücklage: 51,80€

Warmwasser: 21,30€ zzgl USt.

Kaltwasser: 35,50€ zzgl USt

Heizkosten: 24,85€ zzgl. USt.

Stand der Reparaturrücklage: € 301.328,08  

Infina, Österreichs beliebtester Wohnbau-Finanz-Experte, begleitet Sie ganzheitlich rund um Ihr Immobilienvorhaben.

Unser Team von Immobilienexperten unterstützt Sie beim geplanten Kauf als auch bei einem möglichen Verkauf Ihrer bestehenden Immobilie. Zudem bieten unsere Finanzierungsexperten auf Wunsch maßgeschneiderte Finanzierungslösungen durch den Vergleich der besten Kredite von über 120 Banken in Österreich und Deutschland.

Wir möchten Sie unabhängig, transparent und flexibel als starker Partner in allen Immobilienangelegenheiten unterstützen.

Kontaktieren Sie uns für einen persönlichen Besichtigungstermin oder eine unverbindliche und kostenfreie Finanzierungsberatung.

Was kann Infina noch für Sie tun?

Wenn Sie eine Finanzierung für Ihre Traumimmobilie wünschen, begleiten wir Sie gerne von der strategischen Planung bis zur Realisierung und darüber hinaus. Wir sind Österreichs beliebtester Wohnbau-Finanz-Experte und unsere Mission lautet: Jeder Kunde hat das Recht auf den besten Kredit.

  • Infina kooperiert mit über 120 Banken in Österreich und Deutschland
  • Über 600 Kreditprodukte im Vergleich
  • Über 100-mal vor Ort in ganz Österreich

Ebenso unterstützen wir unsere Kunden beim Verkauf und der Vermietung Ihrer Immobilien sowie bei der Immobiliensuche durch unsere Immobilienexperten.


Wir weisen Sie darauf hin, dass die gemachten Angaben und Informationen lediglich unverbindliche Vorabinformationen sind und daher ohne Gewähr erfolgen. Der Vermittler ist als Doppelmakler tätig.

Beschreibung weiterlesen

Lage und Verkehrsanbindung

Die Wohnung besticht durch ihre unmittelbare Nähe zum Grünen Prater, der in nur wenigen Gehminuten erreichbar ist und vielfältige Möglichkeiten für Sport, Freizeit und Erholung in der Natur bietet. Auch die öffentliche Verkehrsanbindung ist ausgezeichnet: Die U-Bahn-Linie U3 ist schnell erreichbar und bietet eine direkte sowie zügige Verbindung in die Wiener Innenstadt. Ergänzend dazu befinden sich Bushaltestellen in der nahen Umgebung, was eine optimale Mobilität garantiert. Für den täglichen Bedarf ist bestens gesorgt: Zahlreiche Supermärkte, Apotheken und gastronomische Betriebe befinden sich in fußläufiger Entfernung. Die Kombination aus der Nähe zum Donaukanal, dem grünen Prater und der schnellen Anbindung an das Stadtzentrum macht diesen Standort sowohl für junge Familien als auch für Berufstätige und WG-Bewohner gleichermaßen attraktiv.

Nahverkehr:
- U3 Kardinal Nagl Platz: ca. 650m,
- Buslinien 80A: ca. 400m, 77A: ca. 600m,

Nahversorgung:
- Billa: ca. 110m,
- Hofer: ca. 400m,
- Rochusmarkt: ca. 950m,

Bildung:
-Volksschule: ca. 650m,
-Mittelschule: ca. 750m,
- Hauptschule:, ca. 600m,
-Gymnasium: ca.750m,

Sport:
- FitInn: ca. 300m,
- Im Prater befinden sich sämtliche Sportanlagen und Sportclubs.

Grundriss

Lageplan

1030 Wien | Wien 3., Landstraße

Lade...
Benjamin Bornschein

Benjamin Bornschein
Immobilienservice

Infina Credit Broker GmbH

Lade...

Fotomix

IMG_5646.jpeg IMG_5658.jpeg IMG_5675.jpeg IMG_5679.jpeg IMG_5653.jpeg IMG_5690.jpeg Finanzierung.png