NEU - DIREKT BEI DER U4&U6 STATION - GESTALTEN SIE NACH IHREN WÜNSCHEN - ZENTRAL BEGEHBAR!

Wohnung zum Kauf in 1030 Wien - Kaufpreis: 179.900 € / Objektnummer: 1718/1746352
Ausstattung: Barrierefrei Rollstuhlgerecht Fahrstuhl Bad Gäste-WC

Preisinformationen

Kaufpreis:
179.900 €
Betriebskosten netto:
107,93 € / Monat
Vermittlungsprovision:
Ja
Provision:
3% des Kaufpreises zzgl. 20% USt.

Fakten

Objektnummer:
1718/1746352
Objekttyp:
Wohnung
Wohnfläche:
52,1 m²
Nutzfläche:
52,1 m²
Gesamtfläche:
52,1 m²
Zimmer:
2
Badezimmer:
1
Toilette:
1
Stockwerk:
3
Altbau:
Ja
Zustand:
Sanierungsbedürftig
Verfügbarkeit:
Verfügbar

Beschreibung

DIREKT BEI DER U6 STATION - GESTALTEN SIE NACH IHREN WÜNSCHEN - ZENTRAL BEGEHBAR!

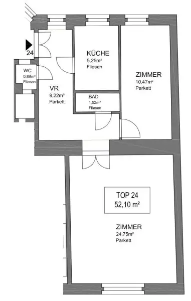
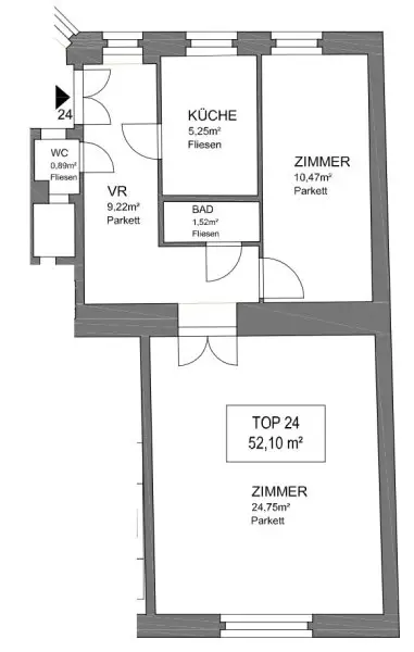
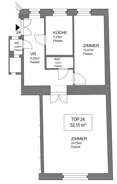
Die charmante Wohnung mit einer Wohnfläche von ca. 52m2 befindet sich im 3. Liftstock eines sehr gepflegten Hauses, nahe der U4&U6 Station. Der Gesamtzustand des Objektes ist sanierungsbedürftig und bietet Ihnen somit die Möglichkeit die Wohnung im Zuge der Sanierung nach Ihren Wünschen und Bedürfnissen gestalten zu können. Die Wohnung ist im 3. Stockwerk gelegen und kann bequem mit dem Personenaufzug erreicht werden. 

 

Wohnung:

Die ca. 52qm große 2-Zimmerwohnung gliedert sich in folgende Raumaufteilung:

*
Vorraum

*
Küche

*
Wohnzimmer

*
Schlafzimmer

*
Badezimmer mit einer Dusche 

*
separate Toilette 

 

Kosten

Kaufpreis unsaniert: Euro 179.900,-

Bei Willensübereinkunft wird eine Provision in der Höhe von 3% des Kaufpreises zzgl. 20% USt. fällig.

 

Lagebeschreibung – Heiligenstädter Straße 

Heiligenstädter Straße ist eine größere Verkehrs- und Geschäftsstraße im 19. Wiener Gemeindebezirk _Döbling_, die vom Stadtteil Heiligenstadt aus in Richtung Stadtzentrum verläuft.
Die genaue Adresse liegt im nördlichen Teil des Bezirks nahe der öffentlichen Verkehrsknotenpunkte und zahlreichen Wohn- und Gewerbeeinrichtungen. Der Bereich zeichnet sich durch:

*
Attraktive Wohn- und Geschäftsgegend mit guten Einkaufsmöglichkeiten, Cafés und Einrichtungen des täglichen Bedarfs,

*
Nähe zu Parks und Grünflächen des Donau- und Heiligenstädter Gebietes,

*
kurze Wege zur Donau und zum Donaukanal,

*
urbane Infrastruktur mit Restaurants, Supermärkten und Dienstleistungsbetrieben aus. 

Zudem gilt der Stadtteil Heiligenstadt allgemein als beliebte, zentral erreichbare Wohnlage mit historischer Substanz und guter Anbindung an das Stadtzentrum.

 

Öffentliche Verkehrsanbindung

Die Adresse Heiligenstädter Straße 5 ist hervorragend an das Wiener Verkehrsnetz angebunden:

U-Bahn

*
U4 – Heiligenstadt und U6 – Spittelau befinden sich in fußläufiger Entfernung. Von dort gelangt man schnell ins Stadtzentrum und zu weiteren Umsteigemöglichkeiten. 

S-Bahn / Regionalzüge

*
S45 Wiedner Hauptstraße / S40 bzw. andere S-Bahn-Linien am Bahnhof Heiligenstadt sind nahe und bieten Verbindungen innerhalb Wiens und ins Umland. 

Straßenbahn

*
Straßenbahnlinie D (zB Haltestellen _Gunoldstraße_, _Spittelau_ oder _Nußdorf Beethovengang_) fährt entlang der Heiligenstädter Straße bzw. in deren Nähe und verbindet mit wichtigen Zielen im Norden und Süden Wiens. 

Buslinien

Mehrere Buslinien halten nahe der Adresse, darunter z. B.:

*
10A, 38A, 5B, N36 und weitere Linien – ideal für kurze Zubringer zu U-Bahn, U/S-Bahnhöfen oder anderen Stadtteilen.

Die Haltestellen liegen meist in wenigen Gehminuten vom Standort entfernt (je nach genauer Position entlang der Straße ca. 1–5 Minuten zu Fuß). 

 

Energieausweis

Der Heizwärmebedarf beträgt 120,60kWh/m²a, welcher der Klasse D entspricht.

 

Für Fragen bzw. Besichtigungen steht Ihnen Herr Kevin Matyas sehr gerne unter 0664 18 14 655 [tel:06641814655] zur Verfügung.

Wir weisen darauf hin, dass zwischen dem Vermittler und dem zu vermittelnden Dritten ein familiäres oder wirtschaftliches Naheverhältnis besteht.

Der Vermittler ist als Doppelmakler tätig.

Infrastruktur / Entfernungen

Gesundheit
Arzt 500m
Apotheke 500m
Klinik 500m
Krankenhaus 1.500m

Kinder & Schulen
Schule 1.000m
Kindergarten 500m
Universität 500m
Höhere Schule 1.000m

Nahversorgung
Supermarkt 500m
Bäckerei 500m
Einkaufszentrum 2.000m

Sonstige
Geldautomat 500m
Bank 1.000m
Post 1.000m
Polizei 500m

Verkehr
Bus 500m
U-Bahn 500m
Straßenbahn 500m
Bahnhof 500m
Autobahnanschluss 1.000m

Angaben Entfernung Luftlinie / Quelle: OpenStreetMap
Beschreibung weiterlesen

Lage und Verkehrsanbindung

U6 Nussdorfer Straße, Spittelau

Energieeffizienz

HWB:
120,6 kWh/(m²*a)
HWB Klasse:
D
fGEE:
2,08
fGEE Klasse:
D
Energieausweisart:
Energiebedarfs-ausweis
Gültig bis:
25.05.2034

Grundriss

Lageplan

1030 Wien | Wien 3., Landstraße

Lade...
Kevin Matyas

Kevin Matyas

RIMMO Prime Vermittlungs GmbH

Anrufen
Lade...

Fotomix

Bild 1 Bild 2 Bild 3 Bild 4 Bild 5 Bild 6 Bild 7 Bild 8 Bild 9 Bild 10