NEU - DIREKT VOM EIGENTÜMER - exklusive Büros TECHBASE LINZ/ Bauteil 4, teilbar

Immobilie zur Miete in 4020 Linz / Objektnummer: 120
Ausstattung: Barrierefrei Fahrstuhl Klimaanlage Tiefgarage Parkplatz Fernwärme

Preisinformationen

Gesamtmiete (exkl. USt.):
17,50 € / Monat
Umsatzsteuer:
3,50 €
Kaution:
3 Bruttomonatsmieten

Fakten

Objektnummer:
120
Nutzfläche:
2.834 m²
Bürofläche:
2.834 m²
Verfügbarkeit:
Verfügbar

Beschreibung

Auf dem Siemens Gelände an der Wolfgang-Pauli-Straße gegenüber dem WIFI OÖ errichtet die NEUSON REAL GmbH die "Techbase Linz" - ein Campus für innovative Unternehmen. Es sind ein Konferenzzentrum, Restaurant, Cafe, Lebensmittelmarkt als auch gestaltete Terrasse, Grün- und Aufenthaltsbereiche für Firmen und Mitarbeiter direkt am Campus vorgesehen.

Das Projekt besticht durch seinen idealen Standort, da sich die notwendige Infrastruktur im Nahbereich befindet - Straßenbahn, Bus, Autobahnanschluss, Einkaufsmöglichkeiten, Kinderbetreuungseinrichtungen, etc.

Die "Techbase Linz" soll als Innovations- und Technologieschmiede für moderne und bereits etablierte Unternehmen dienen, aber auch Platz für jungen Unternehmen zur Entfaltung und Weiterentwicklung bieten. Das Projekt wird in 3 Bauetappen errichtet. Die Fertigstellung bzw. der Bezug der verschiedenen Bauetappen ist mit 2022, 2023 und 2024 geplant. Der Bau hat bereits begonnen.

Es wird eine multifunktionale Business-Infrastruktur zu Verfügung gestellt, welche den  heutigen technischen Anforderungen gerecht wird. Das städtebauliche Konzept sieht drei boomerangförmige und ein 10-geschossiges Gebäude vor, welche das zentrale bestehende Siemens-Gebäude (wird komplett saniert) im Campus integriert. Alle Bauteile sind über Gehwege miteinander verbunden.

Als markanter Hochpunkt steht das 10-geschossige Gebäude (Office Tower) im Nord- Westen des Areals, welcher eine enorme Signalwirkung entlang der Autobahn bewirkt.

 

Freie Mietflächen:

 

Büroflächen - BT 1

mögl. Mietfläche:                   ca. 1.593 m² (teilbar, 1.OG)

 

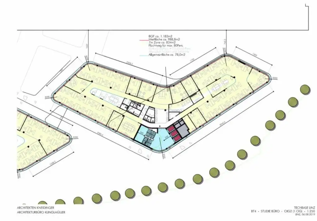
Büroflächen - BT 4

mögl. Mietfläche ges.:            ca. 2.834 m² (teilbar)

davon Shopanteil:                  ca. 850 m² teilbar, EG

Regelgeschoß Büro:              ca. 992 m² (1.OG, 2.OG)

 

Alle Büroräume werden mit hochwertigen Materialien und Klima ausgestattet. In der jetzigen Planungsphase können Mieterwünsche gerne noch miteinbezogen werden!

Über unsere Homepage www.techbase-linz.at [http://www.techbase-linz.at] finden Sie noch weitere Details und Visualisierungen zum Projekt.

Gerne überzeugen wir Sie auch vom Campus „Techbase Linz“ in einem persönlichen Gespräch und würden uns über einen gemeinsamen Termin freuen. 

Bei Fragen stehen wir natürlich jederzeit zur Verfügung.

 

++ Direkt vom Eigentümer - keine Provision ++

Infrastruktur / Entfernungen

Gesundheit
Arzt <900m
Apotheke <650m
Klinik <1.325m
Krankenhaus <800m

Kinder & Schulen
Kindergarten <425m
Schule <275m
Universität <2.350m
Höhere Schule <2.700m

Nahversorgung
Supermarkt <25m
Bäckerei <325m
Einkaufszentrum <900m

Sonstige
Bank <550m
Geldautomat <550m
Post <775m
Polizei <1.275m

Verkehr
Bus <125m
Straßenbahn <100m
Bahnhof <825m
Autobahnanschluss <400m
Flughafen <2.750m

Angaben Entfernung Luftlinie / Quelle: OpenStreetMap
Beschreibung weiterlesen

Lage und Verkehrsanbindung

Linz Stadt, direkte Autobahn- und Straßenbahnanbindung, vis-à-vis Wifi OÖ, Nähe Linz AG, ÖAMTC, Hotel Ibis Style

Wifi OÖ, Linz AG, Hotel Ibis Style

Grundrisse

Lageplan

4020 Linz | Linz (Stadt)

Lade...
Theresia Prechtl

Theresia Prechtl
Immobilienmanagement

NEUSON Real GmbH

Lade...

Fotomix

Bild 1 Bild 2 Bild 3 Bild 4 Bild 5 Bild 6 Bild 7