NEU - Doktor-Adolf-Schärf-Platz 05, 1220 Wien

Wohnung zur Miete in 1220 Wien - Gesamtmiete: 1.169,00 € / Objektnummer: 1240/233471
Ausstattung: Barrierefrei Loggia

Preisinformationen

Gesamtmiete:
1.169,00 € / Monat
Betriebskosten netto:
155,52 € / Monat
Umsatzsteuer:
106,27 €
Kaution:
3.510,00 €
Provision:
Gemäß Erstauftraggeberprinzip bezahlt der Abgeber die Provision.

Fakten

Objektnummer:
1240/233471
Objekttyp:
Wohnung
Loggia:
1
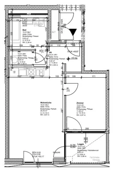
Wohnfläche:
49,87 m²
Loggia Fläche:
5,92 m²
Nutzfläche:
49,87 m²
Gesamtfläche:
55,79 m²
Zimmer:
2
Stockwerk:
15
Zustand:
Neuwertig
Verfügbarkeit:
Verfügbar

Beschreibung

WOHNEN IM VIENNA TWENTYTWO TOWER

 

Zur Verfügung stehen 46m² bis 94m² große Wohneinheiten mit jeweils 2 bis 4 Zimmer, alle inkl. Loggia und Küche.

 

Alle Wohnungen werden bezugsfertig inkl. Teilmöblierung übergeben. Diese umfasst:

- Vorzimmer: Einbauschränke, tlw. Sitzbänke und Spiegel

- Bad: Waschtisch-Unterschrank, Waschmaschinenschrankverbau, Spritzschutz für Badewanne/Dusche, Handtuchwärmer

- Fenster: Elektrische Außenrollo

- Raumthermostate, Deckenkühlung und Erdwärmepumpe

 

Das Gebäude an sich bietet eine Menge Highlights. Schwimmen Sie eine Runde im Indoorpool, welcher für Bewohner des gesamten Hauses zur Verfügung steht, in ca. 100m Höhe und genießen dabei den fantastischen Ausblick über Wien, die Donau und die Wiener Hausberge. Auch der hauseigene Fitness Raum sowie die Sauna stehen frei zur Verfügung. Weitere Vorteile, von denen Sie als Mieter profitieren, sind, unter anderem, eine Gemeinschaftsküche, ein Jugend- bzw. Gemeinschaftsraum, eine Waschküche, ein Fahrradraum, ein Hundewaschplatz sowie 3 Aufzüge.

 

Die Lage überzeugt durch die hervorragende Infrastruktur. Einkaufs- sowie Freizeitmöglichkeiten, wie das Donauzentrum oder die Alte Donau, ebenso wie Schulen, Kindergärten, Ärzte und öffentliche Verkehrsmittel, sind alle in wenigen Minuten fußläufig erreichbar.

Wir bitten bei Zusendung einer Anfrage um Angabe Ihrer Telefonnummer zur schnelleren Kontaktaufnahme durch unser Büro.

Wir weisen darauf hin, dass zwischen dem Vermittler und dem zu vermittelnden Dritten ein familiäres oder wirtschaftliches Naheverhältnis besteht.

Der Immobilienmakler erklärt, dass er – entgegen dem in der Immobilienwirtschaft üblichen Geschäftsgebrauch des Doppelmaklers – einseitig nur für den Vermieter tätig ist.

Infrastruktur / Entfernungen

Gesundheit
Arzt <350m
Apotheke <200m
Klinik <2.375m
Krankenhaus <3.250m

Kinder & Schulen
Schule <225m
Kindergarten <425m
Universität <1.250m
Höhere Schule <1.025m

Nahversorgung
Supermarkt <100m
Bäckerei <100m
Einkaufszentrum <200m

Sonstige
Geldautomat <175m
Bank <175m
Post <450m
Polizei <275m

Verkehr
Bus <50m
U-Bahn <75m
Straßenbahn <100m
Bahnhof <75m
Autobahnanschluss <2.025m

Angaben Entfernung Luftlinie / Quelle: OpenStreetMap
Beschreibung weiterlesen

Dokumente

Grundriss

Lageplan

1220 Wien | Wien 22., Donaustadt

Lade...
Haring Immobilien Treuhand GmbH (Vermietung)

Haring Immobilien Treuhand GmbH (Vermietung)

Haring Group Bauträger GmbH

Lade...

Fotomix

Bild 1 Bild 2 Bild 3 Bild 4 Bild 5 Bild 6 Bild 7 Bild 8 Bild 9 Bild 10 Bild 11 Bild 12 Bild 13