NEU - Donaustadt - Am langen Felde

Wohnung zum Kauf in 1220 Wien - Kaufpreis: 956.520 € / Objektnummer: 131902_33
Ausstattung: Fahrradraum Abstellraum Fußbodenheizung Terrasse
Donaustadt - Am langen Felde
Donaustadt - Am langen Felde
Donaustadt - Am langen Felde
Donaustadt - Am langen Felde
Donaustadt - Am langen Felde
Donaustadt - Am langen Felde
Donaustadt - Am langen Felde
Donaustadt - Am langen Felde
Donaustadt - Am langen Felde
Donaustadt - Am langen Felde
Donaustadt - Am langen Felde
Donaustadt - Am langen Felde

Preisinformationen

Kaufpreis:
956.520 €
Kaufpreis/m²
6.685,68 €

Fakten

Objektnummer:
131902_33
Objekttyp:
Wohnung
Terrasse:
3
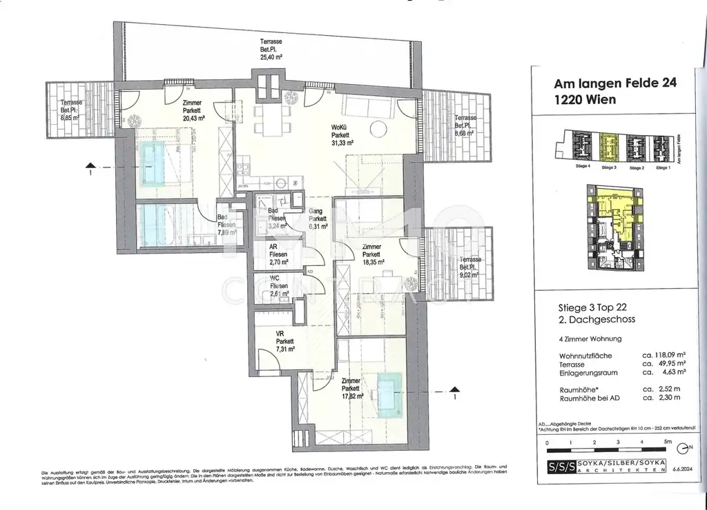
Wohnfläche:
118,09 m²
Zimmer:
4
Schlafzimmer:
3
Badezimmer:
2
Toilette:
1
Stockwerk:
3
Baujahr:
2025
Zustand:
Erstbezug
Verfügbarkeit:
Verfügbar

Beschreibung

Wohnen Am Langen Felde 24 – fertiggestellt, hochwertig & gut angebunden

Im 22. Wiener Gemeindebezirk, nahe der U1-Station Kagraner Platz, stehen bereits fertiggestellte Eigentumswohnungen zum Einzug bereit. Die Wohnhausanlage mit vier Stiegen und Tiefgarage überzeugt durch eine erstklassige, energieeffiziente Bauweise mit Fernwärme, Photovoltaikanlage und Fußbodenheizung – ideal für alle, die nachhaltig und zukunftssicher wohnen möchten.

Jede Wohnung verfügt über eine private Freifläche – sei es Garten, Balkon, Loggia oder Terrasse – und bietet durchdachte Grundrisse sowie hochwertige Ausstattung: Echtholzparkett, moderne Fliesen, eine voll ausgestattete Einbauküche und ein stilvoll ausgestattetes Badezimmer sind bereits im Kaufpreis enthalten.

Die Lage verbindet urbanen Komfort mit naturnaher Lebensqualität: Alte Donau, Lobau, Blumengärten und Badeteich Hirschstetten sind ebenso schnell erreichbar wie das Donauzentrum, Nahversorger, Schulen und medizinische Versorgung.

Beziehen Sie jetzt Ihr neues Zuhause in der Donaustadt – bezugsfertig, modern und wertbeständig.

Für eine Besichtigung steht Ihnen Herr Martin Melcher (0677 617 324 39)
gerne zur Verfügung.
Beschreibung weiterlesen

Lage und Verkehrsanbindung

Die fertiggestellten Eigentumswohnungen Am Langen Felde 24 liegen in ausgezeichneter Lage der Donaustadt – nur wenige Minuten von der U1 Kagraner Platz entfernt. Die Umgebung verbindet urbanen Komfort mit naturnaher Erholung: Alte Donau, Lobau, die Blumengärten Hirschstetten und der Badeteich Hirschstetten bieten zahlreiche Freizeitmöglichkeiten im Grünen.

Sämtliche Nahversorger, Schulen, Kindergärten und Ärzte sind fußläufig erreichbar. Das nahegelegene Donauzentrum und die hervorragende öffentliche Anbindung sorgen für beste Infrastruktur.

Der 22. Bezirk zählt zu den aufstrebendsten Wohngegenden Wiens – eine Wohnung hier steht für hohe Lebensqualität und eine wertbeständige Investition.

22. Donaustadt

Energieeffizienz

HWB:
24,4 kWh/(m²*a)
HWB Klasse:
A
fGEE:
0,71
Gebäudeart:
listing.status.epcBuildingType_wohn
Energieausweisart:
Energiebedarfs-ausweis
Ausstellung:
ab dem 1.5.2014
Gültig bis:
08.04.2032
Martin Melcher

Martin Melcher

Lade...

Fotomix

image00088 image00086 image00089 image00087 image00090 Top 22

Lageplan