NEU -

Haus zum Kauf in 1220 Wien - Kaufpreis: 599.900 € / Objektnummer: 25/12614
Ausstattung: Boden Bad Gäste-WC Fußbodenheizung Terrasse Garten
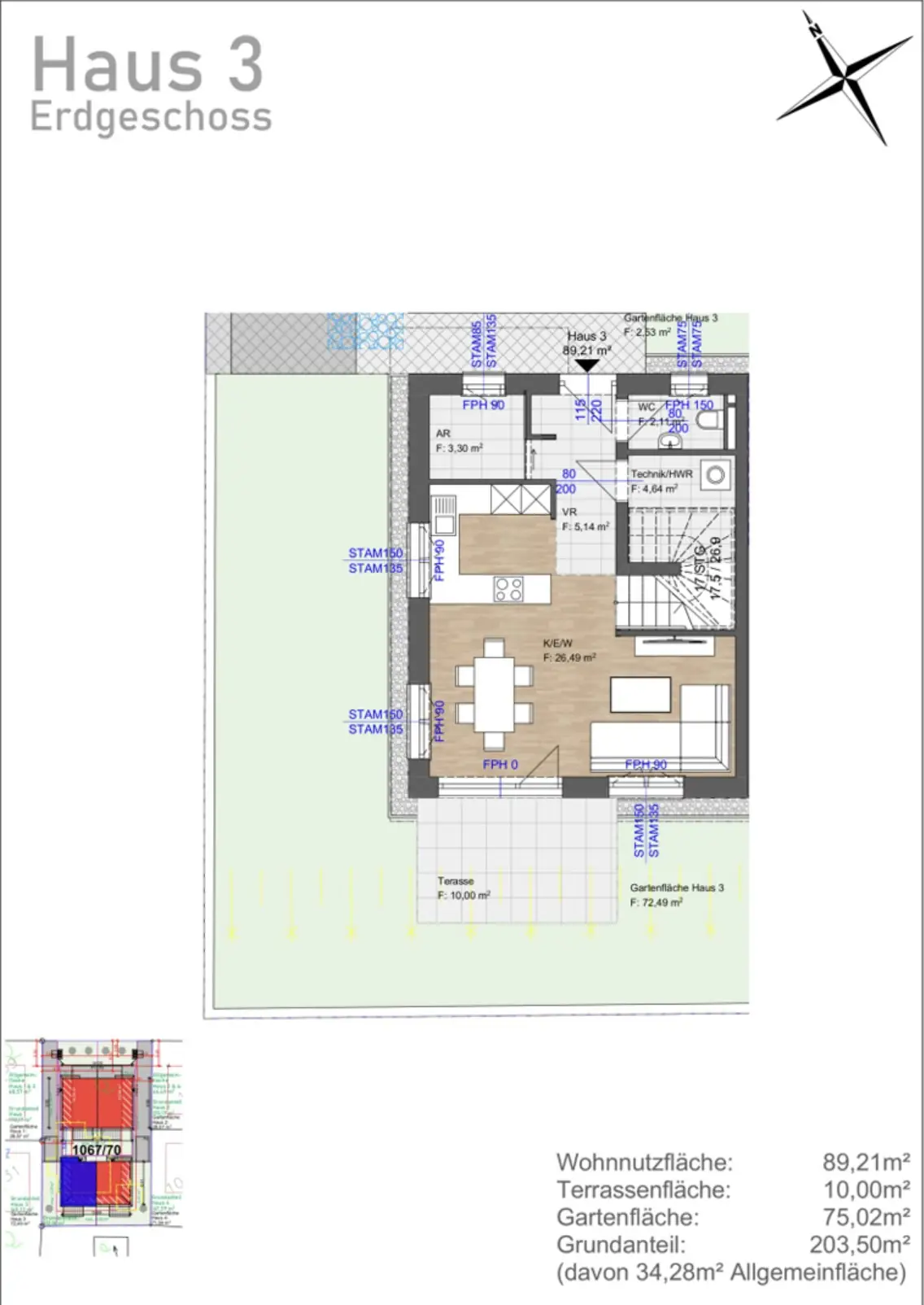
Haus3 EG
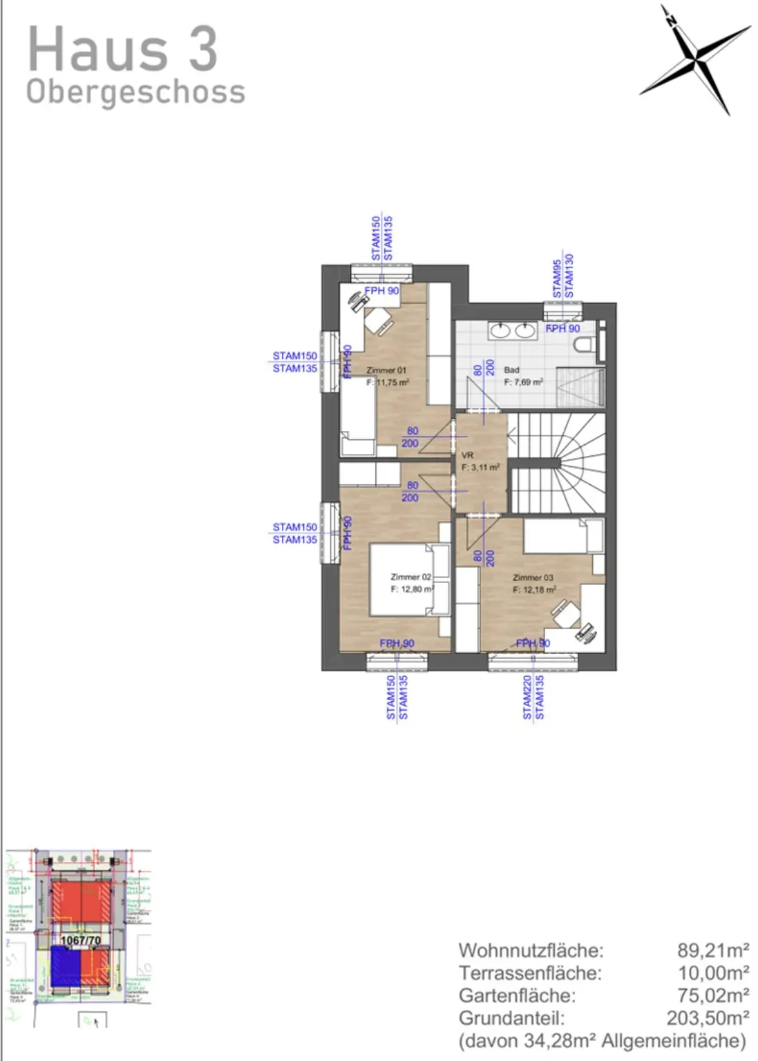
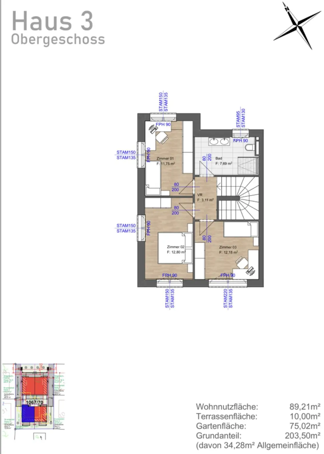
Haus3 OG

Preisinformationen

Kaufpreis:
599.900 €

Fakten

Objektnummer:
25/12614
Objekttyp:
Haus
Terrasse:
1
Wohnfläche:
89,21 m²
Grundstücksfläche:
203,5 m²
Gartenfläche:
75,02 m²
Zimmer:
4
Schlafzimmer:
3
Badezimmer:
1
Toilette:
2
Baujahr:
2025
Zustand:
Erstbezug
Verfügbarkeit:
Verfügbar

Beschreibung

Ziegelmassive Doppelhaushälfte in Kagran – Haus 3

Dieses exklusive Doppelhaus-Projekt befindet sich in der begehrten Erzherzog-Karl-Straße 36 im 22. Wiener Gemeindebezirk Kagran. Die Umgebung überzeugt durch eine perfekte Kombination aus urbanem Leben und naturnahen Freizeitmöglichkeiten. In unmittelbarer Nähe befinden sich das Donauzentrum, die Donauinsel, das Strandbad sowie der Donaustädter Bad- und Donaupark – ideal für Erholung und Sportaktivitäten. Dank der hervorragenden Verkehrsanbindung über die U1 und den Bus 93A erreichen Sie die Wiener Innenstadt in wenigen Minuten. Der Baurechtsgrund gehört dem Stift Klosterneuburg mit einer Laufzeit von 100 Jahren (bis 31.12.2124) und bietet die Option auf Verlängerung.

Bei diesem Projekt entstehen zwei moderne Doppelhäuser mit insgesamt vier Wohneinheiten in hochwertiger Ziegelmassivbauweise. Jede Einheit erstreckt sich über Erd- und Obergeschoss und verfügt über einen privaten Garten sowie einen KFZ-Stellplatz. Die nachhaltige und ökologische Bauweise mit 38 cm gedämmtem Ziegelmauerwerk und einer Edelputzfassade sorgt für ein perfektes Wohnklima. Die Häuser sind sowohl schlüsselfertig als auch belagsfertig erhältlich und bieten ein durchdachtes Raumkonzept, das modernen Wohnkomfort und Energieeffizienz vereint.

Preise:
Kaufpreis Schlüsselfertig: € 599.900,- | Belagsfertig: € 578.900,- | Bauzins: ca. € 350,86- monatlich

Starten Sie Ihr neues Leben in Kagran. Diese Doppelhaushälfte vereint urbanen Komfort, naturnahe Lebensqualität und energieeffizientes Wohnen – ideal für Familien oder Paare, die modernes Wohnen in einer der besten Lagen Wiens suchen.

--

Solid Brick Semi-Detached House in Kagran – House 3

This exclusive semi-detached house project is located at the sought-after Erzherzog-Karl-Straße 36 in Kagran, the 22nd district of Vienna. The area offers a perfect combination of urban living and nearby recreational opportunities. Within close proximity, you will find the Donauzentrum shopping center, the Donauinsel, the public beach, and the Donaustadt Bath and Danube Park – ideal for relaxation and sports activities. Thanks to excellent public transport connections via the U1 subway line and bus 93A, Vienna’s city center is just a few minutes away. The building land is under a 100-year leasehold from Stift Klosterneuburg (until 31.12.2124) with an option for extension.

This project consists of two modern semi-detached houses with a total of four residential units, built in high-quality solid brick construction. Each unit spans the ground and upper floors and comes with a private garden and a parking space. The sustainable and eco-friendly construction, featuring 38 cm insulated brick walls and a premium plaster façade, ensures an excellent living climate. The houses are available both turnkey and in a “ready-to-finish” state, offering a thoughtful floor plan that combines modern comfort with energy efficiency.

Prices:
Purchase Price – Turnkey: €599,900 | Shell-Finish: €578,900 | Monthly Construction Interest: approx. €350.86

Start your new life in Kagran. This semi-detached house combines urban comfort, a nature-oriented lifestyle, and energy-efficient living – ideal for families or couples seeking modern living in one of Vienna’s best locations.
Beschreibung weiterlesen

Lage und Verkehrsanbindung

Die Doppelhaushälfte befindet sich in der begehrten Erzherzog-Karl-Straße 36 im 22. Wiener Gemeindebezirk Kagran. Die Lage verbindet urbanes Leben mit hervorragender Infrastruktur und einer naturnahen Umgebung.

Alle wichtigen Einrichtungen des täglichen Lebens sind fußläufig erreichbar: Ärzte liegen in nur 500 m Entfernung, Apotheken in 1.000 m, Kliniken und das Krankenhaus sind innerhalb von 2–3 km erreichbar. Familien profitieren von einer hervorragenden Bildungsinfrastruktur: Schulen sind 500 m entfernt, Kindergärten 1.000 m, höhere Schulen 2.000 m und die Universität 2.500 m.

Für den täglichen Einkauf und Freizeitaktivitäten stehen Supermärkte in 500 m, Bäckereien in 1.000 m und Einkaufszentren in nur 1.000 m Entfernung zur Verfügung. Banken, Geldautomaten, Post und Polizei sind ebenfalls in kurzer Distanz erreichbar.

Die Anbindung an den öffentlichen Verkehr ist exzellent: Bus- und Straßenbahnstationen befinden sich in 500 m, die U-Bahn und der Bahnhof in 1.000 m Entfernung. Der Anschluss an die Autobahn ist innerhalb von 2 km erreichbar, wodurch auch Pendler bestens angebunden sind.

Diese Lage bietet somit eine ideale Kombination aus urbaner Nähe, bester Infrastruktur und naturnaher Wohnqualität.

---

The semi-detached house is located in the sought-after Erzherzog-Karl-Straße 36 in Vienna’s 22nd district, Kagran. The location perfectly combines urban living with excellent infrastructure and proximity to nature.

All essential services are within walking distance: doctors are only 500 meters away, pharmacies 1,000 meters, and clinics and hospitals can be reached within 2–3 km. Families benefit from outstanding educational facilities, with schools just 500 meters away, kindergartens 1,000 meters, secondary schools 2,000 meters, and the university 2,500 meters from the property.

For everyday shopping and leisure, supermarkets are 500 meters away, bakeries 1,000 meters, and shopping centers just 1,000 meters from the house. Banks, ATMs, post offices, and police stations are also conveniently close.

Public transport connections are excellent: bus and tram stops are 500 meters away, and the subway and train station are 1,000 meters from the property. The nearest motorway access is only 2 km away, making commuting easy and convenient.

This location offers an ideal combination of urban convenience, comprehensive infrastructure, and a tranquil, nature-friendly living environment.

Energieeffizienz

HWB:
39 kWh/(m²*a)
HWB Klasse:
B
fGEE:
0,42
fGEE Klasse:
A++
Gebäudeart:
listing.status.epcBuildingType_wohn
Ausstellung:
ab dem 1.5.2014
Gültig bis:
23.01.2035
Katharina Klasan

Katharina Klasan

KLASAN & Partner Immobilien GmbH & Co KG

Lade...

Fotomix

Haus3 EG Haus3 OG

Lageplan