NEU - Ebensee - Ehemaliges Sacherl für Ruhesuchende!

Haus zur Miete in 4802 Ebensee - Gesamtmiete: 750,00 € / Objektnummer: 2027/1308
Ausstattung: Fußbodenheizung
K1600_DSC09632_Haus_Startfoto
K1600_20240414_094238993_iOS_Haustür
K1600_20240414_094411817_iOS_Stube
K1600_20240414_094628765_iOS_Küche
K1600_20240414_094756437_iOS_Bad
K1600_20240414_094802385_iOS_Dusche
K1600_20240414_094941733_iOS_Schlafzimmer
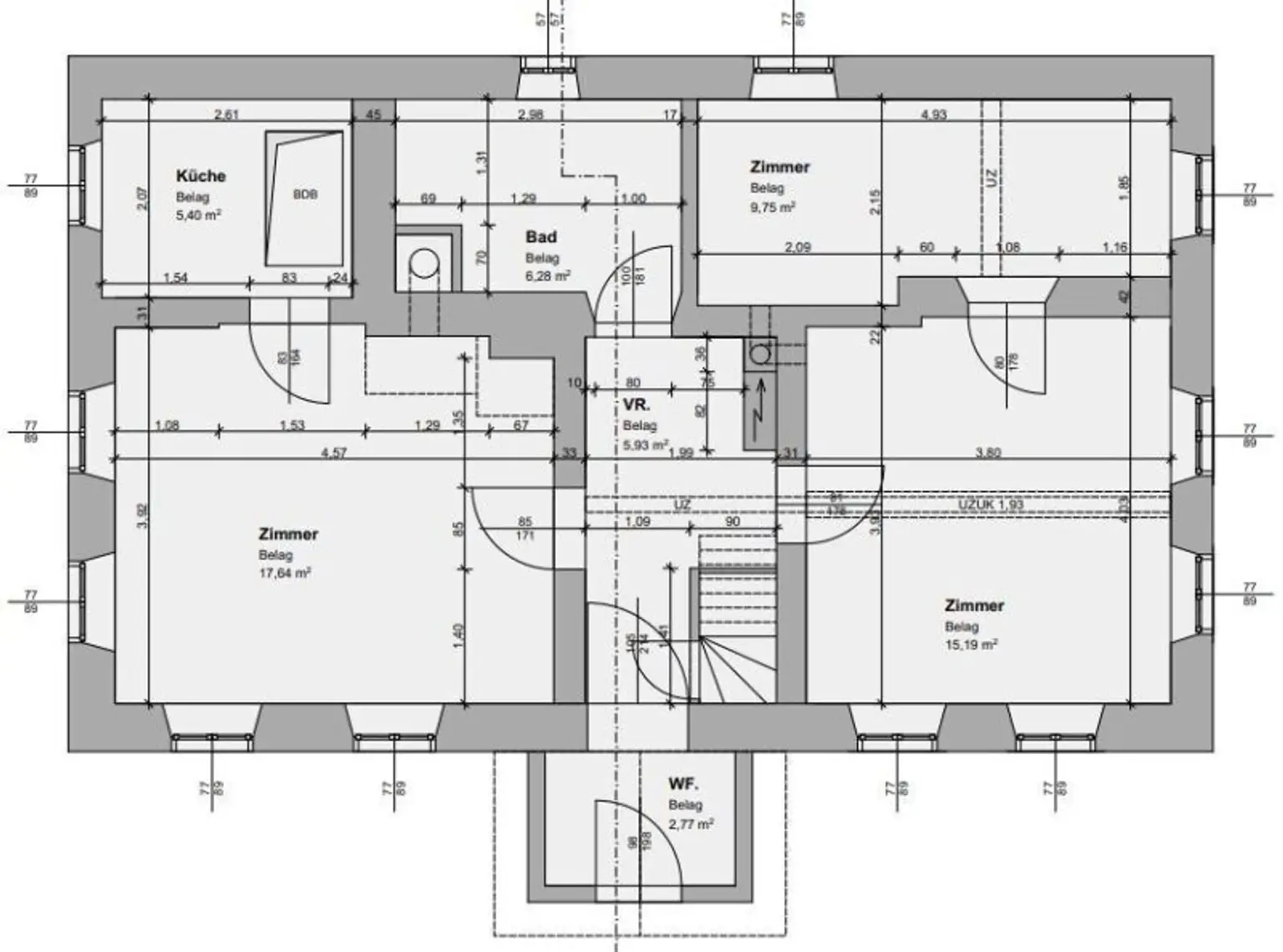
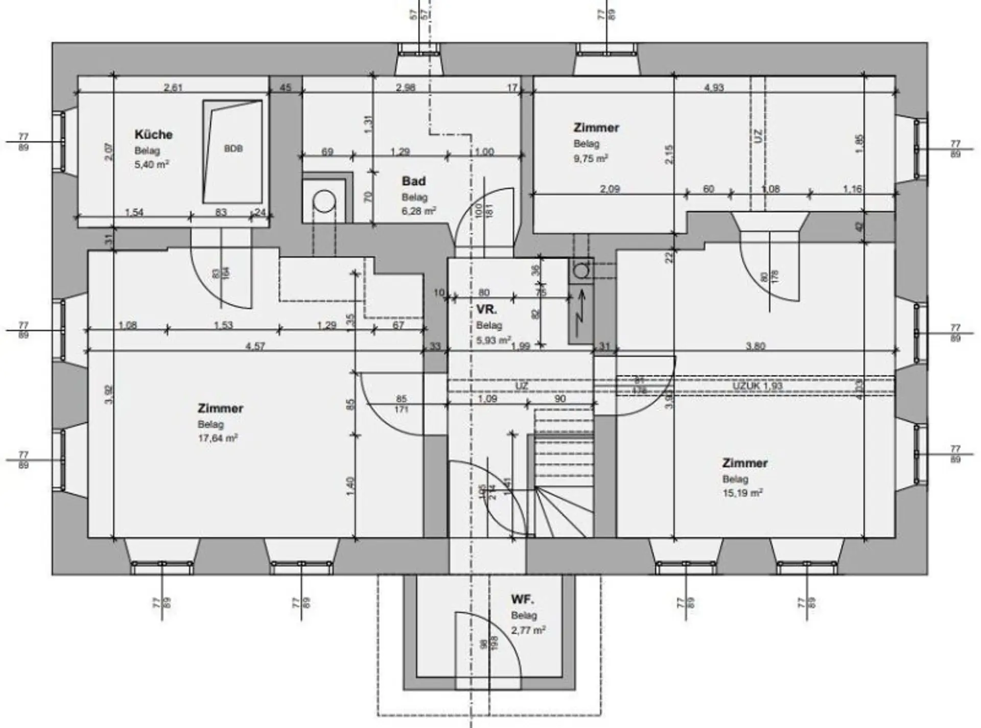
Grundriss_EG
K1600_DSC09652_Umgebung
K1600_DSC09653_Umgebung

Preisinformationen

Gesamtmiete:
750,00 € / Monat
Umsatzsteuer:
68,18 €
Kaution:
2.250,00 €
Provision:
Gemäß Erstauftraggeberprinzip bezahlt der Abgeber die Provision.

Fakten

Objektnummer:
2027/1308
Objekttyp:
Haus
Wohnfläche:
60 m²
Zimmer:
3
Badezimmer:
1
Baujahr:
1541
Verfügbarkeit:
Verfügbar

Beschreibung

Klein aber fein! - Selten dass dieses Sprichwort wirklich so gut zu einem Objekt passt.
Zu mieten ist dieses wunderschöne ehemalige Sacherl im Ortsteil "Roith" in Ebensee.
Das Haus wurde ca. 1541 errichtet und in den letzten Jahren traumhaft saniert.
Als Wohnfläche stehen ca. 60m² im Erdgeschoss zur Verfügung, welche aus dem Vorraum, Stube, möblierter Küche (darunter befindet sich die Technik für die Heizung), Bad mit Dusche und WC, Schlafzimmer und einem weiteren Zimmer besteht.
Das Haus verfügt über keinen Keller.

Der Mieter kann die Garage für die Abstellung eines PKW und den Holzlagerraum mit benützen.
Die Wiese ist an einen Bauern verpachtet, der 3 bis 4 mal pro Jahr das Gras mäht und die Hecke schneidet.
Der Garten ist nicht automatisch dabei. Die Nutzung des Gartens ist in Absprache mit dem Vermieter möglich (derzeit ein kleiner Grünstreifen rund ums Haus). Ein kleiner Weg führt am Haus vorbei.
Der Mieter muss im Winter die ca. 120m lange Zufahrtsstraße selbst räumen (eine Schneefräse ist vorhanden).

Das Haus entspricht thermisch nicht gerade den heutigen Anforderungen, lässt sich aber mittels einer modernen Wärmepumpe (Grundwasser), der geringen Wohnfläche und mit dem Kachelofen entsprechend kostengünstig betreiben.
Die Warmwassererzeugung wird mit einer kleinen Solaranlage unterstützt.

Folgende Kosten sind noch vom Mieter zu übernehmen (derzeit ca. 260,-€/Monat):
Strom für Heizung und Haushalt
Gemeindekosten für Wasser, Kanal und Müllabfuhr
Haushaltsversicherung (= ~ Hausratversicherung)

Sollte ein Mieter das Haus nur als Zweitwohnsitz nutzen, so ist die Freizeitwohnungspauschale von ihm zu übernehmen.

Eine Untervermietung wird ausdrücklich verboten.
Für Detailinformationen bitten wir um Angabe Ihrer vollständigen Daten.

Alle Hunde und Katzenbesitzer muss ich leider enttäuschen, da diese nicht erlaubt sind.
Alle Anderen können die Ruhe in dieser wunderbaren Umgebung genießen - Nicht nur ein Traum für Individualisten, Künstler, EDV-Techniker,...!

Der Immobilienmakler erklärt, dass er – entgegen dem in der Immobilienwirtschaft üblichen Geschäftsgebrauch des Doppelmaklers – einseitig nur für den Vermieter tätig ist.

Infrastruktur / Entfernungen

Gesundheit
Arzt <2.500m
Apotheke <2.000m

Kinder & Schulen
Schule <500m
Kindergarten <1.000m

Nahversorgung
Supermarkt <1.500m
Bäckerei <2.500m
Einkaufszentrum <2.500m

Sonstige
Geldautomat <2.500m
Bank <2.500m
Post <1.500m
Polizei <3.000m

Verkehr
Bus <1.000m
Bahnhof <1.500m

Angaben Entfernung Luftlinie / Quelle: OpenStreetMap
Beschreibung weiterlesen

Lage und Verkehrsanbindung

Roitherwirt

Energieeffizienz

HWB:
379 kWh/(m²*a)
Energieausweisart:
Energiebedarfs-ausweis

Lageplan

4802 Ebensee | Gmunden

Lade...
Robert Bönisch

Robert Bönisch
staatlich geprüfter Immobilienmakler und Bauträger, Funktionär des Fachausschusses

Bönisch Immobilien

Lade...

Fotomix

K1600_DSC09632_Haus_Startfoto K1600_20240414_094238993_iOS_Haustür K1600_20240414_094411817_iOS_Stube Bild 4 Bild 5 K1600_20240414_094628765_iOS_Küche K1600_20240414_094756437_iOS_Bad K1600_20240414_094802385_iOS_Dusche K1600_20240414_094941733_iOS_Schlafzimmer Bild 10 Grundriss_EG Bild 12 Bild 13 Bild 14 Bild 15 K1600_DSC09652_Umgebung K1600_DSC09653_Umgebung