NEU - Eggenberg- 4 Zimmer WOHNTRAUM mit großer Terrasse & Garten!

Wohnung zum Kauf in 8020 Graz - Kaufpreis: 494.370 € / Objektnummer: 6433
Ausstattung: Kabel/Satelliten-TV Parkplatz Außenparkplatz Zentralheizung Terrasse Garten
burenstr60_05062024_soft_1-2
burenstr60_05062024_soft_2
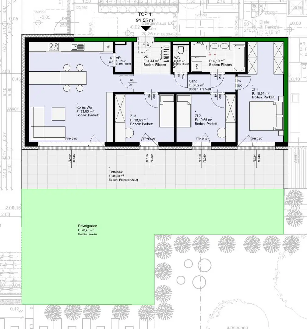
BS60_20251112_EG-Top1_groß
burenstr60_05062024_soft_4
burenstr60_05062024_soft_6

Preisinformationen

Kaufpreis:
494.370 €
Preisinfos:
Fixpreis

Fakten

Objektnummer:
6433
Objekttyp:
Wohnung
Terrasse:
1
Keller Fläche:
8,83 m²
Wohnfläche:
91,55 m²
Gartenfläche:
78,46 m²
Zimmer:
4
Badezimmer:
1
Toilette:
1
Baujahr:
2027
Zustand:
Erstbezug
Verfügbarkeit:
Verfügbar

Beschreibung

In Alt Eggenberg, in beliebter Stadtlage, verkehrstechnisch ideal angebunden (Strassenbahn vor der Haustüre) aber doch im ruhigen Grünen gelegen, in unmittelbarer Nähe zum wunderschönen Schloss Eggenberg und zum

Naherholungsgebiet Plabutsch, entsteht ein neues Wohnraumwerk-Projekt:

Ein moderner, süd-westseitig orientierter Baukörper fügt sich harmonisch in die Umgebung ein und verfügt über insgesamt 9 Wohneinheiten und ein gebäudeintegriertes Parkdeck.

Es werden lichtdurchflutete, großzügige Wohnungen mit 2- 5 Zimmern und großen Terrassen, Garten, Balkon und Dachgärten verwirklicht-

Hochwertige Ausstattung runden den Wohnkomfort dieses Projektes in Eggenberg BESTlage ab-

Die Wohnungen sind provisionsfrei für den Käufer direkt vom Bauträger zu erwerben!

JETZT Traumimmobilie sichern- Baustart bereits 2026- Fertigstellung Sommer/Herbst 2027!

Top 4 Zimmer GARTEN Wohnung mit großer Terrasse und EigenGARTEN!

Die Wohnung besticht durch Ihre ideale Aufteilung:

-Großer Wohn/Essbereich mit integrierter Küche mit Abstellraum und Ausgang auf die fast 40 m2 große Terrasse und Eigengarten mit ca. 80m2

-großes Schlafzimmer mit Schrankraum und Ausgang auf die Terrasse

-2 (Kinder) Schlafzimmer

-Badezimmer mit Dusche und Wanne

-WC extra

Die Wohnung verfügt über ein Kellerabteil mit ca. 8,83m2.

Zur Wohnung gehört ein Freiparkplatz, der ab Euro 15.000,- kostet.
Angaben gemäß gesetzlichem Erfordernis:
Heizwärmebedarf: 32.0 kWh/(m²a)
Klasse Heizwärmebedarf: B
Beschreibung weiterlesen

Energieeffizienz

HWB:
32 kWh/(m²*a)
HWB Klasse:
B
Energieausweisart:
Energiebedarfs-ausweis

Dokumente

Berit Senger

Berit Senger

IMMOXX. GmbH

Lade...

Fotomix

burenstr60_05062024_soft_1-2 burenstr60_05062024_soft_2 BS60_20251112_EG-Top1_groß burenstr60_05062024_soft_4 burenstr60_05062024_soft_6