NEU - Eggenberger Gürtel 73: Gut ausgestattete Genossenschaftswohnung mit intelligentem Grundriss! - JETZT ZUSCHLAGEN

Wohnung zur Miete in 8020 Graz - Gesamtmiete: 649,67 € / Objektnummer: 1745553
Ausstattung: Boden Fahrstuhl Bad Balkon

Preisinformationen

Gesamtmiete:
649,67 € / Monat
Betriebskosten netto:
135,50 € / Monat
Umsatzsteuer:
59,06 €
Kaution:
2.030,82 €

Fakten

Objektnummer:
1745553
Objekttyp:
Wohnung
Balkon:
1
Balkonfläche:
5,47 m²
Wohnfläche:
49,37 m²
Nutzfläche:
55,35 m²
Gesamtfläche:
55,24 m²
Zimmer:
2
Badezimmer:
1
Toilette:
1
Stockwerk:
7
Baujahr:
2016
Zustand:
Neuwertig
Verfügbarkeit:
Verfügbar

Beschreibung

AKTION

2 MONATE MIETZINSFREI

*gültig bei Mietanbotslegung bis zum 01.06.2026

*die Betriebskosten sind auch während der mietzinsfreien Monate zu entrichten

 

Eggenberger Gürtel 73 – Modernes Wohnen und Arbeiten im Herzen von Graz

Das Projekt Eggenberger Gürtel 73 befindet sich im Herzen von Graz und bietet eine herausragende Gelegenheit für moderne Stadtentwicklung in einem der zentralsten und dynamischsten Stadtteile. Die Liegenschaft zeichnet sich durch ihre ausgezeichnete Lage entlang des Eggenberger Gürtels aus, einer bedeutenden Verkehrsachse der Stadt, die sowohl den urbanen Raum als auch die umliegenden Naherholungsgebiete verbindet.

Das Projekt hat das Ziel, auf dem Areal an der Adresse Eggenberger Gürtel 73 ein zukunftsweisendes und multifunktionales Gebäude zu errichten, das den Bedürfnissen der Stadt Graz und ihrer Bewohner gerecht wird. Die Entwicklung beinhaltet sowohl Wohn- als auch Geschäftsflächen und leistet einen nachhaltigen Beitrag zur urbanen Vielfalt und Lebensqualität.

Das Gebäude zeichnet sich durch eine moderne Architektur aus, die innovative Elemente mit der bestehenden städtischen Struktur vereint. Der Entwurf sieht großzügige, lichtdurchflutete Wohnräume vor, die auf die Ansprüche eines modernen Lebensstils zugeschnitten sind.

 

Nachhaltigkeit und Energieeffizienz

Ein zentrales Anliegen des Projekts ist die Umsetzung von nachhaltigen und energieeffizienten Baumaßnahmen. Das Gebäude entspricht den neuesten Standards der Nachhaltigkeit und ist mit innovativen Energiekonzepten ausgestattet, die den CO₂-Ausstoß minimieren. Dies beinhaltet unter anderem die Nutzung erneuerbarer Energien, eine hochwertige Dämmung und eine moderne Haustechnik, die den Energieverbrauch optimiert.

AKTION

2 MONATE MIETZINSFREI

*gültig bei Mietanbotslegung bis zum 01.06.2026

*die Betriebskosten sind auch während der mietzinsfreien Monate zu entrichten

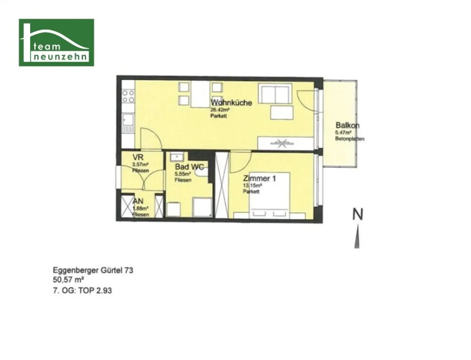
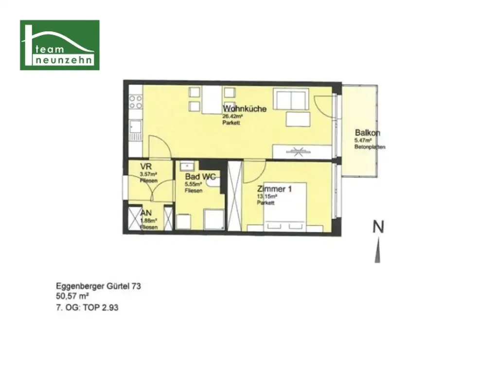
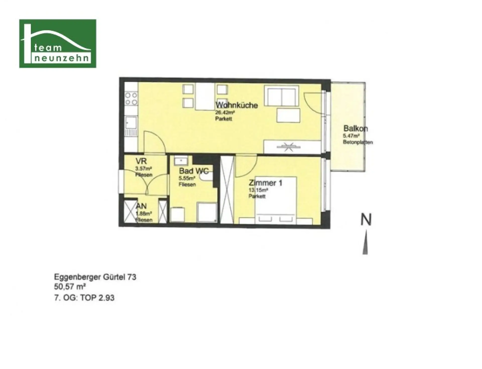
Wohnung Haus 73 Top 2.93

Die Wohnung befindet sich im 7. Obergeschoss und hat folgende Raumaufteilung:

* Vorraum
* Ankleidenische
* Wohnküche
* Zimmer
* Bad/WC
* Balkon

 

Einige Bilder des Inserats wurden zum Zweck der besseren Visualisierung digital mit KI möbliert. Die Wohnung wird unmöbliert übergeben.

 

Kosten:
monatliche Miete: 650,03 Euro (inkl. Betriebskosten und Umsatzsteuer)

Möbelmiete: 26,90 Euro (inkl. 20% Umsatzsteuer)

Kaution: 2.030,82 Euro

Provision: PROVISIONSFREI

 

Infrastruktur:

Der Eggenberger Gürtel stellt eine perfekte Anbindung an das öffentliche Verkehrsnetz dar, was den Standort sowohl für Bewohner als auch für Unternehmen äußerst attraktiv macht. Die Nähe zur Grazer Innenstadt und wichtigen Knotenpunkten der Stadt garantiert eine hohe Lebensqualität und gleichzeitig eine ausgezeichnete Erreichbarkeit von Geschäften, Schulen, Freizeitmöglichkeiten und Arbeitsplätzen.

 

Energieausweis:

Der Heizwärmebedarf beträgt ca. 21,10 kWh/m2a und entspricht der Klasse A.

 

Für Fragen bzw. Besichtigungen steht Ihnen Herr Peter Tawadrous sehr gerne telefonisch unter 0676 852 243 536 zur Verfügung.

Wir weisen darauf hin, dass zwischen dem Vermittler und dem zu vermittelnden Dritten ein familiäres oder wirtschaftliches Naheverhältnis besteht.

Der Immobilienmakler erklärt, dass er – entgegen dem in der Immobilienwirtschaft üblichen Geschäftsgebrauch des Doppelmaklers – einseitig nur für den Vermieter tätig ist.

"Leben braucht Raum" * T19-RE Real Estate GmbH & Co KG * www.teamneunzehn.at [https://www.teamneunzehn.at]

Doppelmakler

Wir werden als Immobilienmakler kraft bestehenden Geschäftsgebrauchs als Doppelmakler tätig und haben sohin beide Seiten des Vertrages (Verkäufer-Käufer, Vermieter-Mieter) zu unterstützen.

Wirtschaftliches Naheverhältnis

Es wird bekannt gegeben, dass folgendes wirtschaftliches Naheverhältnis zwischen der teamneunzehn-Gruppe und dem Verkäufer/der vermietenden Partei besteht: ständige und dauerhafte Beauftragung mit der Vermittlung des bestehenden Immobilienportfolios

Haftungserklärung zum Inserat

Irrtum und Änderungen vorbehalten! Sofern es sich bei Bildern um Visualisierungen handelt, können Abänderungen zur tatsächlichen Ausführung resultieren. Wir weisen ausdrücklich darauf hin, dass das auf Fotos oder Visualisierungen ersichtliche Mobiliar bzw. Inventar nicht Bestandteil des inserierten Preises ist.

 

 

Passender Versicherungsschutz für Ihre Immobilie?

Sie haben eine Immobilie erworben oder angemietet und benötigen nun einen passenden Versicherungsschutz, welcher Sie im Schadensfall vor unerwarteten Kosten schützt? Wir können Ihnen ein unverbindliches und günstiges Angebot von einem unabhängigen Kooperationspartner zukommen lassen. Die Zusendung und Kommunikation erfolgt direkt mit unserem Kooperationspartner, die Unterlagen zu Ihrer Wohnung erhält der Kooperationspartner jedoch im Vorfeld bereits direkt von uns (Ihr Zeitaufwand soll ja schlussendlich möglichst geringgehalten werden). Bei Interesse freuen wir uns auf Ihre Kontaktaufnahme unter versicherung@teamneunzehn.at

Gründliche und professionelle Reinigung Ihrer Immobilie

Jede Immobilie ist besonders und hat Ihre Vorzüge, eine gereinigte Wohnung ist definitiv begehrter und ermöglicht einen besseren Verwertungserfolg. Wir möchten unseren Kunden stets Immobilien im gereinigten Zustand präsentieren und stehen für Rückfragen bzw. bei Bedarf zu unserem Serviceangebot gerne unter reinigung@teamneunzehn.at zur Verfügung

Sie sind Anleger und bevorzugen den Erwerb einer Immobilie mit Vorsteuerabzug?

Die teamneunzehn-Gruppe ist besonders auf den Vertrieb von Neubauprojekten spezialisiert. Wir beraten unsere Bauträger/Abgeber bereits im Zuge der Planung der neu zu schaffenden Wohnhausanlagen und berücksichtigen stets die Wünsche/Vorstellungen sämtlicher Mietinteressenten, so dass geringe Leerstandsquoten gehalten und bestmögliche Renditen erzielt werden können. Die Option des Vorsteuerabzuges spielt unseren Anlegern zusätzlich in die Karten! Wir können Ihnen mit sofortiger Wirkung unverbindliche Vorschläge präsentieren, bitte wenden Sie sich an anlegerwohnung@teamneunzehn.at

Infrastruktur / Entfernungen

Gesundheit
Arzt <325m
Apotheke <400m
Klinik <475m
Krankenhaus <675m

Kinder & Schulen
Schule <225m
Kindergarten <50m
Universität <1.150m
Höhere Schule <1.300m

Nahversorgung
Supermarkt <450m
Bäckerei <275m
Einkaufszentrum <525m

Sonstige
Geldautomat <475m
Bank <475m
Post <475m
Polizei <500m

Verkehr
Bus <100m
Straßenbahn <825m
Autobahnanschluss <3.675m
Bahnhof <675m
Flughafen <8.550m

Angaben Entfernung Luftlinie / Quelle: OpenStreetMap
Beschreibung weiterlesen

Lage und Verkehrsanbindung

Lazarettgasse, Kärntner Straße, Citypark, Hauptbahnhof, Oeverseepark

Energieeffizienz

HWB:
21,1 kWh/(m²*a)
HWB Klasse:
A
fGEE:
0,75
fGEE Klasse:
A
Energieausweisart:
Energiebedarfs-ausweis

Grundriss

Lageplan

8020 Graz | Graz (Stadt)

Lade...
Peter Tawadrous

Peter Tawadrous

teamneunzehn-Gruppe

Lade...

Fotomix

Bild 1 Bild 2 Bild 3 Bild 4 Bild 5 Bild 6 Bild 7 Bild 8 Bild 9 Bild 10 Bild 11 Bild 12 Bild 13 Bild 14 Bild 15 Bild 16 Bild 17