NEU - Eigentumswohnung mit Platz für Alt und Jung

Wohnung zum Kauf in 3264 Gresten - Kaufpreis: 210.000 € / Objektnummer: 4048
Ausstattung: Möbliert Zentralheizung Terrasse
Wohnzimmer W1
Wohnzimmer W1
Küche W1
Schlafzimmer W1
Bad W1
Zimmer W2
Jugendzimmer W2
Küche W2
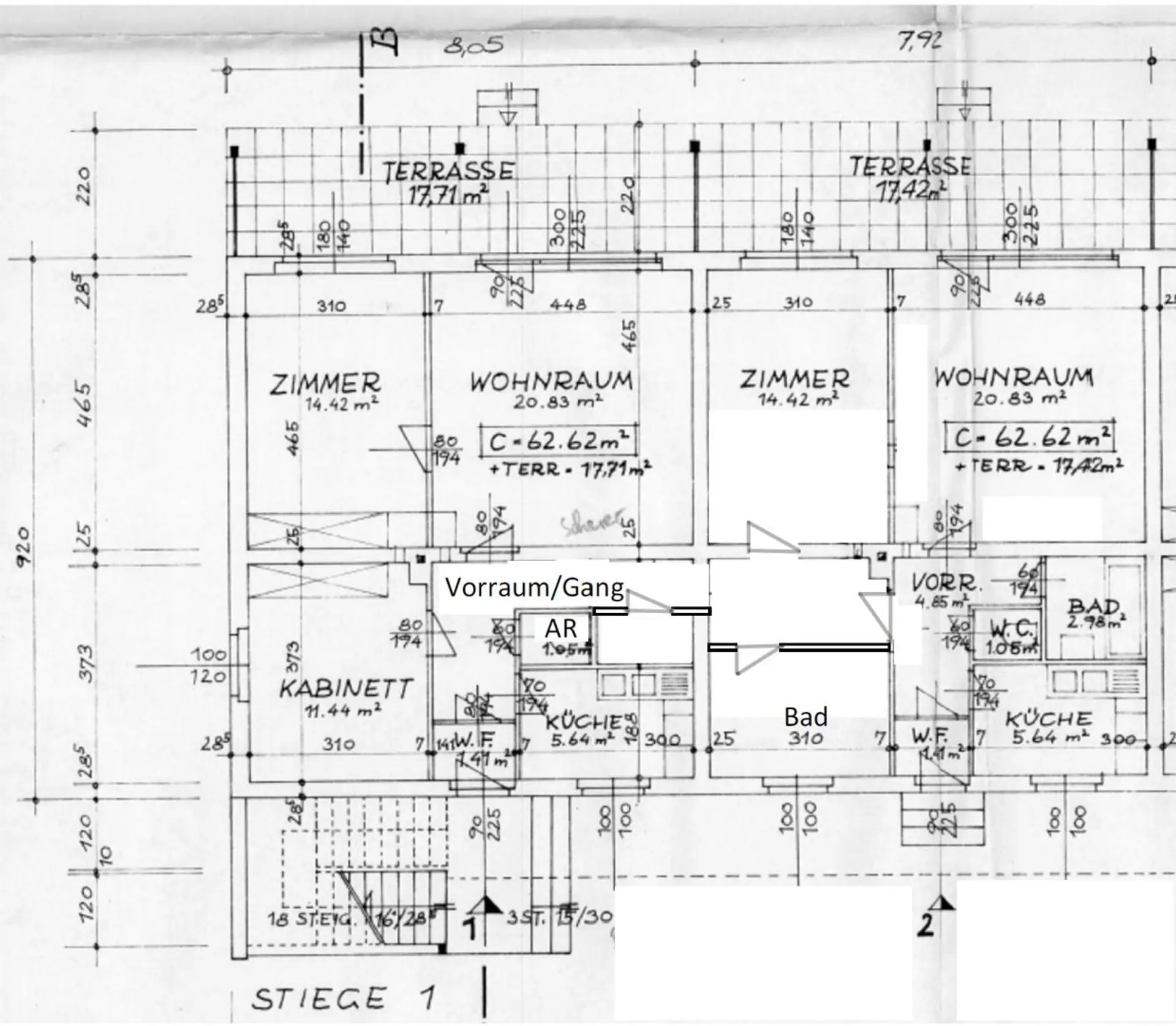
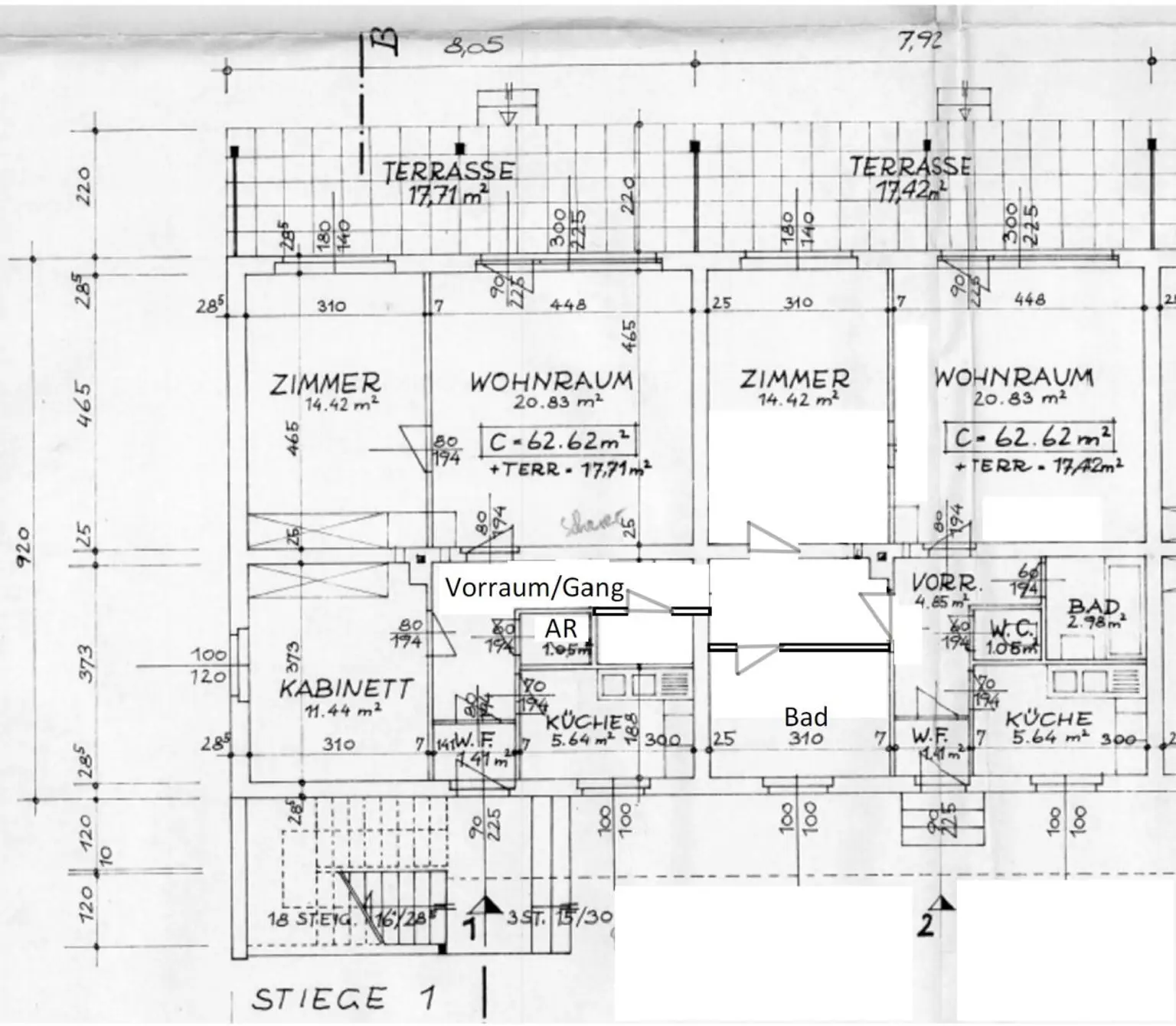
Grundriss

Preisinformationen

Kaufpreis:
210.000 €
Preisinfos:
Verhandlungsbasis
Provision:
3.00 %

Fakten

Objektnummer:
4048
Objekttyp:
Wohnung
Terrasse:
2
Wohnfläche:
125 m²
Zimmer:
5
Schlafzimmer:
3
Badezimmer:
2
Toilette:
2
Baujahr:
ca. 1969
Zustand:
Gepflegt
Verfügbarkeit:
Verfügbar

Beschreibung

Große Eigentumswohnung in ruhiger, zentraler Lage!

Die aus 2 Einheiten bestehende, zusammengelegt im Erdgeschoss der Wohnhausanlage gelegene Wohnung besticht durch ihr großzügiges Raumangebot. Gleich 2 nach Süden ausgerichtete Terrassen laden vor allem im Sommer zum Chillen und Seelebaden ein. Auch sonst bietet das geräumige Heim viele Vorzüge für ein Zusammenwohnen von Alt und Jung. Wohnen, Leben aber auch die Nutzung eines Büroraumes oder Einrichtung von Hobbyräumen sind durch das vorhandene Platzangebot verwirklichbar.

Das Raumkonzept:
2 Eingänge mit Vorräumen, 2 Bäder, 2 WC, 2 Küchen, 2 Terrassen, 5 Zimmer sowie 2 Abstellräume im 1. Stock

Die Wohneinheit ist an das Netz der Fernwärme angeschlossen wobei die Aufbereitung des Warmwassers elektrisch erfolgt. Zusätzlich sind auch noch 2 Kaminanschlüsse vorhanden, welche jedoch derzeit nicht genutzt werden. Zum Abstellen des/der eigenen KFZ sind im Umfeld eine ausreichende Anzahl von öffentlichen Parkplätzen vorhanden.

Durch die zentrale Lage sind das Ortszentrum, Kindergarten, Schule, Ärzte, Einkaufsmärkte sowie Sport- und Freizeiteinrichtungen fußläufig in 10 bis 15 Minuten erreichbar. Auch für Wanderungen bzw. Radtouren kann auf das Auto verzichtet werden, da für beide Aktivitäten Gresten als Ausgangspunkt genutzt werden kann. Als Arbeitssuchende/r findet man in Gresten immer wieder Stellenangebote der heimischen Wirtschaft, welche für gut ausgebildete Fachkräfte, Hilfskräfte aber auch Lehrstellensuchende oft Angebote bereitstellt. Das rege Vereinsleben bietet zudem eine Vielfalt an Möglichkeiten sich sportlich aber auch kulturell zu betätigen.

Für weitere Informationen und Besichtigungen steht Ihnen Herr Mag. (FH) Harald Bittermann gerne unter +43 681 814 423 00 zur Verfügung.

Wünschen Sie die Zusendung detaillierter Unterlagen zu dieser Immobilie benötigen wir bitte Ihre vollständigen Kontaktdaten. Ihre Daten werden nicht an Dritte weitergegeben und nach den Bestimmungen des Datenschutzgesetzes streng vertraulich behandelt.

Finden Sie uns unter: www.immobilien-moertl.at, https://www.facebook.com/ImmobilienMoertl/ und https://www.instagram.com/immobilien.moertl/

IMMOBILIEN MÖRTL - Wir verkaufen Ihre Immobilie in Wien und NÖ!
https://www.immobilien-moertl.at/1182743/Immobilienverkauf

Fragen Sie unverbindlich Ihr Finanzierungsmodell an: https://www.immobilien-moertl.at/finanzierung
Angaben gemäß gesetzlichem Erfordernis:
Heizwärmebedarf: 119.2 kWh/(m²a)
Klasse Heizwärmebedarf: D
Faktor Gesamtenergieeffizienz: 1.96
Klasse Faktor Gesamtenergieeffizienz: D
Beschreibung weiterlesen

Energieeffizienz

HWB Klasse:
D
fGEE:
1,96
fGEE Klasse:
D
Energieausweisart:
Energiebedarfs-ausweis
Harald Bittermann

Harald Bittermann

Immobilien Mörtl - Anton Mörtl OG

Lade...

Fotomix

Wohnzimmer W1 Wohnzimmer W1 Küche W1 Schlafzimmer W1 Bad W1 Zimmer W2 Jugendzimmer W2 Küche W2 Grundriss