NEU - Eigentumswohnung | Stadt. Land. Fluss. | 2 - Zimmer Wohntraum - Top 4/20

Wohnung zum Kauf in 1220 Wien - Kaufpreis: 362.000 € / Objektnummer: 00220000710010
Ausstattung: Fußbodenheizung
IMG_2336
IMG_2338
IMG_2339
IMG_2343
IMG_2341
IMG_2345
IMG_2335
IMG_2342
IMG_2344
IMG_2334
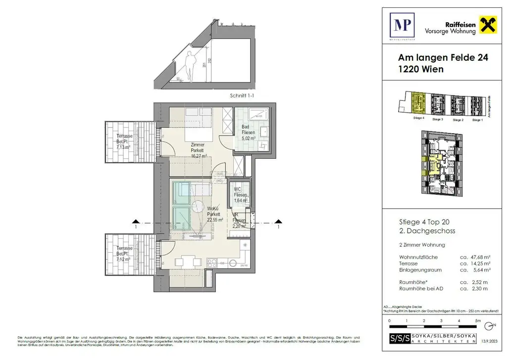
Top 20 Stiege 4

Preisinformationen

Kaufpreis:
362.000 €
Kaufpreis/m²
6.408,00 €

Fakten

Objektnummer:
00220000710010
Objekttyp:
Wohnung
Wohnfläche:
47,68 m²
Zimmer:
2
Stockwerk:
3
Verfügbarkeit:
Verfügbar

Beschreibung

Eigennutzer: Am Langen Felde 24, 1220 Wien


Entdecken Sie Ihr Traumzuhause in einer der attraktivsten Wohngegenden Wiens! "Am Langen Felde 24" im 22. Wiener Gemeindebezirk bietet nicht nur eine ideale Kombination aus urbanem Leben und Natur, sondern setzt auch neue Maßstäbe in puncto Nachhaltigkeit und Wohnqualität. Dieses einzigartige Projekt ist für Eigennutzer konzipiert, die Wert auf eine hochwertige Ausstattung, eine hervorragende Lage sowie eine ausgezeichnete öffentliche Verkehrsanbindung legen.


Einzigartige Lage:

Direkt an der Schnittstelle zwischen der belebten Stadt und der beruhigenden Natur gelegen, bietet dieses Projekt den perfekten Rückzugsort. In der unmittelbaren Nähe befinden sich die Alte Donau und die grüne Lobau, die mit ihren Badeplätzen, Rad- und Wanderrouten für eine ausgeglichene Work-Life-Balance sorgen. Das Projekt ist zudem nur wenige Schritte von den Blumengärten Hirschstetten entfernt, was den zukünftigen Bewohnern eine Vielzahl an Freizeitgestaltungsmöglichkeiten bietet.


Hervorragende Anbindung:

Die optimale Verkehrsanbindung durch die U-Bahn Linie U1, die Straßenbahnlinie 26 sowie die Buslinien 22A und 24A garantieren eine schnelle Verbindung in die Innenstadt und zum Donauzentrum, dem größten Einkaufs- und Entertainmentcenter Wiens. Das Projekt profitiert außerdem von der Nähe zum Einkaufszentrum „K1“ am Kagraner Platz, wodurch alle Bedürfnisse des täglichen Bedarfs gedeckt sind.


Nachhaltiges Wohnen:

Ein Vorzertifikat in Gold von der Österreichischen Gesellschaft für nachhaltige Immobilienwirtschaft (ÖGNI) unterstreicht das Engagement für Nachhaltigkeit und Energieeffizienz. Ziel ist es, nach der Fertigstellung ein Zertifikat in Gold oder höher zu erlangen, um den Eigennutzern ein umweltfreundliches und zukunftsorientiertes Wohnen zu ermöglichen.


Kostentransparenz:

Die ausgewiesenen Preise verstehen sich als Bruttokaufpreise exklusive aller gesetzlichen Nebenkosten. Dazu zählen 3,5% Grunderwerbsteuer vom Gesamt-Kaufpreis, 1,1% Grundbucheintragungsgebühr vom Gesamt-Kaufpreis und das Treuhandentgelt inklusive Vertragserrichtungsentgelt in Höhe von 1,5% vom Gesamt-Kaufpreis (zzgl. USt und Barauslagen). Für den Hauptwohnsitzerwerb in einem neu erworbenen Eigenheim entfallen von Juli 2024 bis Juli 2026 die Grundbuch- und Pfandrechtseintragungsgebühren bis zu einem Wert von 500.000 Euro (für übersteigenden Beträge ist die Gebühr zu entrichten).


Dieses Projekt bietet eine einmalige Gelegenheit für alle, die nach einem Zuhause suchen, das sowohl den Geist der Großstadt als auch die Ruhe der Natur einfängt. "Am Langen Felde 24" ist mehr als nur eine Adresse – es ist ein Ort, an dem Sie Ihr ideales Leben gestalten können.

Beschreibung weiterlesen

Energieeffizienz

HWB:
25 kWh/(m²*a)
HWB Klasse:
A
fGEE:
0,71
fGEE Klasse:
A
Energieausweis Ausstellungsdatum:
31.03.2022
Ausstellung:
ab dem 1.5.2014

Grundriss

Raiffeisen Eigentum Wohnung

Raiffeisen Eigentum Wohnung

Raiffeisen Vorsorge Wohnung GmbH

Lade...

Fotomix

IMG_2336 IMG_2338 IMG_2339 IMG_2343 IMG_2341 IMG_2345 IMG_2335 IMG_2342 IMG_2344 IMG_2334