NEU - Ein Haus wie ein Versprechen – großzügig, stillvoll, überraschend anders

Haus zum Kauf in 6850 Dornbirn / Objektnummer: 6259
Ausstattung: Garage Parkplatz Außenparkplatz

Preisinformationen

Provision:
3.00 %

Fakten

Objektnummer:
6259
Objekttyp:
Haus
Keller Fläche:
165 m²
Wohnfläche:
311 m²
Grundstücksfläche:
502 m²
Zimmer:
4
Baujahr:
1998
Verfügbarkeit:
Verfügbar

Beschreibung

+ Gästezimmer mit eigenem Badezimmer
+ Sauna
+ Offener Kamin im Wohnbereich
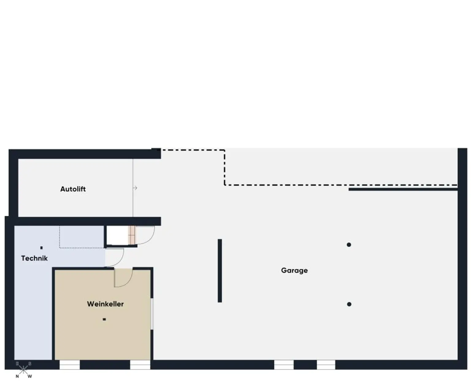
+ Außenparkplatz für 3 Autos
+ Garage im Untergeschoss für 5 Autos
+ Autolift mit ca. 16 m²
+ Unterkellert
+ Ausgebauter Weinkeller

Ein Haus, das Eindruck hinterlässt

Manche Immobilien erzählen Geschichten. Diese hier beginnt mit einem leisen Staunen – und endet mit dem Gefühl, angekommen zu sein.
Diese außergewöhnliche Doppelhaushälfte in Dornbirn ist kein gewöhnliches Zuhause, sondern ein Ort für Menschen, die Raum nicht nur messen, sondern erleben möchten. Großzügig geschnitten, mit einer beeindruckenden Nutzfläche, entfaltet sich hier ein Wohngefühl, das Freiheit neu definiert.
Schon beim Eintreten spürt man: Dieses Haus denkt weiter. Offene Wohnbereiche, ein Kamin für stimmungsvolle Abende und Rückzugsorte, die Ruhe schenken. Die Küche als Herzstück, der Wohnbereich als Bühne des Lebens.
Im Obergeschoss wartet pure Privatsphäre – mit Ankleide, lichtdurchflutetem Schlafzimmer und stilvollen Bädern. Ergänzt wird das Ensemble durch ein Büro, Gästezimmer und feine Details, die den Alltag veredeln.
Doch die wahren Überraschungen liegen oft verborgen: ein eigener Weinkeller für genussvolle Momente, eine Sauna für entspannte Stunden und eine beeindruckende Garage mit Platz für bis zu fünf Fahrzeuge – ergänzt durch weitere Außenstellplätze.
Die Lage? Ruhig, sonnig, und dennoch perfekt angebunden. Natur und Stadt verschmelzen hier zu einer seltenen Symbiose.
Dieses Haus ist kein Kompromiss. Es ist eine Entscheidung – für Stil, Raum und ein Leben mit Charakter.
- 3,5% Grunderwerbsteuer
- 1,1% Grundbuchseintragung (entfällt bis € 500.000,00)*
- 3,0% Vermittlungsprovision zzgl. 20% MwSt.
- Vertragserrichtungskosten
- Beglaubigungskosten + Barauslagen

*Für Detailinformationen stehen wir Ihnen gerne zur Verfügung.
Angaben gemäß gesetzlichem Erfordernis:
Heizwärmebedarf: 46.0 kWh/(m²a)
Klasse Heizwärmebedarf: B
Faktor Gesamtenergieeffizienz: 0.91
Klasse Faktor Gesamtenergieeffizienz: B
Beschreibung weiterlesen

Energieeffizienz

HWB:
46 kWh/(m²*a)
HWB Klasse:
B
fGEE:
0,91
fGEE Klasse:
B
Energieausweisart:
Energiebedarfs-ausweis

Lageplan

6850 Dornbirn | Dornbirn

Lade...
Reinhard Götze

Reinhard Götze

RE/MAX Immowest GmbH

Lade...

Fotomix

Hausansicht Hausansicht Essbereich Essbereich Küche Küche Küche Wohnbereich Wohnbereich Kamin Stiegenaufgang Garten/Terrasse Garten/Terrasse Garten Schlafzimmer Schlafzimmer Badezimmer Badezimmer Badezimmer Flur Waschküche Büro Gästezimmer Garage Autolift Autolift/Eingangsbereich Ansicht Adressplan Lageplan Flächenwidmungsplan Grundriss ohne Maßstab / Unte Grundriss ohne Maßstab Unterg Grundriss ohne Maßstab / Erdg Grundriss ohne Maßstab / Ober