NEU - EIN MIETTRAUM: ZWEIZIMMERWOHNUNG IN GRÜNRUHELAGE MIT GROSSER LOGGIA

Wohnung zur Miete in 1170 Wien - Gesamtmiete: 1.195,99 € / Objektnummer: 1618
Ausstattung: Barrierefrei Boden Fahrstuhl Gäste-WC Kabel/Satelliten-TV Zentralheizung Loggia

Preisinformationen

Gesamtmiete:
1.195,99 € / Monat
Betriebskosten netto:
139,75 € / Monat
Heizkosten netto:
37,35 €
Umsatzsteuer:
106,12 €
Provision:
Gemäß Erstauftraggeberprinzip bezahlt der Abgeber die Provision.

Fakten

Objektnummer:
1618
Objekttyp:
Wohnung
Loggia:
1
Keller Fläche:
8 m²
Wohnfläche:
55 m²
Loggia Fläche:
10 m²
Nutzfläche:
65 m²
Zimmer:
2
Badezimmer:
1
Toilette:
1
Baujahr:
2008
Neubau:
Ja
Verfügbarkeit:
Verfügbar
Verfügbar ab:
Juli 2026

Beschreibung

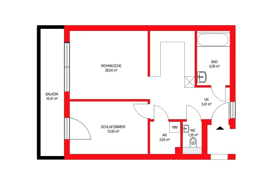
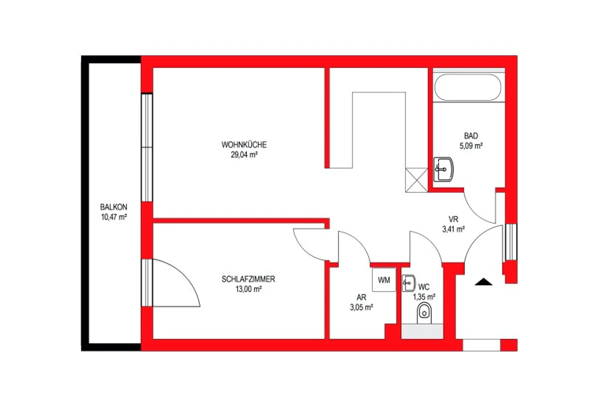
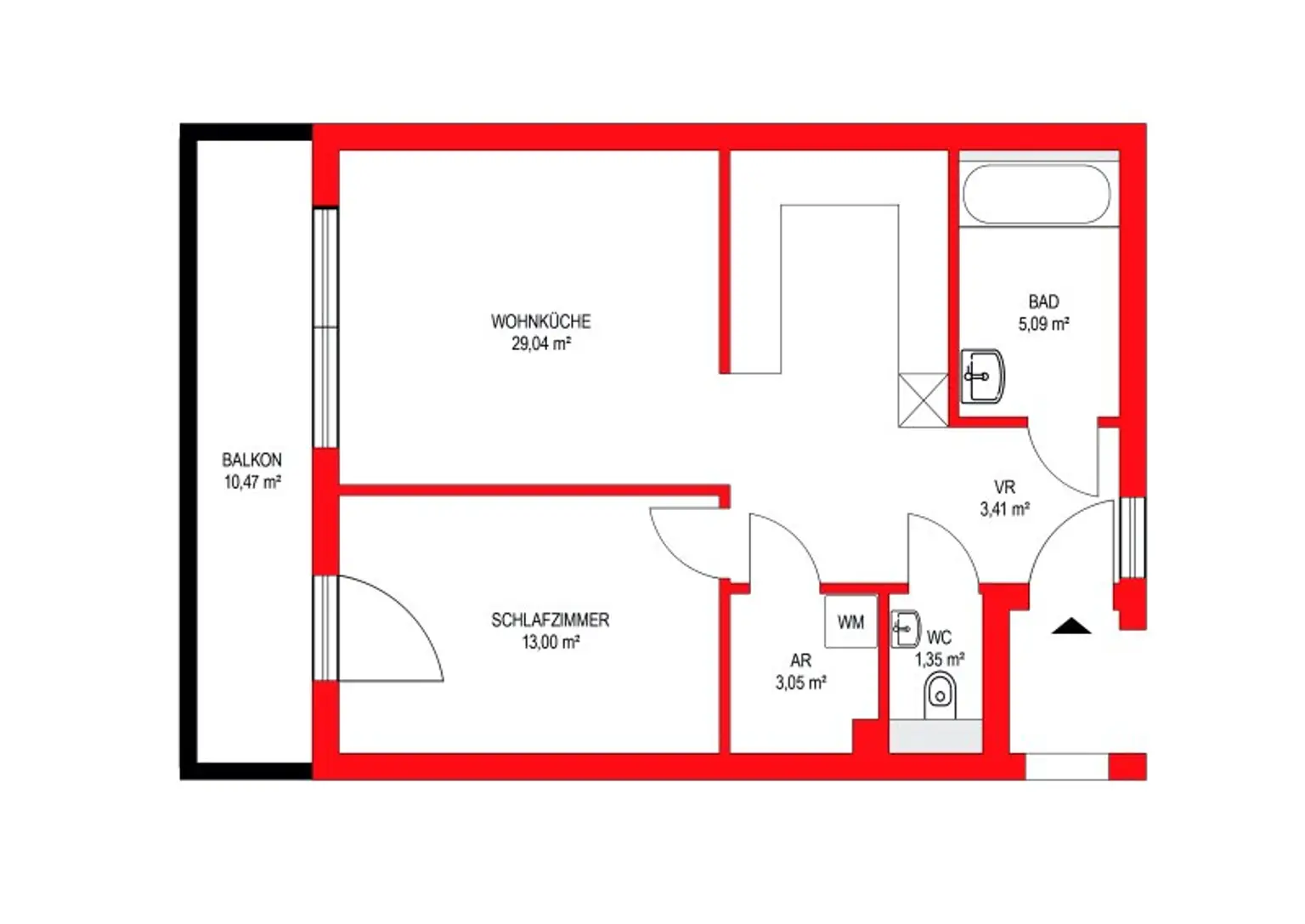
Diese attraktive 2-Zimmer-Etagenwohnung bietet auf großzügigen 55 m² modernen Wohnkomfort kombiniert mit einer hervorragenden Lage am Stadtrand der Metropole Wiens.

Die Wohnung besticht durch ihre gut durchdachte Raumaufteilung, die ein gemütliches Wohnzimmer mit Zugang auf die Loggia, ein Schlafzimmer, ebenfalls mit Zugang auf die großzügige Loggias  sowie eine praktische offene Küche umfasst. Besonders hervorzuheben ist die einladende Loggia, die Ihnen an sonnigen Tagen einen wunderbaren Ort zum Entspannen und Genießen der frischen Luft bietet.

Ein modernes, sehr schön verfliestes Badezimmer, in ebenso nobel verfliestes getrenntes WC, ein Abstellraum mit Waschmaschinenanschluß sowie ein großer Lagerraum mit Steckdose und eigenem Licht, vervollständigen das tolle Gesamtpaket.

Die monatliche Miete von 1.152,21 € bietet Ihnen ein hervorragendes Preis-Leistungs-Verhältnis für eine Wohnung in dieser begehrten Lage und mit dieser Ausstattung - die Wohnung ist teilmöbliert - Details dazu können besprochen werden.

Gerne können Sie sich bei einer Besichtigung selbst ein Bild dieses attraktiven Wohnangebots im 17. Bezirk machen. Sie werden erkennen, dass Sie mit der ANmietung dieser Wohnung ein sehr komfortables, urbanes Leben mit allen Annehmlichkeiten in nächster Nähe, erwerben.

 

Mit einer monatlichen Acontozahlung von rund € 50,00.- sind auch die Kosten für Warmwasser ud Heizung abgedeckt.

Insgesamt kommt keine Mehrwertsteuer zur Verrechnung!

 

RECHTLICHER HINWEIS:
Im Hinblick auf die geltende Gesetzeslage weisen wir darauf hin, dass für unser Tätigwerden für jeden Interessenten (vollständige Anbietung, Besichtigungen und sonstige Dienstleistungen) der Abschluss eines Maklervertrages die unbedingte Grundlage darstellt.

INFOS & BESICHTIGUNGEN:
Für Informationen und Besichtigungen steht Ihnen Herr Mag. Michael Moser unter +43 699 15152424 [tel:+4369915152424] oder +43 1 877 2222 [tel:+4318772222] gerne zur Verfügung.

INFORMATION FÜR KONSUMENTEN:
1. Dieses Objekt wird von einem konzessionierten Immobilienmaklerunternehmen vermarktet. Im Falle der Anmietung oder des Ankaufs fällt eine Vermittlungsprovision an.
2. Der Makler ist kraft bestehenden Geschäftsgebrauchs für beide Vertragspartner des abzuschließenden Geschäfts tätig (Doppelmakler).
3. Wir weisen auf wirtschaftliches Naheverhältnis zwischen unserem Unternehmen und der Vermieterseite hin.

POST SCRIPTUM:
Wir sind auf Miet- und Eigentumsobjekte, sowie Grundstücke im 13. Bezirk spezialisiert, vermitteln allerdings selbstverständlich auch Wohnimmobilien im gesamten Großraum Wien!
Wenn Sie beim Verkauf Ihrer Immobilie auf Ihre RECHTSSICHERHEIT großen Wert legen und Ihr Makler hinsichtlich seiner fachlichen Kompetenz die Nr. 1 sein muss, setzen Sie auf unser Know-how sowie Kontakte zu den richtigen Käufern und sichern Sie sich Ihren Erfolg durch unsere Qualitätsarbeit, starke Spezialisierung und 30-jährige Erfahrung.

Der Immobilienmakler erklärt, dass er – entgegen dem in der Immobilienwirtschaft üblichen Geschäftsgebrauch des Doppelmaklers – einseitig nur für den Vermieter tätig ist.

Infrastruktur / Entfernungen

Gesundheit
Arzt <500m
Apotheke <500m
Klinik <2.000m
Krankenhaus <1.500m

Kinder & Schulen
Schule <2.000m
Kindergarten <500m
Universität <1.500m
Höhere Schule <3.000m

Nahversorgung
Supermarkt <500m
Bäckerei <500m
Einkaufszentrum <2.000m

Sonstige
Geldautomat <2.000m
Bank <2.000m
Post <500m
Polizei <2.500m

Verkehr
Bus <500m
Straßenbahn <500m
U-Bahn <2.500m
Bahnhof <2.500m
Autobahnanschluss <5.500m

Angaben Entfernung Luftlinie / Quelle: OpenStreetMap
Beschreibung weiterlesen

Lage und Verkehrsanbindung

Endstation Strassenbahnlinie 43 - Nähe Neuwaldegger Bad
In unmittelbarer Umgebung finden Sie Arzt, Apotheke, Kindergarten, Supermarkt, Bäckerei, Post sowie Bus- und Straßenbahnverbindungen – perfekte Infrastruktur für Ihren Alltag.

Neuwaldegger Bad / Endstation Straßenbahn 43

Energieeffizienz

HWB:
42 kWh/(m²*a)
HWB Klasse:
B
Energieausweisart:
Energiebedarfs-ausweis

Grundriss

Lageplan

1170 Wien | Wien 17., Hernals

Lade...
Michael Moser

Michael Moser
Immobilienmakler

KLEIN&PARTNER Immobilen GmbH

Lade...

Fotomix

Bild 1 Bild 2 Bild 3 Bild 4 Bild 5 Bild 6 Bild 7 Bild 8 Bild 9 Bild 10 Bild 11 Bild 12 Bild 13 Bild 14 Bild 15