NEU - Einfamilienhaus / Bungalow in absoluter Ruhelage auf 308 m2 großen Eigengrund, Nähe U2 Station Aspern Nord / Seestadt!

Haus zum Kauf in 1220 Wien - Kaufpreis: 429.000 € / Objektnummer: 5579
Ausstattung: Bad Möbliert Rollladen Klimaanlage Parkplatz Außenparkplatz Abstellraum Garten WG geeignet

Preisinformationen

Kaufpreis:
429.000 €
Kaufpreis/m²
1.392,86 €
Betriebskosten netto:
120,00 € / Monat
Vermittlungsprovision:
Ja
Provision:
3% des Kaufpreises zzgl. 20% USt.

Fakten

Objektnummer:
5579
Objekttyp:
Haus
Wohnfläche:
88,27 m²
Grundstücksfläche:
308 m²
Gartenfläche:
208 m²
Zimmer:
3
Badezimmer:
1
Toilette:
1
Baujahr:
1985
Neubau:
Ja
Verfügbarkeit:
Verfügbar
Verfügbar ab:
Oktober 2026

Beschreibung

Zum Verkauf gelangt ein Einfamilienhaus/Bungalow in Holzriegelbauweise auf einem 308 m² großen Eigengrund in Neuessling. Das Haus wurde 1986 errichtet und verfügt über eine Wohnfläche von 88,27 m². Die Liegenschaft befindet sich in ruhiger Grünlage und dennoch in ausgezeichneter Anbindung – die U2-Station Aspern Nord ist in nur ca. 650 Metern erreichbar.

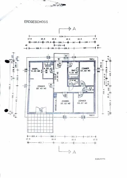
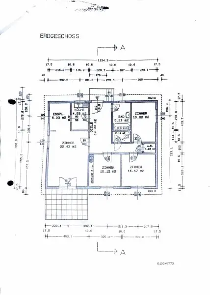
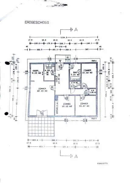
Das Haus teilt sich wie folgt auf: 

- ein großzügiger 14,99 m2 großer Eingangsbereich von dem aus alle Räume separat begehbar sind
- ein 22 m2 großer Wohnbereich mit Zugang zur Wintergarten 
- eine 4,93 m2 große möbliere Küche
- ein 6,03 m2 großer Essbereich
- ein 11,17 m2 großes Schlafzimmer
- ein 10,12 m2 großes Schlaf- oder Arbeitszimmer
- ein weiteres 10,02 m2 großes Schlafzimmer 
- ein Badezimmer mit Dusche 
- ein separates WC
- ein Abstellraum 

 

Auf dem Grundstück stehen Ihnen ein überdachter und beheizter Swimmingpool, ein Whirlpool sowie eine Infrarotkabine zur Verfügung.

Im Jahr 2023 wurde eine Photovoltaikanlage mit einer Leistung von 7,1 kW installiert. Die Beheizung des Hauses erfolgt mittels Infrarotheizung und Kamin. Für heiße Sommertage sorgt eine Klimaanlage für angenehme Temperaturen. Die Warmwasseraufbereitung erfolgt elektrisch. Ein Autoabstellplatz befindet sich direkt vor dem Haus, zudem gibt es einen weiteren Parkplatz.

Die Immobilie befindet sich in einer ruhigen Einfamilienhaussiedlung und überzeugt zugleich durch eine sehr gute Anbindung an das öffentliche Verkehrsnetz mit den Linien U2, 95A, 97A und S80.

Die Übergabe des Hauses erfolgt im Oktober 2026, das Objekt wird mit sämtlichen Möbeln übergeben!

 

Kontakt und Besichtigungstermine

Für weitere Fragen oder einen unverbindlichen und kostenlosen Besichtigungstermin kontaktieren Sie gleich Herr Bigus unter 0699 / 1247 15 92 [tel:069912471592] oder per E-Mail bigus@immobilienquartier.at.

Ich bitte um schriftliche Anfragen mit vollständiger Angabe Ihrer Kontaktdaten ( Name, Adresse, Telefonnummer).

 

 

Infrastruktur / Entfernungen

Gesundheit
Arzt <1.500m
Apotheke <1.500m
Klinik <2.000m
Krankenhaus <3.500m

Kinder & Schulen
Schule <1.000m
Kindergarten <1.000m
Universität <2.000m
Höhere Schule <2.000m

Nahversorgung
Supermarkt <1.000m
Bäckerei <1.500m
Einkaufszentrum <3.000m

Sonstige
Geldautomat <1.000m
Bank <1.500m
Post <1.500m
Polizei <2.000m

Verkehr
Bus <500m
U-Bahn <500m
Straßenbahn <500m
Bahnhof <500m
Autobahnanschluss <3.000m

Angaben Entfernung Luftlinie / Quelle: OpenStreetMap
Beschreibung weiterlesen

Lage und Verkehrsanbindung

650 Meter zur U2 Station Aspern Nord / Seestadt

U2 Station Aspern Nord

Energieeffizienz

HWB:
155 kWh/(m²*a)
HWB Klasse:
E
fGEE:
3,07
fGEE Klasse:
E
Energieausweisart:
Energiebedarfs-ausweis
Gültig bis:
30.05.2036

Grundrisse

Lageplan

1220 Wien | Wien 22., Donaustadt

Lade...
Peter Bigus

Peter Bigus
Geschäftsführung

Immobilienquartier

Lade...

Fotomix

Bild 1 Bild 2 Bild 3 Bild 4 Bild 5 Bild 6 Bild 7 Bild 8 Bild 9 Bild 10 Bild 11 Bild 12 Bild 13 Bild 14 Bild 15 Bild 16 Bild 17 Bild 18 Bild 19 Bild 20 Bild 21 Bild 22 Bild 23 Bild 24 Bild 25 Bild 26