Eingezäuntes Baugrundstück mit Garage in Klagenfurt - St Veiterstrasse - Tessendorf - Ehrental - Berthold-Schwarz- Strasse ohne Bau Zwang : 508 m² für nur 99.500 € – Garage & Stellplatz inklusive!

Grundstück zum Kauf in 9020 Klagenfurt am Wörthersee - Kaufpreis: 99.500 € / Objektnummer: 2229

Preisinformationen

Kaufpreis:
99.500 €

Fakten

Objektnummer:
2229
Objekttyp:
Grundstück
Grundstücksfläche:
508 m²
Verfügbarkeit:
Verfügbar

Beschreibung

Willkommen in Klagenfurt am Wörthersee, einer der schönsten Städte Kärntens, wo sich Natur und urbanes Leben harmonisch vereinen! Hier haben Sie die Möglichkeit, ein erstklassiges Grundstück zu erwerben, das Ihnen nicht nur Raum für individuelle Gestaltung bietet, sondern auch einen perfekten Ausgangspunkt für Ihr zukünftiges Zuhause darstellt.

Das Grundstück mit einer großzügigen Fläche von 508 m² befindet sich in einer ruhigen und dennoch zentralen Lage, die Ihnen sämtliche Annehmlichkeiten des alltäglichen Lebens in unmittelbarer Nähe bietet. Für nur 99.500,00 € können Sie hier den Grundstein für Ihr Traumhaus legen. Stellen Sie sich vor, wie Sie inmitten dieser malerischen Kulisse wohnen und leben – das ist Lebensqualität auf höchstem Niveau!

Eine Garage sowie zwei Stellplätze bieten Ihnen ausreichend Platz für Ihr Fahrzeug und machen die Anfahrt zu Ihrem neuen Zuhause besonders komfortabel. Die Verkehrsanbindung könnte nicht besser sein: Dank der Nähe zu Busverbindungen und dem Autobahnanschluss sind Sie schnell und unkompliziert in Klagenfurt oder in den umliegenden Regionen unterwegs. Ob für den täglichen Arbeitsweg oder für einen spontanen Ausflug an den Wörthersee – hier sind Sie immer gut angebunden.

Familienfreundlichkeit wird in dieser Gegend großgeschrieben. In unmittelbarer Nähe befindet sich ein Kindergarten, der Ihren kleinen Entdeckern eine sichere und liebevolle Umgebung bietet. So können Sie sicherstellen, dass Ihre Kinder in einer aufgeschlossenen und fördernden Umgebung aufwachsen.

Dieses Grundstück ist nicht nur ein Platz zum Wohnen, sondern auch ein Ort, an dem Träume wahr werden können. Egal, ob Sie ein modernes Einfamilienhaus, ein gemütliches Doppelhaus oder eine charmante Stadtvilla planen – hier sind Ihrer Kreativität keine Grenzen gesetzt. Lassen Sie sich von der atemberaubenden Natur inspirieren und schaffen Sie sich Ihr eigenes kleines Paradies.

Nutzen Sie die Gelegenheit, Teil dieser lebenswerten Gemeinde zu werden und investieren Sie in Ihre Zukunft. Klagenfurt am Wörthersee wird nicht nur Ihr neues Zuhause sein, sondern auch ein Ort, an dem Erinnerungen geschaffen werden. Zögern Sie nicht – dieses Angebot wird nicht lange auf sich warten lassen. Kontaktieren Sie uns noch heute für weitere Informationen und einen Besichtigungstermin! Ihr Traum von einem eigenen Zuhause könnte schon bald Realität werden.

Sollten Sie eine Finanzierung benötigen, vereinbaren wir gerne einen unverbindlichen Beratungstermin bei unseren Spezialisten der Volksbank Kärnten eG für Sie.  

Wir bitten Sie aus rechtlichen Gründen, Anfragen zur Liegenschaft ausschließlich per E-Mail an georg.fischer@vbktn.at zu stellen.

Info unter:
VB Realitäten, Georg Fischer,

Handy: 0650 77 41 541 [tel:06507741541]
T: +43 (0)5 09 09-8011 [tel:+430509098011]
F: +43 (0)5 09 09-9011 [tel:+430509099011]
M: georg.fischer@vbktn.at

Besuchen Sie uns auf unserer Homepage unter www.volksbank-kaernten.at/immobilien [http://www.volksbank-kaernten.at/immobilie]

Noch nichts gefunden? Wir informieren Sie über geeignete Immobilienangebote noch vor allen anderen.
Legen Sie jetzt Ihren individuellen Suchagenten unter folgendem Link an. Wir schicken Ihnen passende Immobilien exklusiv zu.
Suchagent anlegen [https://vb-realitaeten.service.immo/registrieren/de]

Der Vermittler ist als Doppelmakler tätig.

Infrastruktur / Entfernungen

Gesundheit
Arzt 2.000m
Apotheke 2.000m
Krankenhaus 3.500m
Klinik 3.500m

Kinder & Schulen
Schule 2.000m
Kindergarten 1.000m
Universität 4.500m
Höhere Schule 5.000m

Nahversorgung
Supermarkt 1.500m
Bäckerei 2.000m
Einkaufszentrum 4.500m

Sonstige
Bank 2.500m
Geldautomat 2.000m
Post 3.500m
Polizei 2.000m

Verkehr
Bus 500m
Autobahnanschluss 500m
Bahnhof 2.000m
Flughafen 3.500m
Straßenbahn 7.500m

Angaben Entfernung Luftlinie / Quelle: OpenStreetMap
Beschreibung weiterlesen

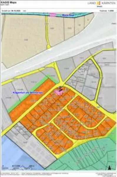
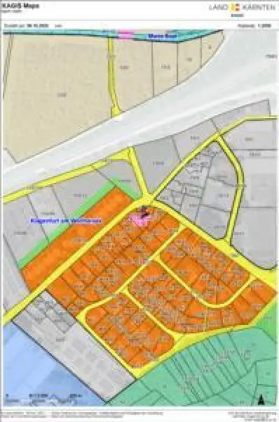
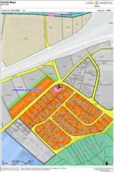
Lage und Verkehrsanbindung

Dieses attraktive Grundstück liegt in der begehrten Region 9020 Klagenfurt am Wörthersee, umgeben von einer malerischen Landschaft. Die Lage bietet eine optimale Anbindung an den öffentlichen Nahverkehr, mit einem Bus in unmittelbarer Nähe. Familienfreundliche Einrichtungen wie ein Kindergarten sind ebenfalls schnell erreichbar. Zudem profitieren Sie von einem schnellen Zugang zur Autobahn, was die Erreichbarkeit der umliegenden Städte erleichtert. Ideal für Ihr neues Zuhause!

Grundrisse

Georg Fischer

Georg Fischer

VB Realitäten Gesellschaft m.b.H.

Lade...

Fotomix

Bild 1 Bild 2

Lageplan