NEU - Einzigartig - 1.537 m² ebener Grund - 173 m² Wohnfläche - Ausbau- und Erweiterungspotential - Teilungsplan vorhanden - Nähe Therme Oberlaa

Haus zum Kauf in 1100 Wien - Kaufpreis: 1.348.000 € / Objektnummer: 3366
Ausstattung: Boden Bad Rollladen Klimaanlage Alarmanlage Carport Parkplatz Terrasse

Preisinformationen

Kaufpreis:
1.348.000 €
Vermittlungsprovision:
Ja
Provision:
3% des Kaufpreises zzgl. 20% USt.

Fakten

Objektnummer:
3366
Objekttyp:
Haus
Terrasse:
1
Wohnfläche:
139,62 m²
Grundstücksfläche:
1.537 m²
Gesamtfläche:
173,13 m²
Badezimmer:
2
Toilette:
2
Baujahr:
1898
Altbau:
Ja
Zustand:
Teilsaniert
Verfügbarkeit:
Verfügbar

Beschreibung

Dieses charmante Einfamilienhaus in Unterlaa vereint historischen Charakter mit modernen Erweiterungen – ein seltenes Gesamtpaket auf einem großzügigen ebenen Grundstück von rund 1.537 m².

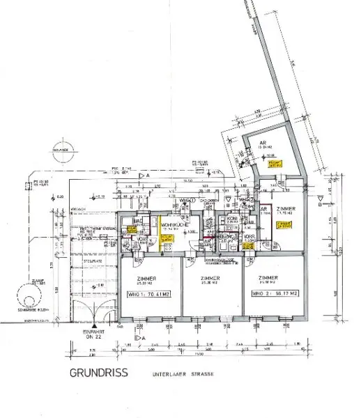
Das Haus wurde Ende des 19. Jahrhunderts in massiver Ziegelbauweise errichtet und über die Jahre mehrfach erweitert und modernisiert. Zwei Wohneinheiten mit insgesamt rund 140 m² Wohnfläche sowie ein großzügiger, 2017 errichteter Wintergarten (ca. 33 m²) mit Glasfront, Fußbodenheizung, Klimaanlage und außenliegenden elektrischen Jalousien bieten modernen Wohnkomfort mit viel Licht und Raum.

Beide Wohneinheiten verfügen über je ein Badezimmer mit WC sowie über unterschiedliche Bodenbeläge (Melan/Laminat, Fliesen, Teppich). Mehrere Räume – ebenso wie der Wintergarten – sind klimatisiert. Der Altbestand ist mit klassischen Holzkastenfenstern ausgestattet mit außenliegenden Jalousien (zusätzlicher Sonnenschutz), während die Zubauten moderne Alufenster mit Isolierverglasung besitzen. Die beiden Wohneinheiten verfügen über getrennte Stromzähler. 

Der Garten bietet viel Platz und Ruhe, ergänzt durch eine Gartenhütte und ein Doppel-Carport mit zwei elektrischen Rolltoren in Lamellenbauweise. Bitte beachten Sie, dass manche Bilder KI generiert sind und nur zur besseren Veranschaulichung dienen.

Zusätzlich attraktiv: Eine Grundstücksteilung ist möglich und wurde bereits durch einen Geometer berechnet – ideal für Käufer mit Entwicklungsplänen oder zusätzlichem Platzbedarf. 

Unser Service

Unser Anspruch ist es immer besser zu sein als die Konkurrenz. Deshalb dürfen wir Sie darüber informieren, dass wir für alle Ihre Wünsche vor, während und nach dem Immobilienkauf bzw. der Vermietung die richtigen Kooperationspartner haben. Angefangen von der Finanzierung über die Versicherung, Umzugsservice, Entrümpelungen, Renovierungsarbeiten, Reinigungsservice, Energieausweis, Rechtsanwälte und Notare. Sie sehen, unsere Tätigkeit ist nicht mit der erfolgreichen Vermittlung zu Ende. 

_If you need an English exposé, don't hesitate to contact us, we will be pleased to send further information!_

-------------

Wir weisen daraufhin hin, dass wir entsprechend dem Geschäftsgebrauch von Immobilienmaklern als Doppelmakler tätig sind und sowohl Ihre als auch die Interessen der Verkäuferseite/Vermieterseite vertreten.

Aufgrund der geltenden EU-Verbraucherschutzgesetze sind wir als Immobilienmakler verpflichtet, Verbraucher – private Interessenten - über ihre Rücktrittsrechte aufzuklären (14-tägige Rücktrittsfrist nach § 11 FAGG ). Wir können daher nur Anfragen mit vollständigen Kontaktdaten (Name, Adresse, Handy, E-Mail) bearbeiten. 

Gerne werden wir auch vor Ablauf dieser 14-tägigen Rücktrittsfrist für Sie tätig, wenn Sie uns gesetzeskonform (FAGG) und ausdrücklich (am besten per E-Mail) dazu auffordern. Wenn keine Kauf-/ Mietvereinbarung zustande kommt ist unsere Tätigkeit für Sie selbstverständlich kostenfrei.

 

Noch nichts gefunden? Wir informieren Sie über geeignete Immobilienangebote noch vor allen anderen.
Legen Sie jetzt Ihren individuellen Suchagenten unter folgendem Link an. Wir schicken Ihnen passende Immobilien exklusiv vorab zu.
Suchagent anlegen [https://aps-immobilien.service.immo/registrieren/de] - https://aps-immobilien.service.immo/registrieren/de

Hinweis gemäß Energieausweisvorlagegesetz: Ein Energieausweis wurde vom Eigentümer bzw. Verkäufer, nach unserer Aufklärung über die generell geltende Vorlagepflicht, sowie Aufforderung zu seiner Erstellung noch nicht vorgelegt. Daher gilt zumindest eine dem Alter und der Art des Gebäudes entsprechende Gesamtenergieeffizienz als vereinbart. Wir übernehmen keinerlei Gewähr oder Haftung für die tatsächliche Energieeffizienz der angebotenen Immobilie.

Der Vermittler ist als Doppelmakler tätig.

Infrastruktur / Entfernungen

Gesundheit
Arzt 1.500m
Apotheke 1.500m
Klinik 4.500m
Krankenhaus 6.500m

Kinder & Schulen
Schule 1.000m
Kindergarten 1.000m
Universität 3.500m
Höhere Schule 6.000m

Nahversorgung
Supermarkt 1.500m
Bäckerei 1.500m
Einkaufszentrum 3.000m

Sonstige
Geldautomat 3.000m
Bank 1.500m
Post 1.500m
Polizei 1.500m

Verkehr
Bus 500m
U-Bahn 1.500m
Straßenbahn 3.500m
Bahnhof 1.500m
Autobahnanschluss 2.000m

Angaben Entfernung Luftlinie / Quelle: OpenStreetMap
Beschreibung weiterlesen

Grundriss

Lageplan

1100 Wien | Wien 10., Favoriten

Lade...
Christian Klein

Christian Klein
Geschäftsführer

APS Immobilien GmbH

Anrufen
Lade...

Fotomix

Bild 1 Bild 2 Bild 3 Bild 4 Bild 5 Bild 6 Bild 7 Bild 8 Bild 9 Bild 10 Bild 11 Bild 12 Bild 13 Bild 14 Bild 15 Bild 16