NEU - Einzigartiges PENTHOUSE in den Weinbergen - Ein EXKLUSIVES REFUGIUM mit unvergleichlichem PANORAMA - in Reiteregg/St. Bartholomä - West-Steiermark! Provisionsfrei! Sofort verfügbar!

Wohnung zur Miete in 8151 Hitzendorf - Gesamtmiete: 3.454,83 € / Objektnummer: 290551
Ausstattung: Barrierefrei Boden Fahrstuhl Bad Gäste-WC Rollladen Kabel/Satelliten-TV Carport Parkplatz Außenparkplatz Abstellraum Fußbodenheizung Terrasse

Preisinformationen

Gesamtmiete:
3.454,83 € / Monat
Betriebskosten netto:
369,50 € / Monat
Heizkosten netto:
184,75 €
Umsatzsteuer:
295,60 €
Kaution:
10.364,49 €
Provision:
Gemäß Erstauftraggeberprinzip bezahlt der Abgeber die Provision.

Fakten

Objektnummer:
290551
Objekttyp:
Wohnung
Terrasse:
3
Wohnfläche:
184,75 m²
Zimmer:
4
Badezimmer:
2
Toilette:
3
Stockwerk:
2
Baujahr:
2025
Neubau:
Ja
Zustand:
Erstbezug
Verfügbarkeit:
Verfügbar

Beschreibung

EINZIGARTIGES PENTHOUSE IN DEN WEINBERGEN - EIN EXKLUSIVES REFUGIUM MIT UNVERGLEICHLICHEM PANORAMA - IN REITEREGG/ST. BARTHOLOMÄ - WEST-STEIERMARK! PROVISIONSFREI! SOFORT VERFÜGBAR!

 

Die Geschichte der Loaker Familie, die 2019 ihr 40-zigstes Jubiläum im dynamischen Weinbau feierten, zogen 2009, neben Südtirol, auch in die Weststeiermark. Dort kreierte die Familie tolle Weißweine, einen Schilcher und einen tiefroten Zweigelt welche sie in ihr Programm aufnahmen. Das Klima in der Weststeiermark, im sogenannten Vulkanland, begünstigt die Schaffung toller Weine. Das Weingut Loaker wurde nun völlig entkernt, modernisiert und umgebaut und nun befinden sich Luxuswohnungen, welche gemietet oder gekauft werden können und ein Sterne-Lokal in diesem Gebäude. Das außergewöhnliche Penthouse verfügt über eine ganze Menge an Sonderausstattung und bietet Ihnen eine gigantische Außenfläche, wo Sie den unglaublich schönen Blick auf die Weinberge genießen können!  Dieses traumhafte Penthouse bietet auf einer Wohnfläche von 184,76 m² ein luxuriöses Wohnerlebnis der Extraklasse. Umgeben von den sanften Hügeln der Weststeiermark genießen Sie nicht nur den unvergleichlichen Blick auf die malerischen Weinberge, sondern auch eine Vielzahl exklusiver Details, die dieses Anwesen zu einem wahren Meisterwerk machen.

PENTHOUSE - TOP 12 - REITEREGG 28, 8113 ST. BARTHOLOMÄ:

HIGHLIGHTS:

* ein gigantisch großer Wohnbereich, es erwartet Sie ein offener, lichtdurchfluteter Wohn-, Ess- und Kochbereich
* drei großzügige Terrassen mit gigantischen Außenflächen, sind ideal geeignet für entspannte Stunden im Freien, oder luxuriöse Dinnerpartys
* luxuriöse Schlafzimmer, jedes der drei Schlafzimmer überzeugt durch großzügige Flächen und einer hochwertigen Ausstattung 
* das Master-Schlafzimmer bietet zusätzlich ein edles Badezimmer mit Dusche, WC & Fenster
* die exquisiten Bäder, bieten Ihnen höchsten Komfort mit Marmorfließen und Granitböden
* eine Speisekammer, befindet sich direkt neben der Küche
* ein Wirtschaftsraum mit Waschmaschinenanschluss
* die absolute SENSATION sind die niedrigen Stromkosten/Heizkosten - Erdwärme und Fotovoltaikanlage
* exklusive Annehmlichkeiten, elektrische Jalousien, exklusive Parkettböden, exklusive Türen und eine moderne Küchenausstattung 
* ein Gäste-WC ist vorhanden
* Insektenschutz ist überall vorhanden
* Deckenkühlung vorhanden
* die Raumhöhe ist außer der Norm
* ein Lift, direkt vor dem Penthouse
* keine weitere Wohnung in der Etage
* unvergleichlicher Luxus, diese Penthouse-Wohnung im Herzen der Weinberge ist der Inbegriff von Exklusivität
* im Erdgeschoss des vollständig renovierten Gebäudes befindet sich ein renommiertes Restaurant, dessen kulinarische Köstlichkeiten direkt zu Ihnen nach oben geliefert werden können – pure Lebensqualität

    

DETAILS: 

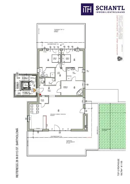
* WNF von 184,76m²        
* insg. gibt es 3 Terrassen mit einer Gesamtaußenfläche von unglaublichen 281,08m² (Hauptterrasse, eine Küchenterrasse, die sich für eine Outdoor-Kitchen eignet und eine Spa-Terrasse)
* Wohnen/Essen/Kochen auf gigantischen 84,92m², der durch seine Raumhöhe von 3,06 m und eine Deckenkühlung für absoluten Komfort sorgt
* vom Wohnbereich sieht man direkt auf die Weinberge, der Ausgang zu den beiden Hauptterrassen mit unglaublichen 97,75m²
* von zwei Schlafzimmern kann man auf die gigantische 125,38m² Spa-Terrasse gelangen 
* die Küche ist mit einer Trennwand vom Wohn/Ess -Bereich abgetrennt, vom Küchenfenster aus sieht man auf das Schlösschen der Firma Payer, einem weltbekannten Rasierapparat Hersteller
* eine angrenzende Speisekammer von 3,09m² bietet Platz für Diverses
* ein Schlafzimmer mit 16,55m² und angrenzendem Luxusbad mit 10,80m², mit Badewanne, Dusche, WC und Fenster
* ein weiteres Schlafzimmer mit 18,53m², ebenfalls mit Zugang zum angrenzenden Luxusbad mit 10,80m² mit Badewanne, Dusche, WC und Fenster und Zugang zur SPA-Terrasse mit 57,95m²
* ein drittes Schlafzimmer mit 18,73m² und eigenem Badezimmer mit 7,69m², Fenster, Dusche und WC und ebenfalls Zugang zur SPA-Terrasse mit 57,95m²
* ein Vorraum mit 8,03m²
* einen Wirtschaftsraum mit 3,65m² und Waschmaschinenanschluss
* die Diele mit 10,86m²
* ein Gäste-WC mit 1,90m²
* der LIFT ist gegenüber der Penthouse-Wohnungstür Top 12 und einem eigens abgesperrten Teil des Stiegenhauses

 

FACTS:

* Kaution: € 10.364,48
* Nutzfläche: 184,76m² 
* Heizkosten im Mietpreis inkludiert!
* 2 Carportstellplätze inkludiert, weitere anmietbar mit € 50,00 netto
* freie Parkplätze für Besucher vorhanden
* die Stromkosten / Monat  werden durch die FOTOVOLTAIK- ANLAGE (am Dach) extrem reduziert!
* aktuelle Möblierung dient zur besseren Vorstellung, ist nicht inkludiert und wird nach Absprache wieder entfernt!!!

 

GESAMTMIETE BRUTTO: CA. € 3.454,83
(INKLUSIVE CARPORTS, INKLUSIVE HEIZUNG, OHNE STROM)

 

Es gibt auch die Möglichkeit die Wohnung zu kaufen, oder mittels Optionskauf zu erwerben ( je nach Anzahlung, verringert sich die monatliche Miete)

 

Worauf noch warten?

Vereinbaren Sie noch heute eine Besichtigung oder eine persönliche Beratung mit uns!
Sie wollen Ihre Immobilie verkaufen? Dann sind Sie bei uns goldrichtig!
Wir sind gerne für Sie da und unterstützen Sie unverbindlich bei der Bewertung Ihrer Immobilie. Mit viel Sorgfalt stellen wir Ihnen alle wichtigen Informationen und Unterlagen zusammen, damit Sie die besten Entscheidungen treffen können.
In Kooperation mit unserer SFI Vermögenstreuhand begleiten wir Sie bei der Verwirklichung Ihres Traumobjekts und unterstützen Sie beim nachhaltigen Vermögensaufbau. Mit unseren erfahrenen Experten sorgen wir dafür, dass Sie die
besten Konditionen erhalten – damit Ihre Träume Wirklichkeit werden!

www.schantl-ith.at [http://www.schantl-ith.at]in Kooperation mit sfi-invest.com [http://sfi-invest.com]

Die Angaben über das angebotene Objekt erfolgen mit der Sorgfalt eines ordentlichen Immobilienmaklers; für die Richtigkeit solcher Angaben, die auf Informationen der über das Objekt Verfügungsberechtigten beruhen, wird keine Gewähr geleistet!

 

 

 

Wir weisen darauf hin, dass zwischen dem Vermittler und dem zu vermittelnden Dritten ein familiäres oder wirtschaftliches Naheverhältnis besteht.

Der Immobilienmakler erklärt, dass er – entgegen dem in der Immobilienwirtschaft üblichen Geschäftsgebrauch des Doppelmaklers – einseitig nur für den Vermieter tätig ist.

Infrastruktur / Entfernungen

Gesundheit
Arzt 2.000m
Apotheke 7.750m
Krankenhaus 9.500m
Klinik 8.500m

Kinder & Schulen
Schule 2.000m
Kindergarten 6.000m

Nahversorgung
Supermarkt 2.250m
Bäckerei 3.250m
Einkaufszentrum 8.750m

Sonstige
Bank 2.000m
Geldautomat 2.000m
Post 6.750m
Polizei 6.000m

Verkehr
Bus 250m
Straßenbahn 9.250m
Bahnhof 6.500m
Autobahnanschluss 8.500m

Angaben Entfernung Luftlinie / Quelle: OpenStreetMap
Beschreibung weiterlesen

Lage und Verkehrsanbindung

Die Gemeinde Sankt Bartholomä liegt auf einer Seehöhe von 499 Metern in der Weststeiermark im westlichen Teil des Bezirkes Graz-Umgebung, an der Grenze zum Bezirk Voitsberg. Die Entfernung zur steirischen Landeshauptstadt Graz beträgt etwa 15 km. In Sankt Bartholomä befindet sich eine Volksschule und die Gemeinde besitzt eine gute öffentliche Verkehrsverbindung und Infrastruktur, Apotheke und Supermärkte sind ebenfalls in wenigen Fahrminuten erreichbar.

Buschenschank Droner

Energieeffizienz

HWB:
27,7 kWh/(m²*a)
HWB Klasse:
B
fGEE:
0,71
fGEE Klasse:
A
Energieausweisart:
Energiebedarfs-ausweis

Grundrisse

Lageplan

8151 Hitzendorf | Voitsberg

Lade...
Jacqueline Fellner, MBA

Jacqueline Fellner, MBA
Immobilienvermittlung

Schantl ITH Immobilientreuhand GmbH

Anrufen
Lade...

Fotomix

Bild 1 Bild 2 Bild 3 Bild 4 Bild 5 Bild 6 Bild 7 Bild 8 Bild 9 Bild 10 Bild 11 Bild 12 Bild 13 Bild 14 Bild 15 Bild 16 Bild 17 Bild 18 Bild 19 Bild 20 Bild 21 Bild 22 Bild 23 Bild 24 Bild 25 Bild 26 Bild 27 Bild 28 Bild 29 Bild 30 Bild 31 Bild 32 Bild 33 Bild 34 Bild 35 Bild 36 Bild 37 Bild 38 Bild 39 Bild 40