Elegante Loft-Wohnung mit Stuckdecken & Intarsientüren

Wohnung zur Miete in 4600 Wels - Gesamtmiete: 738,06 € / Objektnummer: 1939/132778
Ausstattung: Fahrstuhl Zentralheizung
P6114113
P6114109
Titelbild
P6114111
P6114108
P6114114
P6114116
P6114117
P6114124
P6114125
P6114127
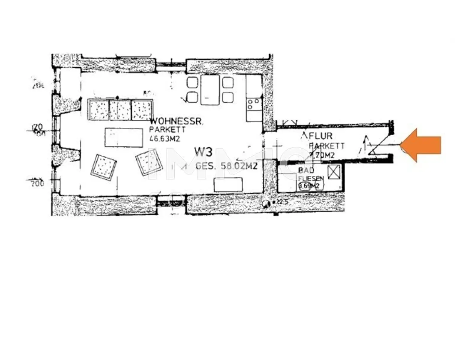
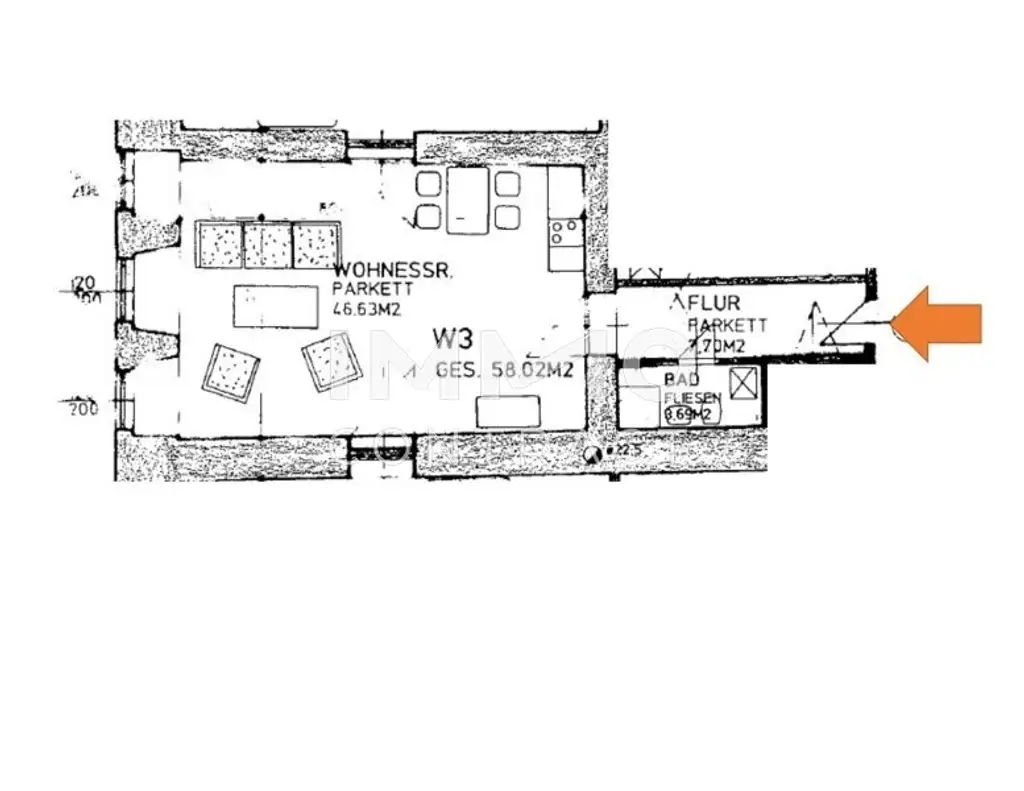
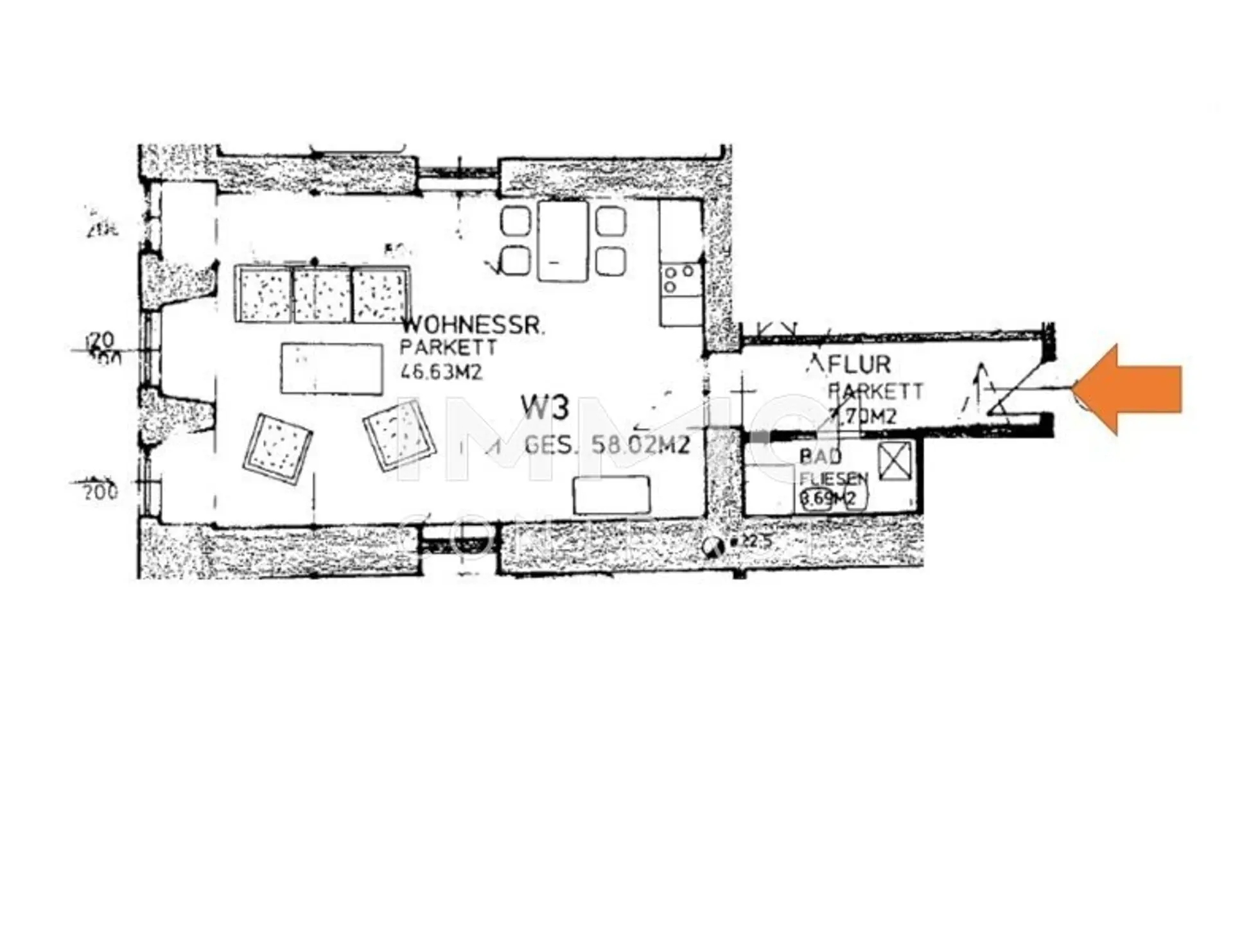
Plan

Preisinformationen

Gesamtmiete:
738,06 € / Monat
Betriebskosten netto:
147,59 € / Monat
Heizkosten netto:
33,00 €
Umsatzsteuer:
63,50 €
Kaution:
2.096,00
Provision:
Gemäß Erstauftraggeberprinzip bezahlt der Abgeber die Provision.

Fakten

Objektnummer:
1939/132778
Objekttyp:
Wohnung
Wohnfläche:
58,02 m²
Zimmer:
1
Verfügbarkeit:
Verfügbar

Beschreibung

Diese Wohnung befindet sich in einem historischen Gebäude mitten am Welser Stadtplatz.

Das Objekt ist mit schönen Parkettböden ausgestattet und verfügt über eine moderne Einbauküche. Diese ist fixer Bestandteil der Wohnung und somit ohne Ablöse.

Die Wohnung befindet sich im 1. Obergeschoss und ist auch mittels Lift erreichbar.

Raumaufteilung: Vorraum, Badezimmer / WC, Wohn-Ess-Schlafbereich mit moderner Küche.
 

Der Immobilienmakler erklärt, dass er – entgegen dem in der Immobilienwirtschaft üblichen Geschäftsgebrauch des Doppelmaklers – einseitig nur für den Vermieter tätig ist.

Infrastruktur / Entfernungen

Gesundheit
Arzt <500m
Apotheke <500m
Klinik <1.000m
Krankenhaus <2.000m

Kinder & Schulen
Schule <500m
Kindergarten <1.000m
Universität <500m

Nahversorgung
Supermarkt <500m
Bäckerei <500m
Einkaufszentrum <3.000m

Sonstige
Bank <500m
Geldautomat <500m
Post <500m
Polizei <500m

Verkehr
Bus <500m
Autobahnanschluss <3.500m
Bahnhof <1.000m
Flughafen <3.000m

Angaben Entfernung Luftlinie / Quelle: OpenStreetMap
Beschreibung weiterlesen

Lage und Verkehrsanbindung

Stadtplatz Wels

Energieeffizienz

HWB:
70,8 kWh/(m²*a)
HWB Klasse:
C
fGEE:
1,71
fGEE Klasse:
C
Energieausweisart:
Energiebedarfs-ausweis
Gültig bis:
24.03.2032

Grundriss

Lageplan

4600 Wels | Wels (Stadt)

Lade...
Anna Valentina Blecha

Anna Valentina Blecha
Immobilienfachberaterin

IMMOcontract Immobilien Vermittlung GmbH

Lade...

Fotomix

P6114113 P6114109 Titelbild P6114111 P6114108 P6114114 P6114116 P6114117 P6114124 P6114125 P6114127