NEU - Elegantes Geschäftslokal mit Auslagenfronten in Top-Lage! (Welser Innenstadt)

Einzelhandel zur Miete in 4600 Wels - Gesamtmiete: 2.554,12 € / Objektnummer: 272
Ausstattung: Barrierefrei
200_-385947835
200_1385289022
200_-1709121957
200_810212051

Preisinformationen

Gesamtmiete:
2.554,12 € / Monat
Gesamtmiete (exkl. USt.):
2.128,43 € / Monat
Betriebskosten netto:
398,00 € / Monat
Umsatzsteuer:
425,69 €

Fakten

Objektnummer:
272
Objekttyp:
Einzelhandel
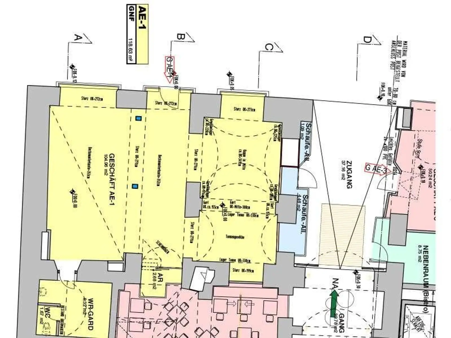
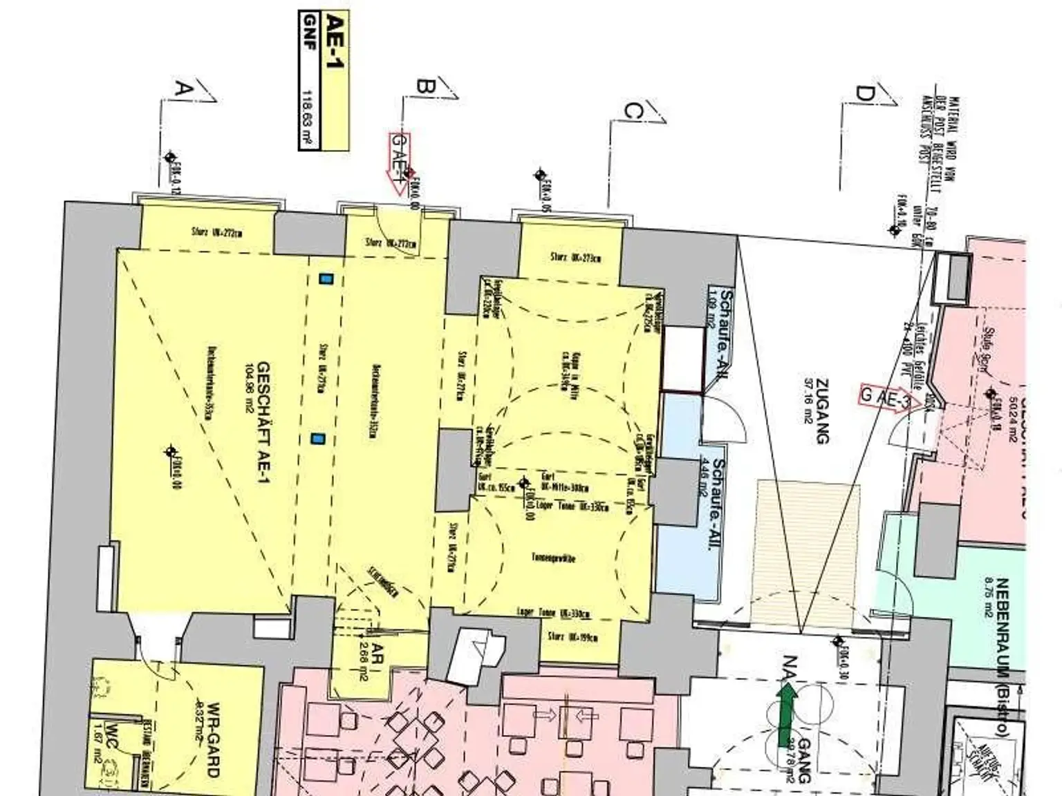
Nutzfläche:
128 m²
Toilette:
1
Altbau:
Ja
Zustand:
Gepflegt
Verfügbarkeit:
Verfügbar

Beschreibung

Objektbeschreibung:
Durch die attraktive und stark frequentierte Lage bietet das Geschäftslokal optimale Vor-aussetzungen für den Einzelhandel. Die Hausfassade ist mit dunklem Holz verkleidet und verleiht dem Geschäftslokal einen besonderen Charakter sowie Eleganz. Mit einer Fläche von 128,18 m² eignet sich das Mietobjekt für unterschiedlichste Bereiche. Ob Modestore, Boutique, Bistro, Snack-Bar, Juwelier oder Optiker – die Möglichkeiten sind vielfältig. Zwei Auslagen, an denen ganztägig sehr viele Fußgänger vorbeispazieren, bieten sich ideal für Produktplatzierungen an. Großzügige Fensterglasflächen sorgen für ausreichend Tageslicht und eine angenehme Einkaufsatmosphäre.

Weitere Informationen erhalten Sie gerne telefonisch oder Sie vereinbaren gleich einen persönlichen Besichtigungstermin.

Lage
Das Geschäftslokal befindet sich im Herzen der Welser Innenstadt, in einer attraktiven und prominenten Lage. In unmittelbarer Nähe befinden sich Restaurants, Bushaltestellen, Parkplätze, Bars und jede Menge Einkaufsmöglichkeiten.

Nettomiete: € 13,50 je m² / Monat + Ust
Betriebskosten: € 398,- / Monat + Ust

Sonstiges
Kaution
Keine Ablösen.
Keine Vermittlungsprovisionen.

Kontakt Eigentümer:
Stephania Pfeffer
Kfm. Angestellte | Verwaltung
OVILAVA - "PROJEKT" - Management Gesellschaft m.b.H. & Co KG
Kalkofenstraße 25 | A-4600 Wels
Tel.: +43 (7242) 245-234
Mobil: +43 660 1520785
E-Mail: S.Pfeffer@ovilava.net

Weitere Informationen, wie eventuelle Förderungs- und Kooperationsmöglichkeiten in der Stadt Wels erhalten Sie gerne auch im Wirtschaftsservice Wels unter Tel. 07242 677 22 40 bzw. unter office@wels.at
Angaben gemäß gesetzlichem Erfordernis:
Miete 1730,43 zzgl 20% USt.
Betriebskosten 398 zzgl 20% USt.
Umsatzsteuer 425,69
---------------------------------
Gesamtbetrag 2554,12
Beschreibung weiterlesen

Dokumente

Lageplan

4600 Wels | Wels (Stadt)

Lade...
Heinz Jellmair

Heinz Jellmair

Wirtschaftsservice Wels - Wels Marketing und Touristik GmbH

Lade...

Fotomix

200_-385947835 200_1385289022 200_-1709121957 200_810212051