NEU - Erfolgreich geführtes Lokal inkl. Marketing-Konzept! 1A-FREQUENZ-LAGE in KAISERMÜHLEN !!!

Gastgewerbe zur Miete in 1220 Wien - Gesamtmiete: 1.407,00 € / Objektnummer: 7854
Fotos-auf-Anfrage
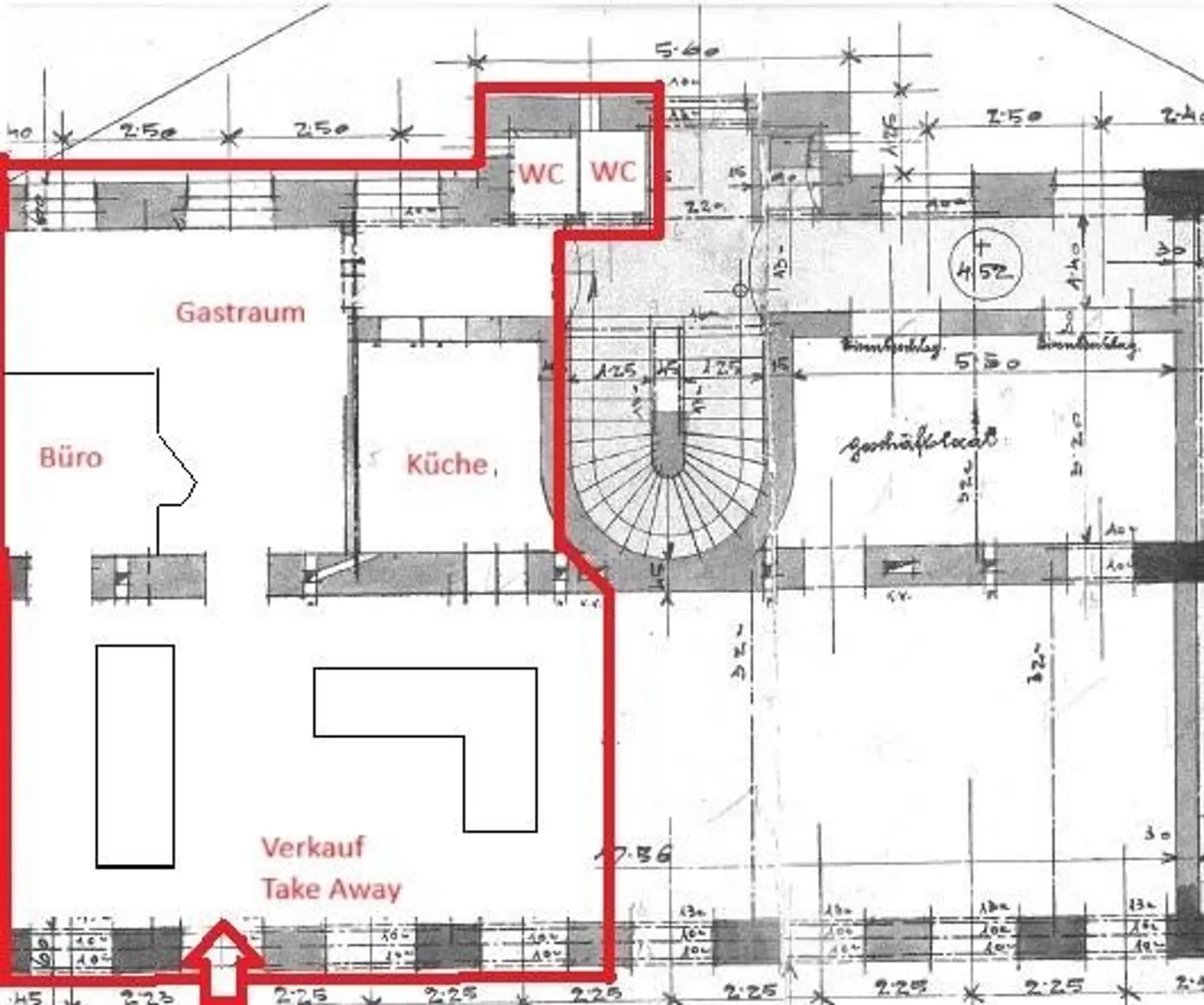
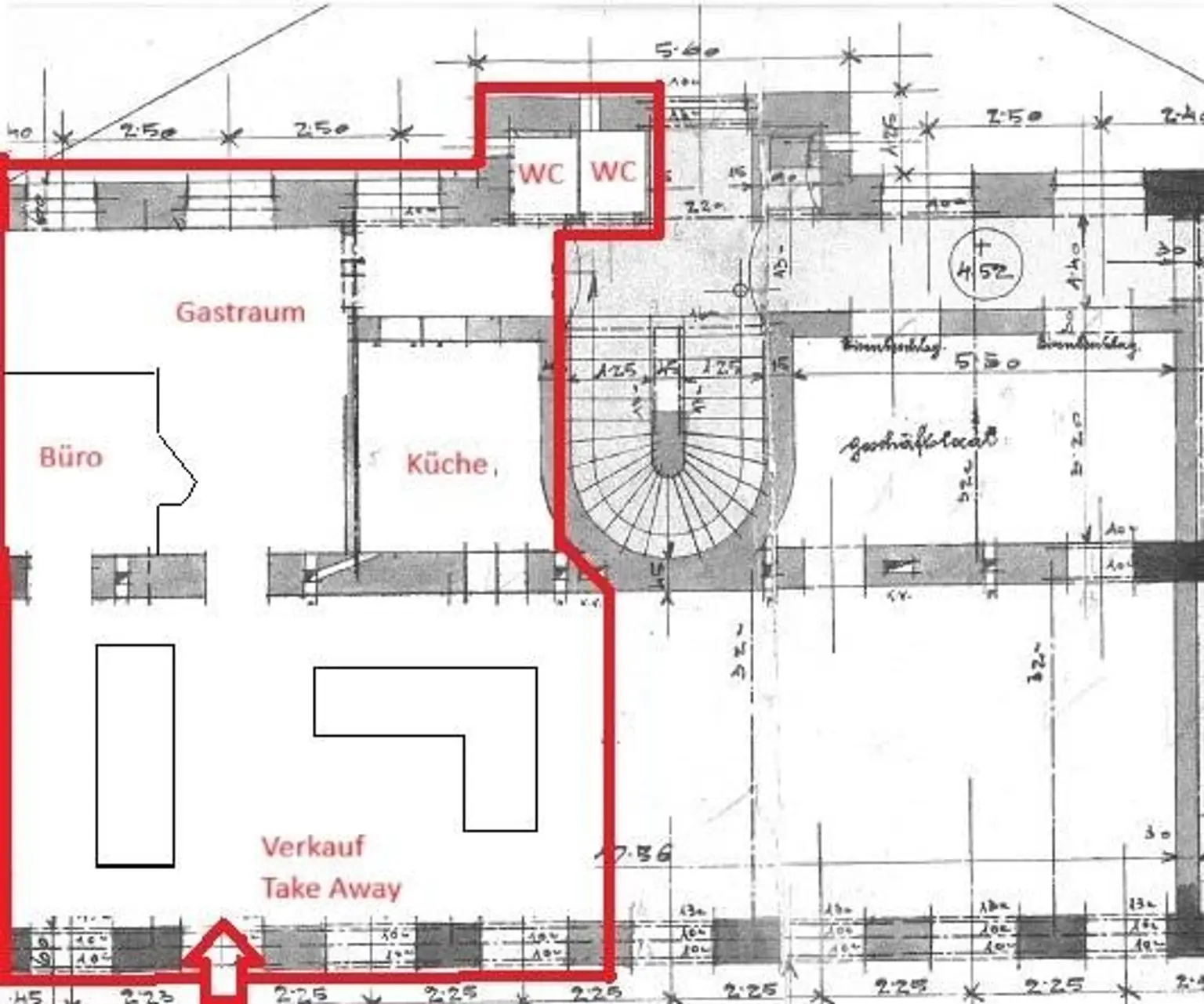
Skizze
IMMY Preisträger

Preisinformationen

Gesamtmiete:
1.407,00 € / Monat
Gesamtmiete (exkl. USt.):
1.172,50 € / Monat
Umsatzsteuer:
234,50 €
Kaution:
8.400,00 €

Fakten

Objektnummer:
7854
Objekttyp:
Gastgewerbe
Nutzfläche:
85 m²
Altbau:
Ja
Verfügbarkeit:
Verfügbar

Beschreibung

NEUER BETREIBER GESUCHT!!!
Top-gepflegtes, voll ausgestattetes LOKAL in guter FREQUENZLAGE!!!
Uneingeschränkte Betriebsanlagengenehmigung

35 Sitzplätze im Gastraum
Genehmigung für Schanigarten ist zeitnah zu erwarten. (Antrag bereits gestellt)

Die Übergabe an den neuen Betreiber erfolgt geordnet:

• inklusive Personalplan
• inklusive Marketingkonzept
• Top-Zustand

Informationen zu Umsatzzahlen erhalten Sie auf Anfrage.

RAUMAUFTEILUNG IN STICHWORTEN
• Verkaufsbereich (Take Away)
• Küche
• Gastraum
• Lager
• Büro
• WC Damen
• WC Herren
• WC / Garderobe Mitarbeiter
• Keller und Lager (mit Kühleinheit)

ZUSÄTZLICHE KOSTEN
• Wasser - wird direkt mit dem Energiedienstleister abgerechnet - aktuell ca. EUR 500 pro Jahr
• Strom / Gas - wird direkt mit dem Energiedienstleister abgerechnet - aktuell ca. EUR 600 pro Monat
• ggf. Internet, Versicherungen, o.Ä.

ERSTZAHLUNG
• 3 BMM Kaution
• 3 BMM Provision
• erste Monatsmiete im Voraus
• ABLÖSE € 195.000 für Möbel + komplette Küchenausstattung (hochwertig und teilweise neu) + Kundenstamm

BESONDERE HIGHLIGHTS DES OBJEKTS
• 1A Frequenzlage
• unbefristeter Mietvertrag
• Top-Zustand
• uneingeschränkte Betriebsanlagengenehmigung
• 35 Sitzplätze im Gastraum
• Genehmigung für Schanigarten ist zeitnah zu erwarten. (Antrag bereits gestellt)
• geordnete Übergabe
• inklusive Personalplan
• inklusive Marketingkonzept
• Parkplätze an der Straße

OPTIMALE ÖFFENTLICHE VERKEHRSANBINDUNG
• Autobus 92A, 92B
• U1 VIC

Für weitere Informationen und um einen Besichtigungstermin zu vereinbaren, stehe ich Ihnen sehr gerne zur Verfügung.

KONTAKT:
Frau Kerstin Fried
Mobil: +43 664 88 730 881
Email: kerstin.fried@hubner-immobilien.com
Angaben gemäß gesetzlichem Erfordernis:
Miete 1172,5 zzgl 20% USt.
Umsatzsteuer 234,5
---------------------------------
Gesamtbetrag 1407
Beschreibung weiterlesen
Kerstin Fried

Kerstin Fried

Hubner Immobilien GmbH

Anrufen
Lade...

Fotomix

Fotos-auf-Anfrage Skizze IMMY Preisträger