NEU - Erstbezug 2-Zimmer Eigentumswohnung mit Balkon!

Wohnung zum Kauf in 2440 Gramatneusiedl - Kaufpreis: 315.732 € / Objektnummer: 0001011329
Ausstattung: Fahrstuhl Bad Fahrradraum Etagenheizung Balkon Loggia
Visualisierung
upload_eaa76da4779d6d118dc4114a04c1991124042a2e_thumbnail_eaa76da4779d6d118dc4114a04c1991124042a2e
Baustelle seitlich
Baustelle vorne
Baustellenfoto
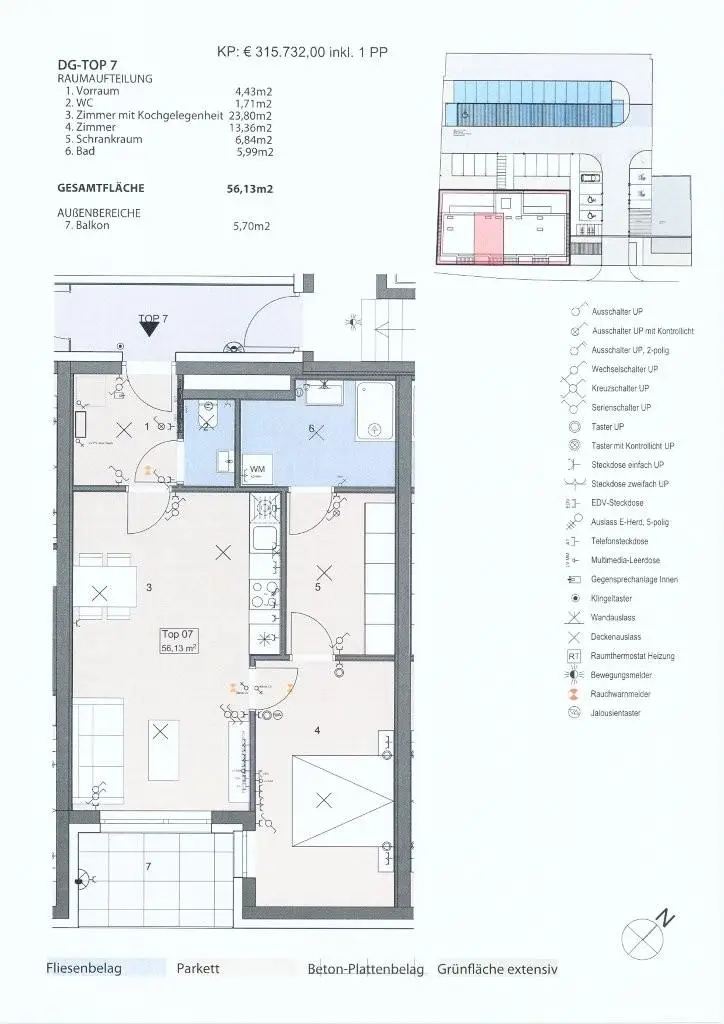
Grundriss Top 7
Ansichten
Grundriss Dachgeschoss und Obergeschoss

Preisinformationen

Kaufpreis:
315.732 €
Vermittlungsprovision:
Ja
Provision:
3% des Kaufpreises plus 20% USt.

Fakten

Objektnummer:
0001011329
Objekttyp:
Wohnung
Balkon:
1
Loggia:
1
Balkonfläche:
5,7 m²
Wohnfläche:
56,13 m²
Zimmer:
2
Badezimmer:
1
Toilette:
1
Baujahr:
2024
Verfügbarkeit:
Verfügbar

Beschreibung

Zum Verkauf steht eine moderne Eigentumswohnung im Erstbezug einer neu errichteten Wohnanlage mit Lift in Gramatneusiedl.


Die Wohnung überzeugt durch eine durchdachte Raumaufteilung, helle Wohnräume sowie einen großzügigen Außenbereich mit Balkon ( 5,70m²) und Grünflächen. Ein zugehöriger Parkplatz ist im Angebot inkludiert.


Mit einer Wohnfläche von ca. 56,13m² eignet sich die Wohnung ideal für Paare, kleine Familien.


Die Fertigstellung ist für August 2026 geplant.


Zögern Sie nicht und vereinbaren Sie noch heute einen Besichtigungstermin mit uns.


Wir freuen uns auf Ihren Anruf!

Beschreibung weiterlesen

Lage und Verkehrsanbindung

Gramatneusiedl besticht durch seine attraktive Lage inNiederösterreich, die eine perfekte Kombination aus ländlicher Idylle und urbaner Nähe bietet.Die Gemeinde liegt nur wenige Kilometer von Wien entfernt, was eine schnelle und bequeme Erreichbarkeit der Hauptstadt ermöglicht und somit ideale Voraussetzungen für Pendler oder Stadtliebhaber schafft. Das Freizeitangebot überzeugt durch die unmittelbare Nähe zum Neufeldersee, einem beliebten Naherholungsgebiet, das vielseitige Aktivitäten wie Schwimmen, Wandern, Radfahren und Wassersport anbietet. Zudem laden zahlreiche Rad- und Wanderwege in der Region zu naturnahen Ausflügen ein. Die Infrastruktur in Gramatneusiedl ist gut ausgebaut, mit Einkaufsmöglichkeiten, Schulen und medizinischerVersorgung in greifbarer Nähe. Die Verkehrsanbindung wird durch den öffentlichen Nahverkehr sowie gut ausgebaute Straßenverbindungen ergänzt, sodass man flexibel und komfortabel unterwegs ist. Diese gelungene Kombination macht Gramatneusiedl zu einem lebens- und liebenswerten Wohnort mit hohem Erholungswert.

Energieeffizienz

HWB:
28,4 kWh/(m²*a)
HWB Klasse:
B
fGEE:
0,64
fGEE Klasse:
A+
Energieausweis Ausstellungsdatum:
04.12.2024
Ausstellung:
ab dem 1.5.2014

Grundrisse

Walter Haider

Walter Haider

Raiffeisen Immobilien Vermittlung Ges.m.b.H

Lade...

Fotomix

Visualisierung upload_eaa76da4779d6d118dc4114a04c1991124042a2e_thumbnail_eaa76da4779d6d118dc4114a04c1991124042a2e Baustelle seitlich Baustelle vorne Baustellenfoto