NEU - ERSTBEZUG || BÜRO FÜR VERSCHIEDENE BRANCHEN || 78 M² || EINBAUKÜCHE, TERRASSE & GARTEN || NÄHE U3-STATION "OTTAKRING"

Immobilie zum Kauf in 1160 Wien - Kaufpreis: 349.000 € / Objektnummer: 54493
Ausstattung: Boden Fahrstuhl Bad Fahrradraum Fußbodenheizung Terrasse Garten

Preisinformationen

Kaufpreis:
349.000 €
Betriebskosten netto:
160,05 € / Monat
Vermittlungsprovision:
Ja
Provision:
3% des Kaufpreises zzgl. 20% USt.

Fakten

Objektnummer:
54493
Terrasse:
1
Nutzfläche:
78,46 m²
Bürofläche:
67,7 m²
Lagerfläche:
10,76 m²
Gartenfläche:
33,63 m²
Zimmer:
3
Badezimmer:
1
Toilette:
1
Baujahr:
2019
Neubau:
Ja
Zustand:
Erstbezug
Verfügbarkeit:
Verfügbar

Beschreibung

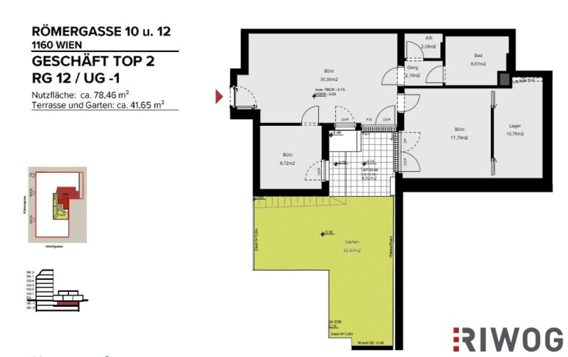
Zum Verkauf gelangt ein Büro in der Römergasse.

Die Büroräumlichkeiten befinden sich in einem im Jahr 2022 (Q4) erbauten, gepflegten Gebäude. Das Objekt umfasst insgesamt eine Nutzfläche von ca. 78,46 m² und besteht aus:

* großer Büroraum mit Küche
* 2 Büros
* 1 Badezimmer mit Dusche, Badewanne, WC und Waschmaschine
* 1 Lager
* 1 Abstellraum
* Terrasse & Garten

Sie haben die Möglichkeit, die Flächen individuell zu gestalten. Die Immobilie ist als Büro gewidmet und ist für Wohnzwecke nicht zulässig.

Die Möbel dienen für Ausstellungszwecke und sind nicht im Kaufpreis inkludiert. 

AUFTEILUNG: siehe Verkaufsplan

INFOS ZUR WOHNUNG

* NUTZFLÄCHE: ca. 78,46 m²
* ZIMMER: 3
* AUSRICHTUNG: SÜDWEST (komplett innenhofseitig)
* GESCHOSS: 1. UG
* BEZUGSFERTIG: ab sofort / nach Vereinbarung

HIGHLIGHTS:

* zentrale Lage
* U3 Ottakring nur 5 Minuten zu fuss entfernt
* Erstbezug
* optimaler Grundriss
* Eiche-Parkettboden und Feinsteinzeug-Beläge in den Nassräumen
* "Walk in" Dusche & Badewanne
* Einbauküche mit Markengeräten

 

Das Büro an der Ecke Römergasse/Arnethgasse liegt in einer ruhigen, grünen Wohngegend und ist sowohl aufgrund der ausgesprochen guten Anbindung an die öffentlichen Verkehrsmittel und der exzellenten Nahversorgungsmöglichkeiten, als auch durch die Nähe zum Naherholungsgebiet „Wilhelminenberg“ besonders attraktiv.

Sie benötigen nur einige Minuten zur U-Bahn Station "Ottakring" und 2 Gehminuten zur Straßenbahnlinie 44.

 

KAUFPREIS ANLEGER: € 349.000,-

KAUFPREIS EIGENNUTZER: € 375.000,-

Betriebskosten inkl. USt. € 238,24,-

PROVISION 3% zzgl. 20% Ust. vom Kaufpreis

Vertragserrichter/Treuhänder ist vom Verkäufer vorgegeben.

 

In Entsprechung des FAGG (Fern- und Auswärtsgeschäfte-Gesetz) und des VRUG (Verbraucherrechte-Richtlinie-Umsetzungsgesetz) ist es uns leider nur mehr möglich Termine nach Erhalt einer schriftliche Anfrage mit vollständigen Kontaktabgaben (Kontaktformular) zu vereinbaren, dies gilt ebenso für die Herausgabe relevanter Informationen wie z.B. der Lage. Sehr gerne sind wir auf diesem Wege bereit, uns um sämtliche Anliegen rasch und kompetent zu kümmern.

 

In Entsprechung des KschG wird auf eine Doppelmaklertätigkeit und auf ein wirtschaftliches Naheverhältnis hingewiesen.

Besuchen Sie auch unsere Homepage WWW.RIWOG.AT [http://www.riwog.at/] mit weiteren aktuellen TOP-Objekten! RIWOG - Real Estate Management GmbH Börsegasse 12, 1010 Wien www.riwog.at [http://www.riwog.at/]

Wir weisen darauf hin, dass zwischen dem Vermittler und dem zu vermittelnden Dritten ein familiäres oder wirtschaftliches Naheverhältnis besteht.

Der Vermittler ist als Doppelmakler tätig.

Infrastruktur / Entfernungen

Gesundheit
Arzt 500m
Apotheke 500m
Klinik 1.000m
Krankenhaus 500m

Kinder & Schulen
Schule 500m
Kindergarten 500m
Universität 1.500m
Höhere Schule 1.000m

Nahversorgung
Supermarkt 500m
Bäckerei 500m
Einkaufszentrum 1.000m

Sonstige
Geldautomat 500m
Bank 500m
Post 500m
Polizei 500m

Verkehr
Bus 500m
U-Bahn 500m
Straßenbahn 500m
Bahnhof 500m
Autobahnanschluss 5.000m

Angaben Entfernung Luftlinie / Quelle: OpenStreetMap
Beschreibung weiterlesen

Lage und Verkehrsanbindung

Ottakringer Straße / Thaliastraße

U6 Ottakring / Thaliastraße

Energieeffizienz

HWB:
31 kWh/(m²*a)
HWB Klasse:
B
fGEE:
0,73
fGEE Klasse:
A
Energieausweisart:
Energiebedarfs-ausweis
Gültig bis:
03.07.2029

Grundriss

Lageplan

1160 Wien | Wien 16., Ottakring

Lade...
Maximilian Michael Zillner, MBA

Maximilian Michael Zillner, MBA
Immobilienmakler

RIWOG Real Estate Management GmbH

Anrufen
Lade...

Fotomix

Bild 1 Bild 2 Bild 3 Bild 4 Bild 5 Bild 6 Bild 7 Bild 8 Bild 9 Bild 10 Bild 11 Bild 12