NEU - Erstbezug | Eckreihenhaus mit 160m² Garten bei Wien | inkl. 2 Stellplätzen | Provisionsfrei!

Haus zum Kauf in 1140 Wien - Kaufpreis: 675.000 € / Objektnummer: 141/84947
Ausstattung: Abstellraum Terrasse
14
6
Badeteich 1
5
1
2
3
4
7
8
9
10
Badeteich 2
11
12
13
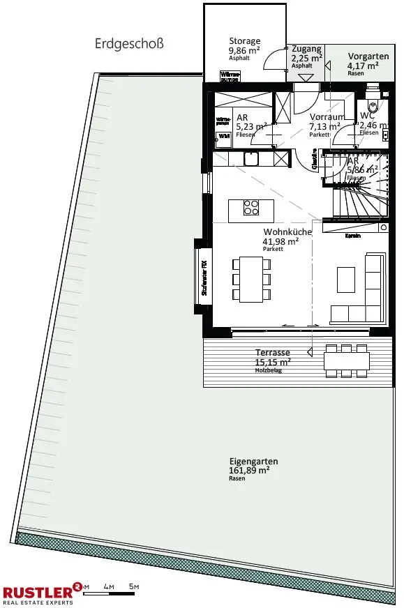
EG
1. und 2. OG
Lageplan
Lageplan Häuser

Preisinformationen

Kaufpreis:
675.000 €
Kaufpreis/m²
4.474,05 €
Betriebskosten netto:
391,55 € / Monat

Fakten

Objektnummer:
141/84947
Objekttyp:
Haus
Terrasse:
2
Wohnfläche:
150,87 m²
Zimmer:
5
Badezimmer:
2
Toilette:
3
Baujahr:
2025
Neubau:
Ja
Verfügbarkeit:
Verfügbar

Beschreibung

Allgemein:
Auf einem wunderschönem Grundstück im Herzen Mauerbachs kommen ab sofort 23 fertiggestellte Reihenhäuser zum Verkauf. Am westlichen Rand und nur wenige Minuten von der Wiener Stadtgrenze entfernt gelegen, grenzt es zudem unmittelbar an den Wienerwald. Bei der Balancierung von Freiflächen und bebauten Arealen wurde darauf geachtet, so viel wie möglich an Grün zu bewahren. Naturnähe, Ruhe und hohe Lebensqualität haben oberste Priorität. Die Zielsetzung war es, ein grünes Wohnidyll zu schaffen, in dem man das Leben genießen kann.
Um dieses Wohngefühl zu erzielen, war für uns besonders wichtig, dass sich die Architektur der einzelnen Häuser nahtlos in die Natur einfügt. Erreicht haben wir das unter anderem durch die teilweise Holzverkleidung der Gebäude und Begrünung der Dachflächen.

Eine Übersicht sämtlicher verfügbaren Häuser erhalten Sie selbstverständlich auf Anfrage!


Facts:
• Grundstücksgröße rund 17.000 m²
• 23 noch verfügbare Familienhäuser im Eigentum
• ab € 599.000,-
• ca. 150 m² Wohnfläche
• bis zu 350 m² Garten
• nachhaltiges und kostengünstiges Heizen und Kühlen mittels Luftwärmepumpe
• Badeteich, sowie Fitness- und Workout-Area
• je Haus 2 PKW-Stellplätze


Fertigstellung: Ende 2025


Ausstattung
Die Liebe zum Detail zieht sich durch alle Bereiche und basiert auf ausgewählten Materialien und hochwertigen Markenprodukten.
Elegante Parkettböden in allen Wohn- und Schlafräumen, Innentüren weiß matt mit Holzzarge bzw. Glastüren, großzügige Terrasse im Erdgeschoß mit Kaltwasseranschluss und Außenbeleuchtung, Terrasse im Dachgeschoß mit beeindruckender Aussicht, großformatige Fliesen (60 x 60 cm) in den Sanitärbereichen, Badewannen mit Markenarmaturen, bodenbündige Duschen, sämtliche Häuser werden vollständig mit Raffstores ausgestattet und noch vieles mehr...



Aufteilung des Hauses:

> Großzügige Wohnküche
> 4 Schlafzimmer
> 2 Bäder mit WC
> 1 separates WC im EG
> 2 Abstellräume
> 1 Außenstorage
> 2 Stellplätze
> Garten/Vorgarten
>Terrasse EG
>Dachterrasse


Lage & Infrastruktur:
Die waldreiche Landschaft ringsum wird von zahlreichen Wanderwegen und Radstrecken durchzogen. Sämtliche Nahversorger befinden sich in unmittelbarer Nähe.
Die Wiener Stadtgrenze passieren Sie mit dem PKW in nur 4 Minuten und mit den öffentlichen Verkehrsmitteln in lediglich 9 Minuten. In den ersten Bezirk brauchen Sie mit Bus und Schnellbahn gerade einmal 45 Minuten. Der Busbahnhof befindet sich nur wenige Gehminuten entfernt.
Beschreibung weiterlesen

Energieeffizienz

HWB:
25,04 kWh/(m²*a)
HWB Klasse:
B
fGEE:
0,63
fGEE Klasse:
A+
Timo Kohlweiss

Timo Kohlweiss

Rustler Immobilientreuhand

Lade...

Fotomix

14 6 Badeteich 1 5 1 2 3 4 7 8 9 10 Badeteich 2 11 12 13 EG 1. und 2. OG Lageplan Lageplan Häuser