NEU - ERSTBEZUG! Eigenheim mit 189 m2 in Ziegelmassivbauweise in ruhiger Grünruhelage in Wiennähe!

Haus zur Miete in 3001 Mauerbach - Gesamtmiete: 2.690,00 € / Objektnummer: 5557
Ausstattung: Boden Wohnküche / offene Küche Bad Gäste-WC Rollladen Parkplatz Außenparkplatz Abstellraum Fußbodenheizung Balkon Terrasse Garten

Preisinformationen

Gesamtmiete:
2.690,00 € / Monat
Betriebskosten netto:
140,00 € / Monat
Umsatzsteuer:
14,00 €
Provision:
Gemäß Erstauftraggeberprinzip bezahlt der Abgeber die Provision.

Fakten

Objektnummer:
5557
Objekttyp:
Haus
Balkon:
1
Terrasse:
1
Balkonfläche:
12,5 m²
Wohnfläche:
189,07 m²
Gartenfläche:
80,87 m²
Zimmer:
5
Badezimmer:
2
Toilette:
3
Baujahr:
2022
Neubau:
Ja
Zustand:
Erstbezug
Verfügbarkeit:
Verfügbar

Beschreibung

ERSTBEZUG, Doppelhaushälfte in Untermauerbach in absoluter Grünruhelage! Haus 3A

+ Ziegelmassivbauweise 
+ 2 Parkplätzen vor der Tür
+ Fussbodenheizung mittels effizienter Vaillant Erdwärmepumpe
+ Fussbodenkühlung mittels Erdwärmepumpe
+ Schlüsselfertig plus, inklusive Küche, Badezimmerausstattung und Zentralstaubsauger 
+ 5 Zimmer, 189,07 m² Wohnnutzfläche, 27,51 m² Terrasse, 12,50 m2 Balkon, 80,87 m² Garten
+ bereits fertiggestellt und sofort bezugsbereit!

Vermietet wird eine Doppelhaushälfte in Ziegelmassivbauweise in Untermauerbach welche neu errichtet wurde. Das Haus verfügt über 5 Zimmer und die Wohnfläche beläuft sich auf 189,07 m2 aufgeteilt auf drei Geschosse. Der Garten ist 80,87 m2 groß. Das Haus ist bereits fertiggestellt und sofort beziehbar. 

Das Haus teilt sich wie folgt auf: 

Erdgeschoß mit 59,41 m2:

- ein großzügiger Eingangsbereich
- eine 43,85 m2 große Wohnküche mit Ausgang zum 12,50 m2 großen Balkon
- ein separate Toilette mit Handwaschbecken 
- ein Abstellraum/ Speisekammer  

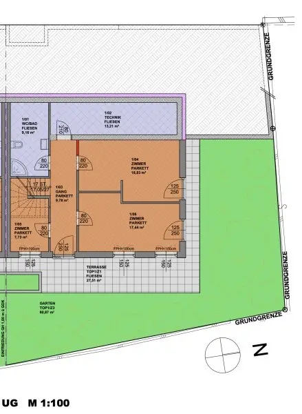
Im 76,15 m2 großen Untergeschoss:

- ein geräumiger Flur von dem aus alle Räume separat begehbar sind
- ein 18,83 m2 großes, helles Schlafzimmer mit Zugang zur 27,51 m2 großen Terrasse und 88,87 m2 großen Garten 
- ein weiteres zirka 17,44 m2 großes Schlaf- oder Arbeitszimmer 
- ein geräumiges Badezimmer mit Dusche, Toilette und Platz für eine Sauna
- ein 13,21 m2 großer Technikraum mit 375 Liter Warmwasserspeicher und Zentralstaubsauger 

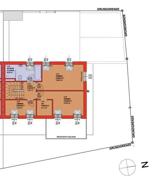
Im 53,54 m2 großen Obergeschoss:

- ein 13,43 m2 Arbeits- oder Schlafzimmer
- ein Abstellraum bzw. Garderobe 
- ein geräumiges Badezimmer mit Dusche, Badewanne und Toilette
- ein weiteres 16,93 m2 großes Schlafzimmer

Es sind 2 Autoabstellplätze vorhanden. Die Beheizung und Kühlung erfolgt über eine Fußbodenheizung bzw. Fussbodenkühlung mit einer effizienten Erdwärmepumpe von Vaillant. Ein 375 Liter Warmwasserspeicher ist installiert. Der genannte Kaufpreis von 799.000,- Euro versteht sich schlüsselfertig inklusive Küche. Die Aufschliessungskosten sind bereits bezahlt. 

Infrastruktur:

Die Lage des Hauses ist als absolute Ruhelage in einer Wohnsiedlung zu bezeichnen. Der nächstgelegene Bahnhof befindet sich 4,5 km entfernt und ist der Bahnhof Hadersdorf ( Schnellbahn 50) im 14. Wiener Gemeindebezirk. Supermärkte, Billa und Spar befindet sich auf der Hauptstraße in Mauerbach. Der nächstgelegene Kindergarten und die Volksschule sowie die nächste Apotheke befinden sich ebenfalls in Mauerbach, 4 Autominuten entfernt. Das Einkaufszentrum Auhof und die A1 Westautobahn ist in 10 Autominuten erreichbar. 

Öffentliche Verkehrsmittel: Bus 450, Bus 458, Bahnhof Hadersdorf in 4,5 km erreichbar, Schnellbahn S50 Richtung U4 Hütteldorf, U3,U6 Westbahnhof 

Hauptmiete inkl. Betriebskosten und Ust: 2.690,- Euro pro Monat 
Heizkosten und Stromkosten nach Verbrauch! 
Kaution: 10.000 Euro 
Das Haus wird auf 5 Jahre befristet mit Verlängerungsoption vermietet. 
Verfügbar AB SOFORT! 

 

Kontakt und Besichtigungstermine

Für weitere Fragen oder einen unverbindlichen und kostenlosen Besichtigungstermin kontaktieren Sie gleich Herr Bigus unter 0699 / 12 47 15 92 [tel:069912471592] oder per E-Mail bigus@immobilienquartier.at oder Herr Uyar unter 0699 / 17 1059 18 [tel:069917105918] oder per E-Mail uyar@immobilienquartier.at. 

Ich bitte um schriftliche Anfragen mit vollständiger Angabe Ihrer Kontaktdaten ( Name, Adresse, Telefonnummer).

Der Immobilienmakler erklärt, dass er – entgegen dem in der Immobilienwirtschaft üblichen Geschäftsgebrauch des Doppelmaklers – einseitig nur für den Vermieter tätig ist.

Infrastruktur / Entfernungen

Gesundheit
Arzt <1.000m
Apotheke <1.000m
Klinik <8.000m
Krankenhaus <7.000m

Kinder & Schulen
Schule <3.500m
Kindergarten <3.500m
Universität <4.500m
Höhere Schule <10.000m

Nahversorgung
Supermarkt <1.000m
Bäckerei <2.500m
Einkaufszentrum <4.500m

Sonstige
Geldautomat <2.000m
Bank <2.000m
Post <2.500m
Polizei <1.000m

Verkehr
Bus <500m
Straßenbahn <6.500m
U-Bahn <7.000m
Bahnhof <4.000m
Autobahnanschluss <5.000m

Angaben Entfernung Luftlinie / Quelle: OpenStreetMap
Beschreibung weiterlesen

Lage und Verkehrsanbindung

Untermauerbach an der Grenze zum 14. Wiener Bezirk

Energieeffizienz

HWB:
45,2 kWh/(m²*a)
HWB Klasse:
B
fGEE:
0,78
fGEE Klasse:
A
Energieausweisart:
Energiebedarfs-ausweis
Gültig bis:
17.07.2032

Grundrisse

Lageplan

3001 Mauerbach | Tulln

Lade...
Peter Bigus

Peter Bigus
Geschäftsführung

Immobilienquartier

Lade...

Fotomix

Bild 1 Bild 2 Bild 3 Bild 4 Bild 5 Bild 6 Bild 7 Bild 8 Bild 9 Bild 10 Bild 11 Bild 12 Bild 13 Bild 14 Bild 15 Bild 16 Bild 17 Bild 18 Bild 19 Bild 20 Bild 21 Bild 22 Bild 23 Bild 24 Bild 25 Bild 26 Bild 27 Bild 28 Bild 29 Bild 30 Bild 31 Bild 32 Bild 33 Bild 34 Bild 35