NEU - Erstbezug! Helle 2-Zimmer Wohnung mit Parkett und neuer Einbauküche

Wohnung zur Miete in 2500 Baden - Gesamtmiete: 845,99 € / Objektnummer: 26264
Ausstattung: Boden Bad Fußbodenheizung

Preisinformationen

Gesamtmiete:
845,99 € / Monat
Betriebskosten netto:
211,53 € / Monat
Umsatzsteuer:
76,91 €
Provision:
Gemäß Erstauftraggeberprinzip bezahlt der Abgeber die Provision.

Fakten

Objektnummer:
26264
Objekttyp:
Wohnung
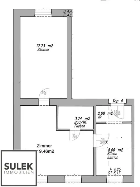
Wohnfläche:
52,27 m²
Zimmer:
2
Badezimmer:
2
Toilette:
1
Stockwerk:
2
Baujahr:
1950
Neubau:
Ja
Letzte Sanierung:
2025
Zustand:
Gepflegt
Verfügbarkeit:
Verfügbar

Beschreibung

Die Vermarktung erfolgt über einen externen Partner: Oliver Bauer

Bitte um Kontaktaufnahme tel. unter +43 681 814 77 417 [tel:+4368181477417] oder per E-Mail an: oba.vermarktung@gmail.com

-------------

ALLES AUF EINEN BLICK

* Erstbezug nach hochwertiger Sanierung
* Fußbodenheizung
* Wohnung im 2. Stock eines Mehrparteienhauses mit nur sechs Wohneinheiten
* Gut angebundene Lage in der Nähe der ehemaligen Martinek-Kaserne
* Großzügige, helle Einbauküche inklusive Geräte
* Zwei gut geschnittene Zimmer mit vielseitigen Nutzungsmöglichkeiten
* Hochwertige Parkettböden in den Wohnräumen
* Renoviertes Badezimmer mit Dusche und WC
* Teilweise dreifach verglaste Fenster
* Helle Räume mit Blick ins Grüne
* Ideal für Singles, Paare oder als Kombination aus Wohnen und Homeoffice
* Ab sofort beziehbar

-------------

DIE WOHNUNG

Diese frisch sanierte Wohnung befindet sich im ersten Stock eines gepflegten Mehrparteienhauses mit insgesamt sechs Wohneinheiten in der Vöslauer Straße in Baden.

Im Zuge der umfassenden Sanierung wurde besonderer Wert auf hochwertige Materialien und eine angenehme Wohnatmosphäre gelegt. In den Wohnräumen wurden hochwertige Parkettböden verlegt, die den Räumen eine warme und elegante Ausstrahlung verleihen.

Das Herzstück der Wohnung bildet die großzügige und helle Küche, die mit einer komplett neuen, modernen Einbauküche inklusive Geräten ausgestattet wurde und ausreichend Platz für einen Essbereich bietet.

Neben der Küche verfügt die Wohnung über zwei weitere gut geschnittene Zimmer. Diese lassen sich flexibel als Wohn-, Schlaf-, Arbeits- oder Gästezimmer nutzen und bieten dadurch vielfältige Gestaltungsmöglichkeiten für unterschiedliche Lebenssituationen.

Das Badezimmer wurde ebenfalls renoviert und ist mit einer Dusche sowie einem WC ausgestattet.

Die teilweise dreifach verglasten Fenster sorgen für eine gute Wärmedämmung und ein angenehmes Wohnklima. In Kombination mit der Fußbodenheizung entsteht ein besonders komfortables Wohngefühl. Gleichzeitig bieten die Fenster einen schönen Blick ins Grüne und lassen viel Tageslicht in die Wohnräume.

Durch die durchdachte Raumaufteilung eignet sich die Wohnung ideal für Singles, Paare oder Personen, die zusätzlich Platz für ein Homeoffice oder ein separates Schlafzimmer benötigen.

-------------

GUT ZU WISSEN

Für regelmäßige und lückenlose Mietzahlungen verlangt der Eigentümer zur Bonitätsprüfung die letzten drei Gehaltszettel oder – bei Selbstständigen – den aktuellsten Einkommensteuerbescheid.

-------------

LAGE

Die Wohnung befindet sich in Baden in der Vöslauer Straße in gut angebundener Lage in der Nähe der ehemaligen Martinek-Kaserne.

Die Umgebung bietet eine gute Kombination aus städtischer Infrastruktur und angenehmer Wohnqualität. Einkaufsmöglichkeiten, Nahversorger sowie verschiedene Dienstleister sind in kurzer Zeit erreichbar.

Auch öffentliche Verkehrsmittel befinden sich in der Nähe und ermöglichen eine gute Anbindung innerhalb von Baden sowie in Richtung Wien und die umliegenden Regionen.

Darüber hinaus bietet Baden zahlreiche Freizeitmöglichkeiten, Grünflächen und Spazierwege, die zu Erholung und Aktivitäten im Freien einladen.

*******************************************

Bei Interesse bitte um Kontaktaufnahme tel. unter +43 681 814 77 417 [tel:+4368181477417] oder per E-Mail an: oba.vermarktung@gmail.com

*************************************

_DIE ZUR VERFÜGUNG GESTELLTEN INFORMATIONEN BERUHEN AUF ANGABEN DES ABGEBERS, DER GEMEINDE UND DER HAUSVERWALTUNG BZW. DER JEWEILIGEN PROFESSIONISTEN. FÜR DIE RICHTIGKEIT UND VOLLSTÄNDIGKEIT DER ANGABEN KANN KEINE GEWÄHR BZW. HAFTUNG ÜBERNOMMEN WERDEN. _

_BITTE BEACHTEN SIE, DASS UNSER UNTERNEHMEN KEINE REISEKOSTEN ÜBERNIMMT, DIE IM ZUSAMMENHANG MIT DER BESICHTIGUNG VON IMMOBILIEN ANFALLEN. ALLE ANFALLENDEN KOSTEN FÜR ANREISE, UNTERKUNFT UND VERPFLEGUNG MÜSSEN VON DEN INTERESSENTEN SELBST GETRAGEN WERDEN. DES WEITEREN ÜBERNEHMEN WIR KEINE HAFTUNG FÜR KOSTEN, DIE DURCH KURZFRISTIGE STORNIERUNGEN ODER ÄNDERUNGEN VON BESICHTIGUNGSTERMINEN ENTSTEHEN KÖNNEN. _

_WIR DANKEN FÜR IHR VERSTÄNDNIS._

*************************************

Noch nichts gefunden?
Wir informieren Sie als Erste/r über passende Immobilienangebote.

Legen Sie jetzt Ihren individuellen Suchagenten über folgenden Link an.
Wir senden Ihnen geeignete Immobilien unverbindlich vorab zu.

Suchagent anlegen [https://sulek-immobilien.service.immo/registrieren/de] - https://sulek-immobilien.service.immo/registrieren/de

Der Immobilienmakler erklärt, dass er – entgegen dem in der Immobilienwirtschaft üblichen Geschäftsgebrauch des Doppelmaklers – einseitig nur für den Vermieter tätig ist.

Infrastruktur / Entfernungen

Gesundheit
Arzt <1.000m
Apotheke <1.500m
Klinik <1.500m
Krankenhaus <2.500m

Kinder & Schulen
Schule <1.000m
Kindergarten <1.000m
Höhere Schule <10.000m
Universität <10.000m

Nahversorgung
Supermarkt <500m
Bäckerei <1.500m
Einkaufszentrum <6.500m

Sonstige
Bank <1.500m
Geldautomat <1.500m
Post <1.500m
Polizei <1.500m

Verkehr
Bus <500m
Bahnhof <1.500m
Autobahnanschluss <3.000m
Straßenbahn <1.500m
Flughafen <4.000m

Angaben Entfernung Luftlinie / Quelle: OpenStreetMap
Beschreibung weiterlesen

Lage und Verkehrsanbindung

ehemaliger Martinek Kaserne, Vöslauer Straße

Energieeffizienz

HWB:
145,2 kWh/(m²*a)
HWB Klasse:
E
fGEE:
2,3
fGEE Klasse:
D
Energieausweisart:
Energiebedarfs-ausweis
Gültig bis:
17.11.2034

Grundriss

Lageplan

2500 Baden | Baden

Lade...
Oliver Bauer

Oliver Bauer

Mittelsmann Philipp Sulek GmbH

Lade...

Fotomix

Bild 1 Bild 2 Bild 3 Bild 4 Bild 5 Bild 6 Bild 7