NEU - Erstbezug nach Kernsanierung I Fußbodenheizung I südseitiger Balkon I Luftwärmepumpe inkl. Kühlung I 3fach Verglasung mit Außenjalousien I Schlüsselfertig

Wohnung zum Kauf in 1170 Wien - Kaufpreis: 418.210 € / Objektnummer: 21971
Ausstattung: Barrierefrei Boden Fahrstuhl Bad Fußbodenheizung Balkon
IMG_3392.JPG
Groß (001).jpeg
IMG_3396.jpeg
Top 6.png
Top 6.png

Preisinformationen

Kaufpreis:
418.210 €
Kaufpreis/m²
6.500,00 €
Vermittlungsprovision:
Ja
Provision:
3,00 % des Kaufpreises zzgl. 20 % USt.

Fakten

Objektnummer:
21971
Objekttyp:
Wohnung
Balkon:
1
Balkonfläche:
3,09 m²
Wohnfläche:
61,25 m²
Nutzfläche:
64,34 m²
Zimmer:
3
Badezimmer:
1
Toilette:
1
Baujahr:
2025
Verfügbarkeit:
Verfügbar

Beschreibung

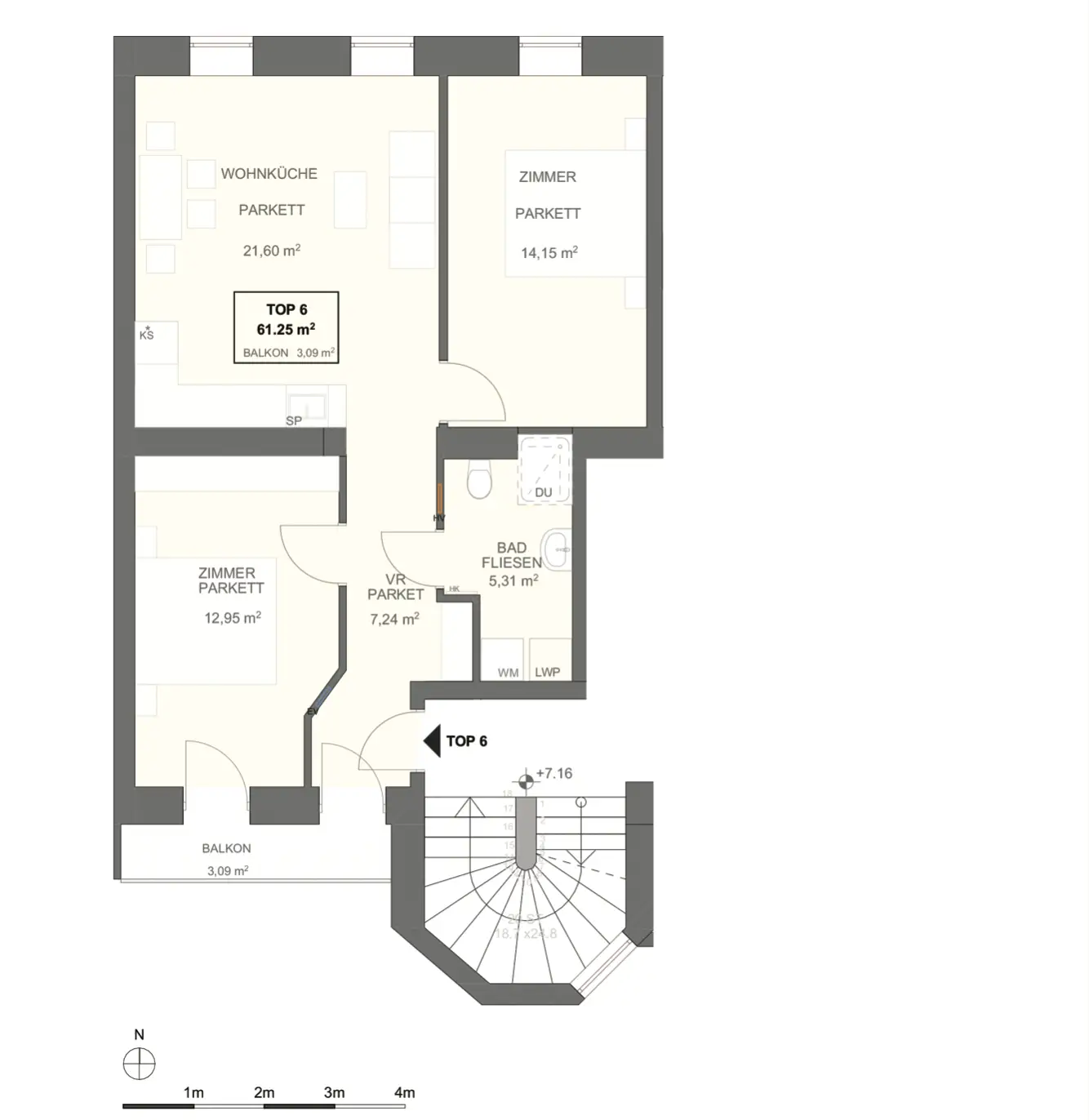
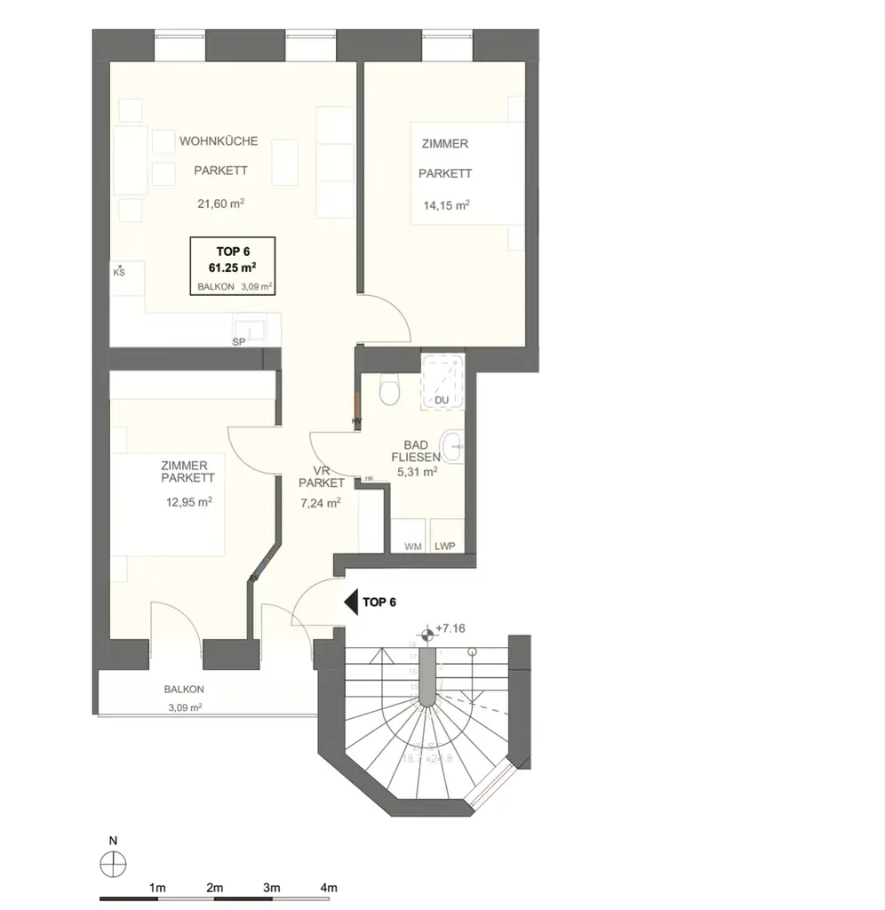
Diese Erstbezug 3-Zimmer-Wohnung mit etwa 61,25 m² Wohnfläche und einem  südseitigen Balkon von ca. 3,09 m² befindet sich im 2. Obergeschoss eines hochwertig kernsanierten Altbaugebäudes. Die Wohnung besticht durch eine kluge Raumaufteilung, zeitgemäßes Wohngefühl und elegante Ausstattung.

Die Beheizung erfolgt mittels Fußbodenheizung, betrieben von einer hocheffizienten Luftwärmepumpe von Daikin , die für ein angenehmes und energieeffizientes Raumklima sorgt. Hochwertige Markenkeramik von Villeroy & Boch in den Sanitärbereichen sowie ein durchgehender Eichenparkettboden in den Wohnräumen sorgen für ein exklusives Wohnambiente.

Die 3-Zimmer-Wohnung teilt sich wie folgt auf:

2.OG:

  • Vorraum ca. 7,24 m²

  • Wohnküche ca. 21,60 m² 

  • Zimmer ca. 12,95 m² 

  • Zimmer ca. 14,15 m² 
  • Bad + WC ca. 5,31 m²

  • Balkon, ca. 3,08  m²

Kostenübersicht:

  • Verkaufspreis Wohnung: € 418.210,–

Sonderwünsche können aktuell noch in gemeinsamer Absprache berücksichtigt werden. 

Baubeginn : 2024

Die Fotos sind teilweise Symbolbilder

Infina, Österreichs beliebtester Wohnbau-Finanz-Experte, begleitet Sie ganzheitlich rund um Ihr Immobilienvorhaben.

Unser Team von Immobilienexperten unterstützt Sie beim geplanten Kauf als auch bei einem möglichen Verkauf Ihrer bestehenden Immobilie. Zudem bieten unsere Finanzierungsexperten auf Wunsch maßgeschneiderte Finanzierungslösungen durch den Vergleich der besten Kredite von über 120 Banken in Österreich und Deutschland.

Wir möchten Sie unabhängig, transparent und flexibel als starker Partner in allen Immobilienangelegenheiten unterstützen.

Kontaktieren Sie uns für einen persönlichen Besichtigungstermin oder eine unverbindliche und kostenfreie Finanzierungsberatung.

Was kann Infina noch für Sie tun?

Wenn Sie eine Finanzierung für Ihre Traumimmobilie wünschen, begleiten wir Sie gerne von der strategischen Planung bis zur Realisierung und darüber hinaus. Wir sind Österreichs beliebtester Wohnbau-Finanz-Experte und unsere Mission lautet: Jeder Kunde hat das Recht auf den besten Kredit.

  • Infina kooperiert mit über 120 Banken in Österreich und Deutschland
  • Über 600 Kreditprodukte im Vergleich
  • Über 100-mal vor Ort in ganz Österreich

Ebenso unterstützen wir unsere Kunden beim Verkauf und der Vermietung Ihrer Immobilien sowie bei der Immobiliensuche durch unsere Immobilienexperten.


Wir weisen Sie darauf hin, dass die gemachten Angaben und Informationen lediglich unverbindliche Vorabinformationen sind und daher ohne Gewähr erfolgen. Der Vermittler ist als Doppelmakler tätig.

Beschreibung weiterlesen

Lage und Verkehrsanbindung

Das Projekt liegt in einer begehrten Wohngegend des 17. Wiener Gemeindebezirks. Die exzellente Infrastruktur überzeugt mit vielfältigen Einkaufsmöglichkeiten, einer lebendigen Gastronomie- und Kulturszene sowie einer optimalen Anbindung durch die Straßenbahnlinien 2, 9, 43 und 44 sowie die schnell erreichbaren U-Bahnlinien U3 und U6. Nahgelegene Grünflächen wie der Hernalser Park oder der Schafbergbad Park bieten zudem entspannte Rückzugsorte im Grünen. Die Lage vereint urbanes Flair mit ruhiger Wohnqualität – perfekt für anspruchsvolle Stadtmenschen, die Wert auf Komfort, Lebensqualität und beste Erreichbarkeit legen.

Nahversorgung:
Billa Plus: ca. 400m,
Brunnenmarkt: ca. 5min mit dem Rad,

Straßenbahnlinien 2, 9, 43, 44: ca. 100m,
U3 Ottakring : ca. 6min mit dem Rad,
In Zukunft U5 Station Elterleinpaltz: ca. 850m,

Bildung:
Bundesschulen Kalvarienberg: ca. 750m,
GTVS Wichtelgasse : ca. 550m,
Universität auf der Schmelz: ca. 7min mit dem Rad,

Sport:
FitInn: ca. 700m
time out yoga: ca 250m

Energieeffizienz

HWB:
66 kWh/(m²*a)
HWB Klasse:
C
fGEE:
0,57
fGEE Klasse:
A+
Energieausweisart:
Energiebedarfs-ausweis
Gültig bis:
01.04.2035

Grundriss

Benjamin Bornschein

Benjamin Bornschein
Immobilienservice

Lade...

Fotomix

IMG_3392.JPG Groß (001).jpeg IMG_3396.jpeg Top 6.png

Lageplan