NEU - Erstbezug nach Sanierung: Großes, helles Ecklokal im 6.Bezirk

Immobilie zur Miete in 1060 Wien / Objektnummer: 26163
Ausstattung: Bad Etagenheizung

Preisinformationen

Gesamtmiete (exkl. USt.):
2.605,27 € / Monat
Betriebskosten netto:
409,64 € / Monat
Miete/m² netto:
16,39 €
Kaution:
3-6 Bruttomonatsmieten
Vermittlungsprovision:
Ja
Provision:
3 Bruttomonatsmieten zzgl. 20% USt.

Fakten

Objektnummer:
26163
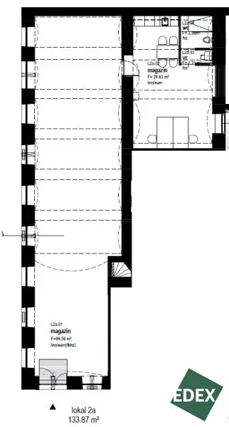
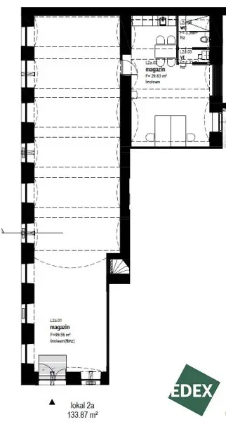
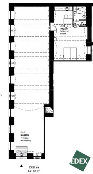
Nutzfläche:
133,87 m²
Toilette:
1
Verfügbarkeit:
Verfügbar

Beschreibung

Highlights 

* Sehr gute Sichtbarkeit
* Effiziente Aufteilung
* Bodentiefe Fenster
* Ausgezeichnete Lage

Das Objekt

In der Königsegggasse im 6. Wiener Gemeindebezirk gelangt dieses schöne, frisch sanierte Ecklokal ab sofort zur Vermietung. Die ca. 134 m² große Fläche befindet sich im Erdgeschoss und ist barrierefrei zugänglich. Das Objekt verfügt über einen großen Verkaufsraum, einen Aufenthalts-/Lagerraum inkl. Anschlüsse für eine Teeküche, sowie ein Badezimmer, das mit einer Dusche, einem Waschbecken und einem WC ausgestattet ist. 

Die großen, bodentiefen Schaufenster sorgen für Helligkeit und gleichzeitig gute Sichtbarkeit. Das Objekt ist jeweils straßenseitig begehbar. Die hochwertige Ausstattung garantiert einen repräsentativen Unternehmensauftritt. Das Haus ist in einem makellosen Zustand. 

Verkehrsanbindung & Infrastruktur

Die Mariahilfer Straße befindet sich in unmittelbarer Umgebung, wodurch das Geschäftslokal über eine hervorragende Infrastruktur verfügt. Supermärkte, zahlreiche gute Restaurants und Cafés können bequem zu Fuß erreicht werden. In wenigen Gehminuten erreicht man die U-Bahn-Stationen Zieglergasse (U3) oder Pilgramgasse (U4). In unmittelbarer Nähe der Geschäftsfläche fahren die Buslinien 13A, 14A und 57A. Auch die Wiener Innenstadt ist schnell erreichbar.

Ausstattung

* Linoleumboden
* Dusche
* Anschlüsse für Teeküche
* Bodentiefe Fenster

Verkehrsanbindung

* U-Bahn: U3, U4
* Bus: 13A, 14A, 57A

* Alle Preise verstehen sich zuzüglich der gesetzlichen Umsatzsteuer.

 

Der Vermittler ist als Doppelmakler tätig.

Infrastruktur / Entfernungen

Gesundheit
Arzt <500m
Apotheke <500m
Klinik <500m
Krankenhaus <500m

Kinder & Schulen
Schule <500m
Kindergarten <500m
Universität <1.000m
Höhere Schule <1.000m

Nahversorgung
Supermarkt <500m
Bäckerei <500m
Einkaufszentrum <500m

Sonstige
Geldautomat <500m
Bank <500m
Post <500m
Polizei <500m

Verkehr
Bus <500m
U-Bahn <500m
Straßenbahn <1.000m
Bahnhof <500m
Autobahnanschluss <4.500m

Angaben Entfernung Luftlinie / Quelle: OpenStreetMap
Beschreibung weiterlesen

Lage und Verkehrsanbindung

Otto-Bauer-Gasse, Mariahilfer Straße

Energieeffizienz

HWB:
224,1 kWh/(m²*a)
HWB Klasse:
F
fGEE:
2,9
fGEE Klasse:
E
Energieausweisart:
Energiebedarfs-ausweis
Gültig bis:
24.11.2032

Grundriss

Lageplan

1060 Wien | Wien 6., Mariahilf

Lade...
Cornelia Pflug

Cornelia Pflug
Beraterin

EDEX Immobilien GmbH

Lade...

Fotomix

Bild 1 Bild 2 Bild 3 Bild 4 Bild 5 Bild 6 Bild 7