NEU - ERSTBEZUG! Sonnige 2-Zimmer-Gartenwohnung für Anleger oder Eigennutzer

Wohnung zum Kauf in 1220 Wien - Kaufpreis: 299.900 € / Objektnummer: 247/21902
Ausstattung: Boden Fahrstuhl Fußbodenheizung Terrasse Garten
Außenbereich
Hausansicht III
Wohnküche
Badezimmer
Schlafzimmer
Flur
Eingang I
Garten
Schlafzimmer I
Terrasse I
Hausansicht IX
Zutritt Stiege 2
Wohnbereich
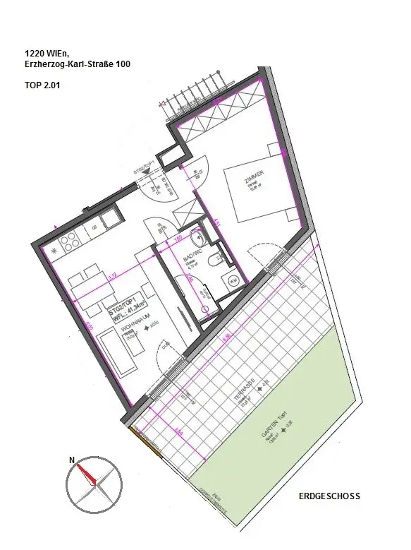
Top 2.01 Plan
Lageplan

Preisinformationen

Kaufpreis:
299.900 €
Kaufpreis/m²
5.674,44 €
Preisinfos:
GrESt 3,5% + Grundbucheintragung 1,1% des Gesamtkaufpreises /Vertragserrichtung 1,5% + Barauslagen, Beglaubigungs-, ggf. Treuhandkosten bei Finanzierung +USt. (Mag. Teodora Aurora Vrancean, M.P.S. / Provision 3% +USt. d…
Vermittlungsprovision:
Ja
Provision:
3%

Fakten

Objektnummer:
247/21902
Objekttyp:
Wohnung
Terrasse:
1
Wohnfläche:
41,34 m²
Gartenfläche:
13,96 m²
Zimmer:
2
Badezimmer:
1
Toilette:
1
Baujahr:
2020/Neubau
Neubau:
Ja
Verfügbarkeit:
Verfügbar

Beschreibung

Diese moderne 2-Zimmer-Wohnung mit Garten in Richtung Tietzestraße ist ein attraktives Investment im lebenswerten 22. Bezirk. Die Wohnung (ca. 41 m²) befindet sich im Erdgeschoss eines kürzlich fertig gestellten Neubaus. Sie besticht mit der tollen ca. 20 m² großen Terrasse sowie einem ca. 14 m² Garten und wurde mit hochwertigen Materialien ausgestattet. Die Ausstattungs-Highlights: - Kunststoff-Alu-Fenster mit 3-fach-Isolierverglasung - Innentüren aus Holz und einbruchshemmende Wohnungseingangstüren - Parkettböden in Eiche Landhausdiele CHALE 190 - Feinsteinzeug-Fliesen im Format 30 × 60 cm - Sanitärmöbel von LAUFEN und Armaturen von GROHE - Digitale Videogegensprechanlage - Elektrische, außenliegende Raffstores an allen Fenstern - Wasser- und Stromanschlüsse auf allen Balkonen und Terrassen - Hochwertige Steinbeläge auf sämtlichen Außenflächen - Luftwärmepumpe mit Fußbodenheizung - Kinderwagen- und Fahrradabstellraum - Großzügige Tiefgarage mit E-Ladevorbereitung - Aufzug in alle Stockwerke - Klimaanlage im 2. Dachgeschoss installiert, im 1. Dachgeschoss vorbereitet - Modernes Wohnkonzept für höchste Ansprüche an Komfort, Design und Nachhaltigkeit - Attraktive Freiflächen mit Blick auf Teich und Parkanlage -HIER GEHT ES ZUM EXKLUSIVEN 3D-RUNDGANG: https://my.matterport.com/show/?m=7LocJUysFdW Die Lage-Highlights: - Buslinien 26A und 94A (3 Gehminuten) - Straßenbahnlinie 25 (4 Gehminuten) - Bahnhof Erzherzog-Karl-Straße (5 Gehminuten) - Supermarkt (2 Gehminuten) - Otto-Affenzeller-Park (3 Gehminuten) - Lagerwiese Rehlacke / An der unteren Alten Donau (5 Minuten mit dem Rad) - Zahlreiche Gastronomieangebote Der Kaufpreis für diese in ausgezeichneter Lage und Infrastruktur befindliche Eigentumswohnung beträgt Euro 299.900,-. Kaufpreis Garagenplatz (optional): EUR 32.000,- Anlegerfreundliche Netto-Variante mit USt-Überrechnung möglich! Vereinbaren Sie noch heute einen Besichtigungstermin und lassen Sie sich von dieser besonderen Immobilie verzaubern. Diesbezüglich freuen wir uns über Ihre geschätzte Anfrage per Mail. Tipp: Die gesamte Anlage wird gerade parifiziert und abverkauft. Fragen Sie uns nach weiteren Objekten bzw. Paketangeboten! Wir möchten darauf hinweisen, dass unsere Antwort möglicherweise in Ihrem Spamordner landen könnte. Bitte kontrollieren Sie diesen, wenn Sie keine Rückmeldung auf Ihre Anfrage erhalten haben. Wir freuen uns auf Ihre Anfrage und einen gemeinsamen Besichtigungstermin! .
Beschreibung weiterlesen

Lage und Verkehrsanbindung

Froschteichpark, Polgarstraße

Energieeffizienz

HWB:
27,8 kWh/(m²*a)
HWB Klasse:
B
fGEE:
0,77
fGEE Klasse:
A

Grundrisse

Melanie Eiblthauer

Melanie Eiblthauer

IMV Immobilienmakler

Virtuelle Tour

Lade...

Fotomix

Außenbereich Hausansicht III Wohnküche Badezimmer Schlafzimmer Flur Eingang I Garten Schlafzimmer I Terrasse I Hausansicht IX Zutritt Stiege 2 Wohnbereich