NEU - ERSTBEZUG TOP 03: Exklusives Eckreihenhaus in absoluter Top-Lage

Haus zum Kauf in 4073 Wilhering - Kaufpreis: 729.000 € / Objektnummer: 11685
Ausstattung: Bad Garage Parkplatz Außenparkplatz Fußbodenheizung Balkon Terrasse Garten

Preisinformationen

Kaufpreis:
729.000 €

Fakten

Objektnummer:
11685
Objekttyp:
Haus
Balkon:
1
Terrasse:
2
Balkonfläche:
4,71 m²
Keller Fläche:
21,42 m²
Wohnfläche:
135,84 m²
Grundstücksfläche:
328 m²
Gartenfläche:
174 m²
Zimmer:
5
Badezimmer:
2
Toilette:
3
Baujahr:
2026
Zustand:
Erstbezug
Verfügbarkeit:
Verfügbar

Beschreibung

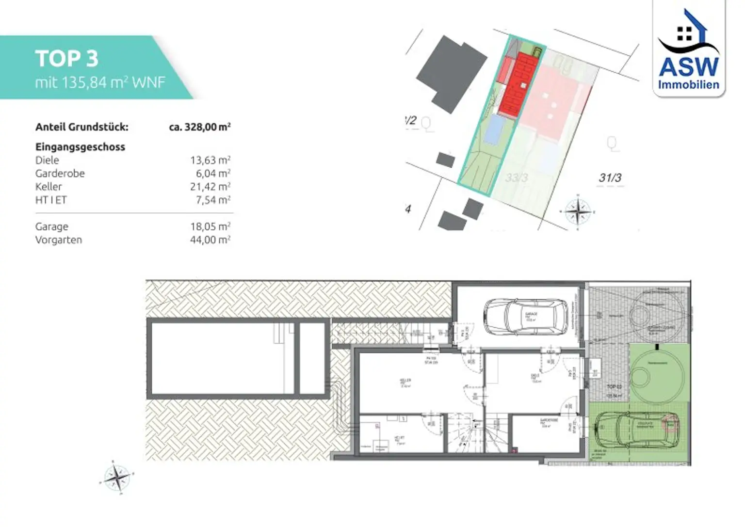
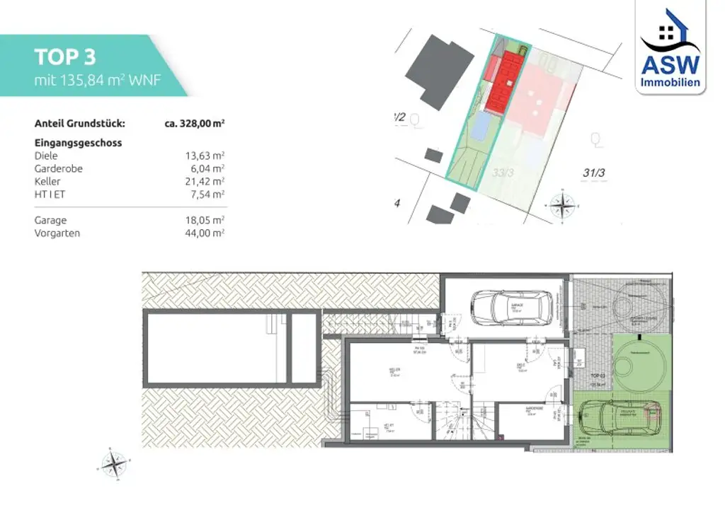
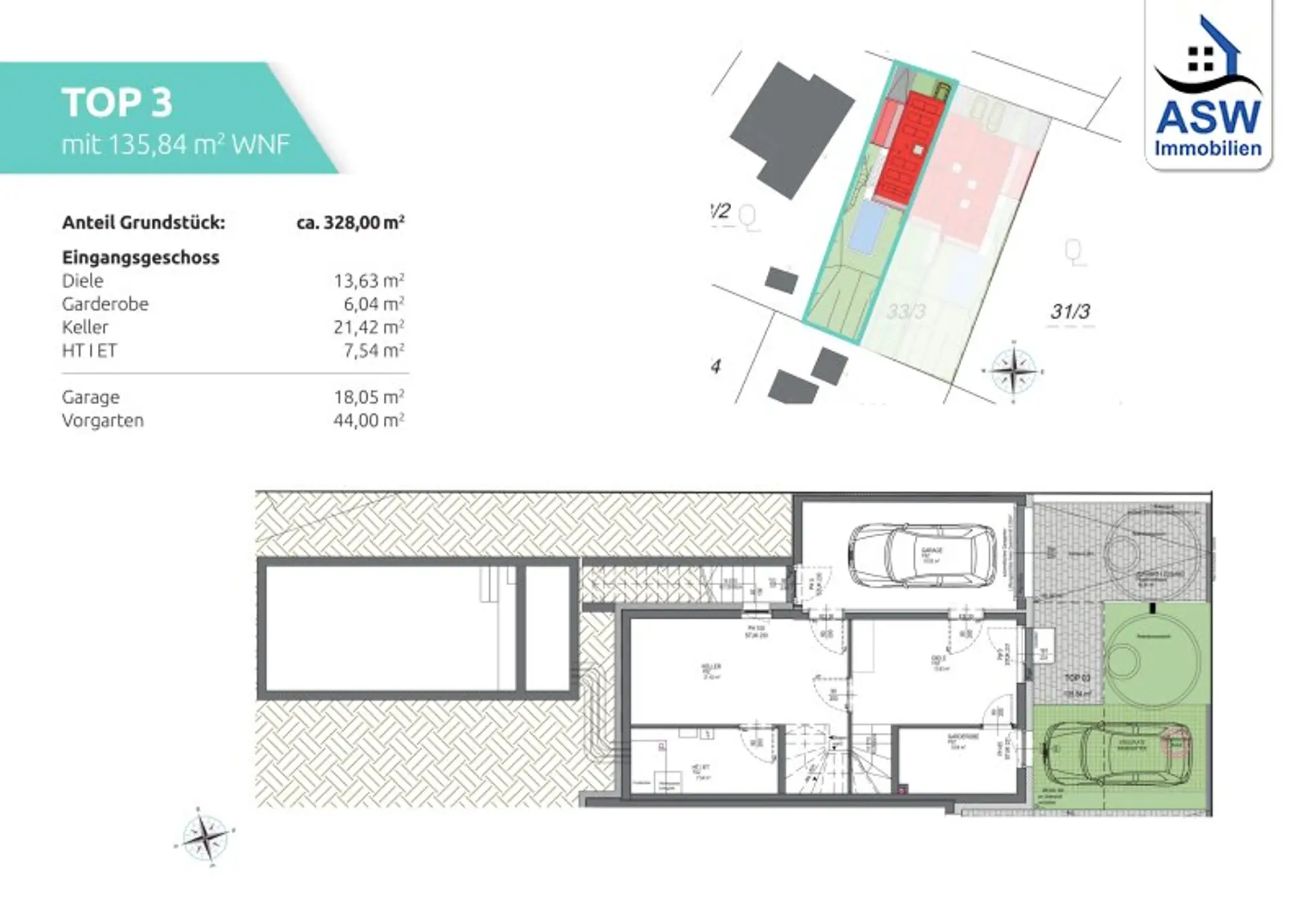
In ruhiger Siedlungslage im begehrten, Ortsteil Thalham entsteht dieses exklusive Neubauprojekt. Gebaut werden 3 Reihenhäuser mit ca. 131–135 m² Wohnfläche, aufgeteilt auf drei Ebenen.

Das Hauptaugenmerk bei der Planung lag auf der optimalen Ausnutzung der bebaubaren Fläche und der großzügigen Gestaltung der Wohn- und Nebenräume. Vom Eingangsbereich im Kellergeschoss gelangt man zu einem abgetrennten Garderobenraum, zur Garage, einem Kellerraum sowie zum angrenzenden Haustechnikraum.

Über eine Treppe erreicht man das Erdgeschoss mit offenem Wohnkonzept. Hier finden Sie viel Platz für eine großzügige Küche, die direkt an das Esszimmer anschließt. Vom Wohnzimmer aus gelangt man über die Terrasse in den sonnigen Garten. Außerdem befindet sich im Erdgeschoss ein abgetrennter Vorraum mit Zugang zu einer Toilette sowie ein Wirtschaftsraum.

Das Obergeschoss bietet ein geräumiges Schlafzimmer mit eigenem Bad, separater Toilette und Zugang zum Balkon. Darüber hinaus gibt es ein zweites Badezimmer, eine weitere Toilette sowie zwei Kinderzimmer.

Jedes Haus verfügt über eine Garage, einen Stellplatz im Freien und einen kleinen Vorgarten. TOP 1 und  TOP 3 verfügen zusätzlich über eine zweite Terrasse, die über das Esszimmer zugänglich ist.

Exklusives Eckreihenhaus mit hochwertiger Ausstattung – Baubeginn bereits erfolgt!

Dieses modern geplante Eckreihenhaus überzeugt durch durchdachtes Raumkonzept, hochwertige Materialien und großzügige Freiflächen. Das Haus erstreckt sich über drei Ebenen und wird schlüsselfertig übergeben – die genaue Ausstattung entnehmen Sie der Bau- und Ausstattungsbeschreibung.

Raumaufteilung:

*
Eingangsgeschoss: Großzügige Diele mit Garderobe, Kellerraum, Haustechnikraum und direkter Zugang zur Garage (18,05 m²). Vorgarten mit Außenstellplatz und Einfahrt (44 m²).

*
Erdgeschoss: Offener Wohn-, Ess- und Kochbereich (46,35 m²) mit Zugang zur Terrasse und Garten, zusätzlich WC und Wirtschaftsraum.

*
Obergeschoss: Schlafzimmer mit eigenem Bad, zwei weitere Zimmer, zusätzliches Bad und WC, sowie Balkon.

Freiflächen:
Großer Garten (174 m²), zwei Terrassen (15,02 m² + 6,40 m²) und Balkon (4,71 m²) bieten viel Platz zum Entspannen und Genießen.

Besonderheit: Auf Wunsch kann ein Pool realisiert werden.

Details:
Eingangsgeschoss
Diele: 13,63 m²
Garderobe: 6,04 m²
Keller: 21,42 m²
HT I ET: 7,54 m²

Garage: 18,05 m²
Vorgarten (inkl. Außenstellplatz + Einfahrt): 44,00 m² 

Erdgeschoss
Kochen I Essen I Wohnen: 46,35 m²
VR: 1,76 m²
WC: 1,63 m²
WR: 5,53 m²

Obergeschoss
Gang: 5,16 m²
Schlafen: 17,85 m²
Bad 01: 7,29 m²
WC: 1,61 m²
Zimmer 01: 11,44 m²
Zimmer 02: 11,05 m²
Bad 02: 5,07 m²
WC: 1,43 m²

Freiflächen
Garten: 174,00 m²
Terrasse (EG): 15,02 m²
Terrasse (EG): 6,40 m²
Balkon (OG): 4,71 m²

Lassen auch Sie sich von diesem Neubauprojekt überzeugen und vereinbaren Sie einen unverbindlichen Beratungs- und Besichtigungstermin per E-Mail unter r.lakovsek@aswimmo.at
Wir möchten höflich darauf hinweisen, dass im Falle eines Kaufs eine ortsübliche Maklerprovision zu bezahlen ist.

Wir weisen darauf hin, dass zwischen dem Vermittler und dem zu vermittelnden Dritten ein familiäres oder wirtschaftliches Naheverhältnis besteht.

Der Vermittler ist als Doppelmakler tätig.

Infrastruktur / Entfernungen

Gesundheit
Arzt <2.750m
Apotheke <3.500m
Klinik <2.250m
Krankenhaus <9.500m

Kinder & Schulen
Schule <2.000m
Kindergarten <2.000m
Universität <7.750m
Höhere Schule <10.000m

Nahversorgung
Supermarkt <1.500m
Bäckerei <2.750m
Einkaufszentrum <6.750m

Sonstige
Bank <2.750m
Geldautomat <1.500m
Post <4.250m
Polizei <5.250m

Verkehr
Bus <500m
Straßenbahn <6.750m
Bahnhof <750m
Autobahnanschluss <8.000m
Flughafen <5.500m

Angaben Entfernung Luftlinie / Quelle: OpenStreetMap
Beschreibung weiterlesen

Lage und Verkehrsanbindung

Ländliche, ruhige, sonnige exklusiv Lage
Thalham gehört zu den beliebtesten Wohngegenden von Wilhering und zeichnet sich durch erstklassige Lebensqualität sowie weitläufige Grünflächen aus. Die exklusive Lage des Objekts bietet viel Raum zur Erholung und einen direkten Zugang zur Natur.

Ländlich und dennoch stadtnah gelegen, überzeugt die Umgebung mit einer guten Infrastruktur. So erreicht man in ca. 15 Minuten mit dem Auto sowohl Leonding als auch Eferding. Die nächsten Nahversorger befinden sich rund 2 km entfernt. Die nächstgelegene LILO-Haltestelle (Kirchberg-Thürnau) ist fußläufig erreichbar.

Straßham, Thürnau

Energieeffizienz

HWB:
42 kWh/(m²*a)
HWB Klasse:
B
fGEE:
0,71
fGEE Klasse:
A
Energieausweisart:
Energiebedarfs-ausweis
Gültig bis:
10.01.2032

Dokumente

Grundrisse

Lageplan

4073 Wilhering | Linz-Land

Lade...
Roland Lakovsek

Roland Lakovsek
Immobilienberater

ASW Immobilien Service & Consulting GmbH

Anrufen
Lade...

Fotomix

Bild 1 Bild 2